EasyManua.ls Logo

Scotsman EC 86 - EC 86 Dimensions and Machine Specifications

Scotsman EC 86
28 pages
Print Icon
To Next Page IconTo Next Page
To Next Page IconTo Next Page
To Previous Page IconTo Previous Page
To Previous Page IconTo Previous Page
Loading...
Page 8
Page 8
Stainless steel 3/8 19 Kg.
Start . Electric power cons.
Amps Kwh per 24 Hr
Model Cond. unit Finish Comp. HP
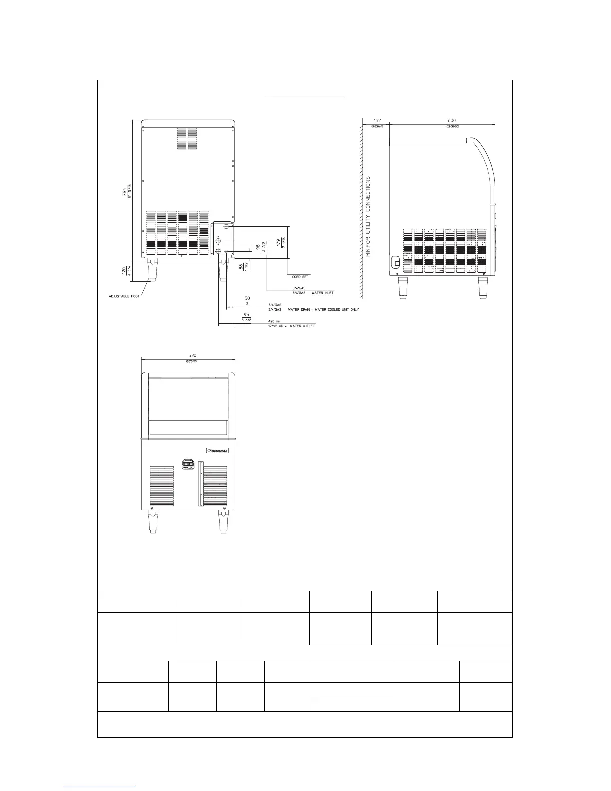
SPECIFICATIONS
Basic electr. Amps Watts Nr. of wires Amps fuse
230/50/1 3.3 18 480 3 x 1.5 mm
2
10
0143 **
500*
EC 86 - CUBER
machine specifications
Cubes per harvest: 24 medium
* A 15°C water temperature
Dimensions:
HEIGHT (without legs) 795 mm.
HEIGHT (with legs) 915 mm.
WIDTH 530 mm.
DEPTH 600 mm.
WEIGHT 45 Kgs.
8.9
8.4
Bin Water req.
Capacity lt/24 HR
EC 86 AS 6 Air
EC 86 WS 6 Water

Other manuals for Scotsman EC 86

Related product manuals