EasyManua.ls Logo

Scotsman FME504 - For the Installer

Scotsman FME504
16 pages
Print Icon
To Next Page IconTo Next Page
To Next Page IconTo Next Page
To Previous Page IconTo Previous Page
To Previous Page IconTo Previous Page
Loading...
FOR THE INSTALLER
These machines fit the following Scotsman
products, check sales literature for other possible
combinations:
·
SB480 and extensions (with bin top KBT18)
·
HTB555 or BH550 using bin top KBT14 or
KBT20
·
BH801 using bin top KBT28
·
BH900 using bin top KBT24
NME Dispenser Applications
The NME models can be placed on and used
with certain ice and ice-beverage dispensers.
Kits are required for proper operation, see the
following list:
·
ID150, use adapter KBT42 and KNUGDIV
·
ID200 or ID250, use adapter KBT46 and
KDIL-N-ID2
·
Cornelius ED/DF200 beverage dispensers,
use KBT46 and KDIL-N-200
·
Cornelius ED/DF250 beverage dispensers,
use KBT46 and KDIL-N-250
· Lancer nugget ice & beverage dispenser, use
KDIL-N-L and Lancer kit #82-3491.
NME454, 654 & FME504, 804
January 2007
Page 2
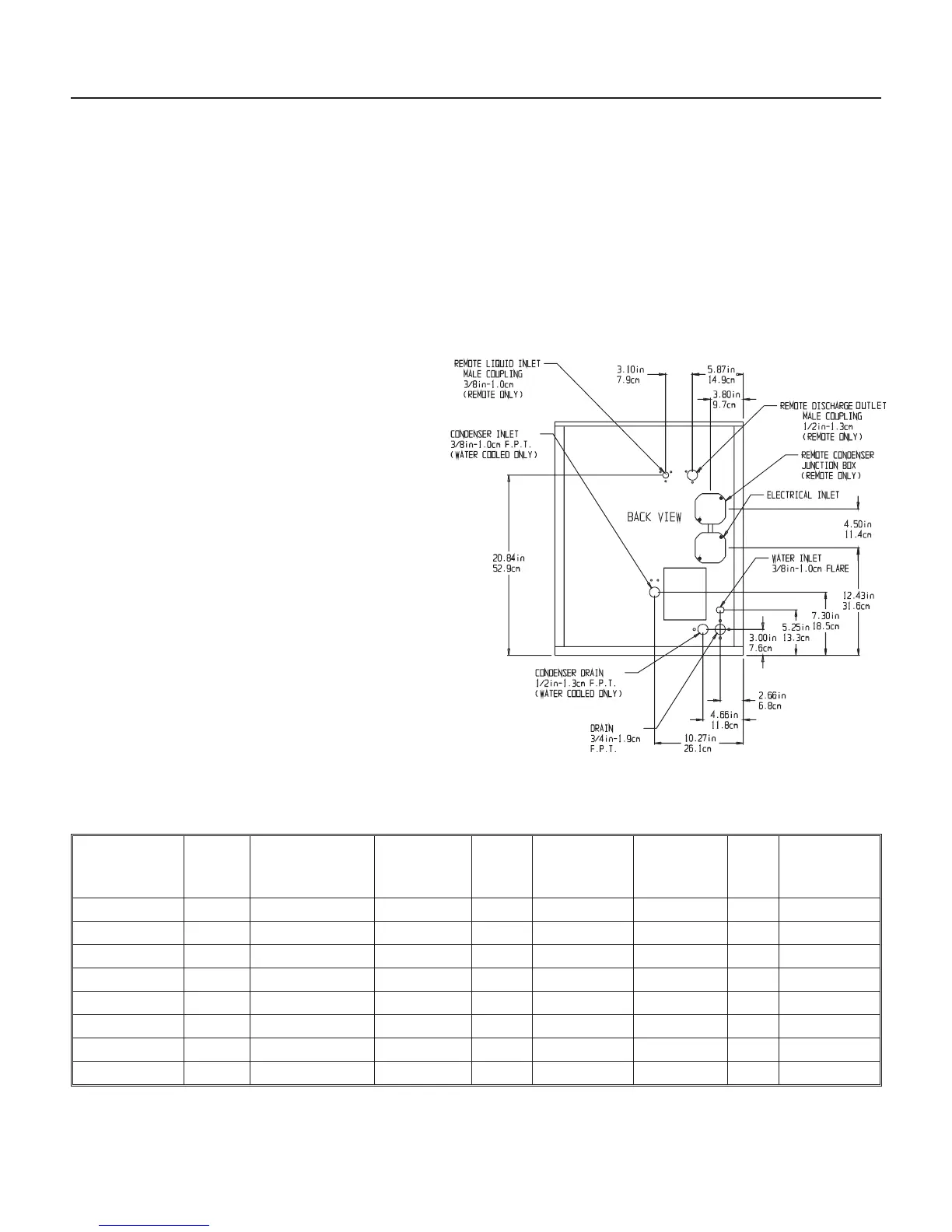
Installation Limitations:
This ice system is designed to be installed indoors,
in a controlled environment:
Min. Max.
Air Temperature 50
0
F 100
0
F
Water Temperature 40
0
F 100
0
F
Water Pressure 20 PSI 80 PSI
Voltage (for 115v model) 104 126
(Compared to the nameplate)
Operating the machine outside of the limitations is
misuse and can void the warranty.
Model
Number
Model
Series
Dimensions Basic
Electrical
Ice
Type
Condenser
Type
Minimum
Circuit
Ampacity
Max.
Fuse
Size
Refrigerant
Charge:
R-404A
FME504AS-1 A 27" x 21" x 24" 115/60/1 Flake Air 15.75 20 22 ounces
FME504WS-1 A same same Flake Water 14.35 20 18 ounces
FME804AS-1 B same same Flake Air 19.5 30 24 ounces
FME804WS-1 B same same Flake Water 18.3 30 19 ounces
NME454AS-1 A same same Nugget Air 15.75 20 22 ounces
NME454WS-1 A same same Nugget Water 14.35 20 18 ounces
NME654AS-1 B same same Nugget Air 19.5 30 24 ounces
NME654WS-1 B same same Nugget Water 18.3 30 19 ounces
SPECIFICATIONS: ICE MACHINE
Note: Minimum Circuit Ampacity is used to determine wire size and type per national electric code.

Related product manuals