EasyManua.ls Logo

Scotsman Prodigy C1030 - C1448, C1848, C2148 Three Phase, A-B Series

Scotsman Prodigy C1030
104 pages
Print Icon
To Next Page IconTo Next Page
To Next Page IconTo Next Page
To Previous Page IconTo Previous Page
To Previous Page IconTo Previous Page
Loading...
January 2015 Page 86
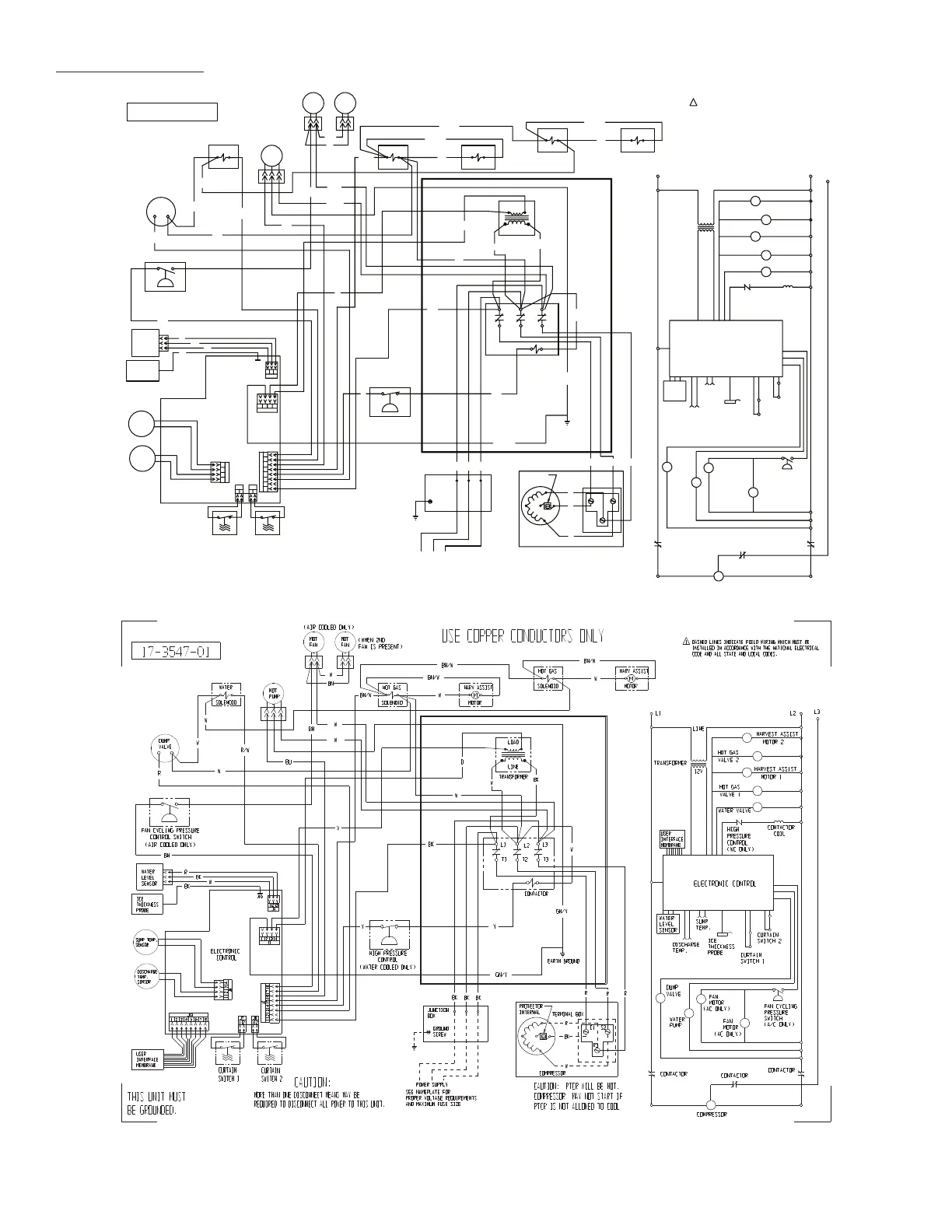
Wiring Diagrams
USE COPPER CONDUCTORS ONLY
THIS UNIT MUST
BE GROUNDED.
17-3167-01
(AC ONLY)
CAUTION:
MORE THAN ONE DISCONNECT MEANS MAY BE
REQUIRED TO DISCONNECT ALL POWER TO THIS UNIT.
L3
CONTACTOR
CONTACTOR
CONTACTOR
1 DASHED LINES INDICATE FIELD WIRING WHICH MUST BE
INSTALLED IN ACCORDANCE WITH THE NATIONAL ELECTRICAL
CODE AND ALL STATE AND LOCAL CODES.
W
BN/W
W
Y
FAN CYCLING
PRESSURE
SWITCH
(A/C ONLY)
SOLENOID 1
ICE
THICKNESS
PROBE
CURTAIN
SWITCH 1
CURTAIN
SWITCH 2
CURTAIN
SWITCH 2
J6
1234
CAUTION: PTCR WILL BE HOT.
COMPRESSOR MAY NOT START IF
PTCR IS NOT ALLOWED TO COOL
MOT
FAN
(WHEN 2ND
FAN IS PRESENT)
(AC ONLY)
(WATER COOLED ONLY)
(AIR COOLED ONLY)
FAN
MOTOR
HIGH
PRESSURE
CONTROL
(WC ONLY)
LINE
LOAD
TRANSFORMER
MOT
PUMP
SOLENOID
SOLENOID
HOT GAS
WATER
TERMINAL BOX
C1
S2
R3
COMPRESSOR
W
BK
R
L1
L2
LINE
12V
TRANSFORMER
VALV E 1
WATER VALVE
CONTACTOR
COIL
COMPRESSOR
WATER
PUMP
WATER
LEVEL
SENSOR
SUMP
TEMP.
DISCHARGE
TEMP.
ELECTRONIC CONTROL
BN
W
BU
W
W
O
R/W
V
BN/W
ELECTRONIC
CONTROL
R
R
R
W
DUMP
VALV E
BK
DUMP
VALVE
HIGH PRESSURE
CONTROL
MOT
FAN
W
BN
FAN
MOTOR
4321
J1
3
2
1
J9
7654321
J2
2
1
J8
2
1
J7
R
8
FAN CYCLING PRESSURE
CONTROL SWITCH
(AIR COOLED ONLY)
BN
DISCHARGE
TEMP.
SENSOR
SUMP TEMP.
SENSOR
WATER
LEVEL
SENSOR
W
BK
R
EARTH GROUND
J10
HARV ASSIST
SOLENOID
ICE
THICKNESS
PROBE
BK
W
GN/Y
GN/Y
VALVE 2
SOLENOID 2
HOT GAS
HARVEST ASSIST
HOT GAS
HARVEST ASSIST
W
SOLENOID
HARV ASSIST
HOT GAS
SOLENOID
BN/W
BN/W
W
CURTAIN
SWITCH 1
SEE NAMEPLATE FOR
PROPER VOLTAGE REQUIREMENTS
AND MAXIMUM FUSE SIZE
POWER SUPPLY
JUNCTION
BOX
GROUND
SCREW
BK
BK BK
W
CONTACTOR
Y
L1
BK
T1 T2
L2
L3
T3
PROTECTOR
INTERNAL
C1448, C1848, C2148 Three Phase, A-B Series
C1448 Three Phase, D Series

Table of Contents

Related product manuals