EasyManua.ls Logo

Scotsman Prodigy C1030 - C0530 50 Hz C Series; C0530 50 Hz D Series

Scotsman Prodigy C1030
104 pages
Print Icon
To Next Page IconTo Next Page
To Next Page IconTo Next Page
To Previous Page IconTo Previous Page
To Previous Page IconTo Previous Page
Loading...
January 2015 Page 91
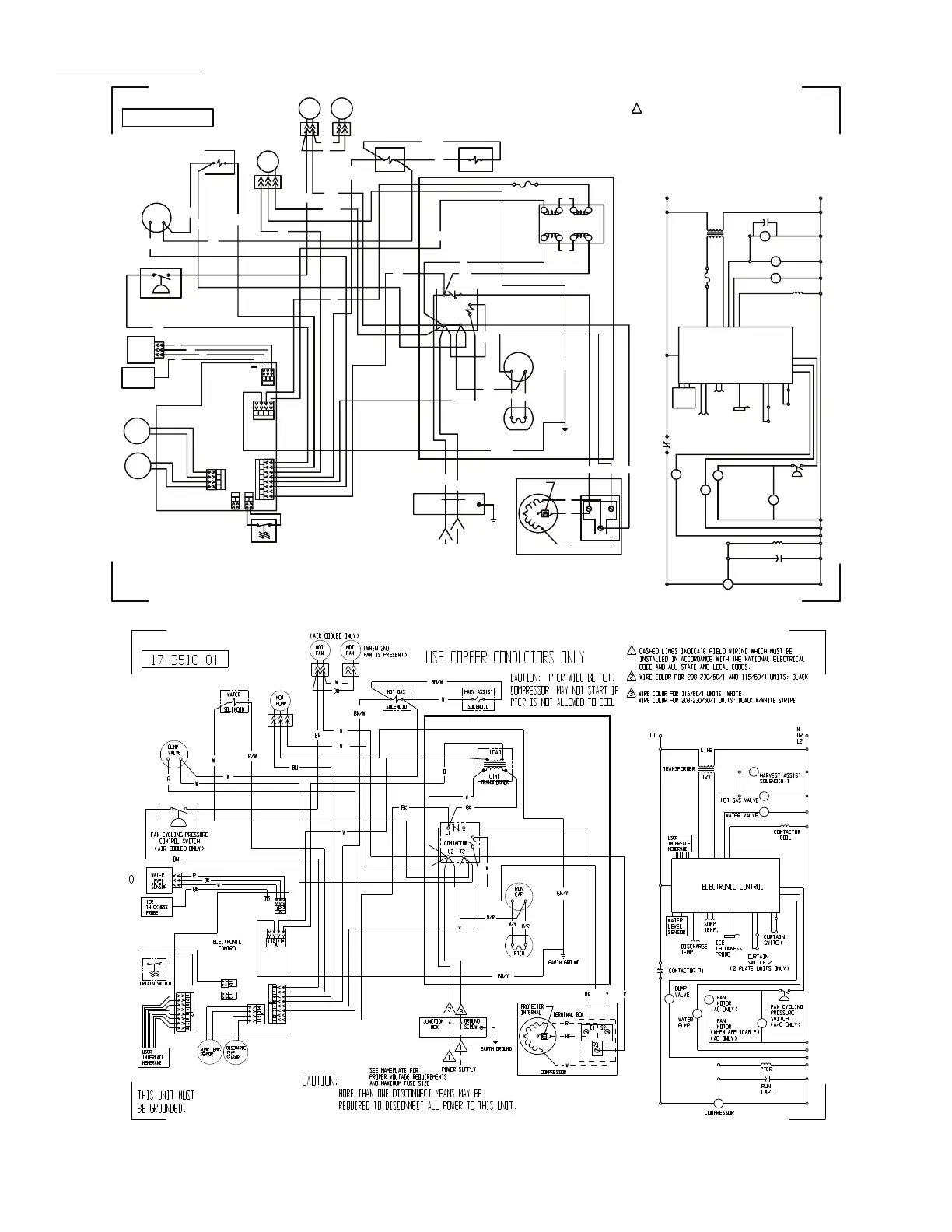
Wiring Diagrams
FUSE (3A)
TRANSFORMER
5
4
2
1
9
7
6 10
LINE
LOAD
12V
230V
BK
BK
1 DASHED LINES INDICATE FIELD WIRING WHICH MUST BE
INSTALLED IN ACCORDANCE WITH THE NATIONAL ELECTRICAL
CODE AND ALL STATE AND LOCAL CODES.
W
BN/W
W
W
FAN CYCLING
PRESSURE
SWITCH
(A/C ONLY )
HARVEST ASSIST
SOLENOID 1
ICE
THICKNESS
PROBE
CURTAIN
SWITCH 2
(2 PLATE UNITS ONLY )
CURTAIN
SWITCH 1
CURTAIN SWITCH
J6
1234
CAUTION: PTCR WILL BE HOT.
COMPRESSOR MAY NOT START IF
PTCR IS NOT ALLOWED TO COOL
MOT
FAN
(WHEN 2ND
FAN IS PRESENT)
W/Y
(AC ONLY )
(AIR COOLED ONLY )
FAN
MOTOR
Y
1
1
L1 T1
L2
T2
CONTACTOR
MOT
PUMP
SOLENOID
SOLENOID
HOT GAS
WATER
JUNCTION
BOX
TERMINAL BOX
C1
S2
R3
COMPRESSOR
W
BK
R
EARTH GROUND
GROUND
SCREW
RUN
CAP
PTCR
POWER SUPPLY
SEE NAMEPLATE FOR
PROPER VOLTAGE REQUIREMENTS
AND MAXIMUM FUSE SIZE
L1
L2
LINE
12V
TRANSFORMER
HOT GAS VALVE
WATER VALVE
CONTACTOR
COIL
COMPRESSOR
RUN
CAP.
WATER
PUMP
PTCR
CONTACTOR T1
WATER
LEVEL
SENSOR
SUMP
TEMP.
DISCHARGE
TEMP.
ELECTRONIC CONTROL
BN
W
BU
W
BK
W
O
R/W
V
BN/W
BN
BN
ELECTRONIC
CONTROL
BK
Y
R
W/R
W/R
W
DUMP
VALV E
BK
DUMP
VALV E
MOT
FAN
W
BN
FAN
MOTOR
(WHEN APPLICABLE)
(AC ONLY )
4321
J1
3
2
1
J9
7654321
J2
2
1
J8
2
1
J7
R
8
FAN CYCLING PRESSURE
CONTROL SWITCH
(AIR COOLED ONLY )
BN
DISCHARGE
TEMP.
SENSOR
SUMP TEMP.
SENSOR
WATER
LEVEL
SENSOR
W
BK
R
EARTH GROUND
J10
HARV ASSIST
SOLENOID
ICE
THICKNESS
PROBE
BK
W
GN/Y
GN/Y
FUSE
(3A)
.33
uF
PROTECTOR
INTERNAL
USE COPPER CONDUCTORS ONLY
THIS UNIT MUST
BE GROUNDED.
CAUTION:
MORE THAN ONE DISCONNECT MEANS MAY BE
REQUIRED TO DISCONNECT ALL POWER TO THIS UNIT.
17-3360-01
C0530 50 Hz C Series
C0530 50 Hz D Series

Table of Contents

Related product manuals