EasyManua.ls Logo

Seagate IronWolf Pro - Page 26

Seagate IronWolf Pro
35 pages
Print Icon
To Next Page IconTo Next Page
To Next Page IconTo Next Page
To Previous Page IconTo Previous Page
To Previous Page IconTo Previous Page
Loading...
Seagate IronWolf Pro v4 Serial ATA Product Manual, Rev. C 25
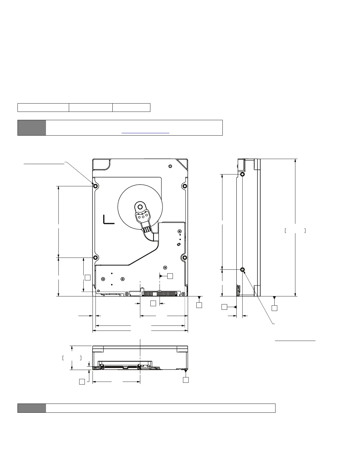
3.4 Drive mounting
Users can mount the drive in any orientation using four screws in the side-mounting holes or four screws in the bottom-mounting holes.
See Figure 4 for drive mounting dimensions. Follow these important mounting precautions when mounting the drive:
Allow a minimum clearance of 0.030 in (0.76mm) around the entire perimeter of the drive for cooling.
Use only 6-32 UNC mounting screws.
The screws should be inserted no more than 0.140 in (3.56mm) into the bottom or side mounting holes.
Do not overtighten the mounting screws (maximum torque: 6 in-lb).
3.4.1 Mechanical specifications
Refer to Figure 4 for detailed mounting configuration dimensions. See Section 3.4, “Drive mounting.
Figure 4. Mounting configuration dimensions
Weight: 1.554 lb 705 g
Note
These dimensions conform to the Small Form Factor Standard documented in
SFF-8301 and SFF-8323, found at www.sffcommittee.or
g
Note
The image is for mechanical dimension reference only and may not represent the actual drive.
2X 1.625±.020
2X 3.000±.010
1.432
2
.134±.010
3.741±.010
4.000±.010
.814
2
2.000
4X 6-32 UNC 2B
3 MIN THREAD DEPTH
.1 MAX FASTENER PENETRATION
MOUNTING HOLE.
MAX TORQUE 6 IN/LBS
B
Y
.250±.010
5.787 MAX
146.56 MM
1.122±.020
4.000±.010
2X 6-32 UNC 2B
3 MIN THREAD DEPTH
.1 MAX FASTENER PENETRATION
MOUNTING HOLES BOTH SIDES.
MAX TORQUE 6 IN/LBS
Y
Z
1.028 MAX
26.11MM
.138±.015
2
2.000
C
L
OF DRIVE
C
L
OF DRIVE
C
L
OF CONN
Z

Related product manuals