EasyManua.ls Logo

SeaLand Vacuum Pump - Speed (Gear) Reducer Replacement; Motor Replacement

SeaLand Vacuum Pump
12 pages
Print Icon
To Next Page IconTo Next Page
To Next Page IconTo Next Page
To Previous Page IconTo Previous Page
To Previous Page IconTo Previous Page
Loading...
6
G. MOTOR REPLACEMENT
To Remove:
1. Turn off electrical power to pump.
2. Remove access plate from wiring junction box on motor.
3. Unhook wiring from motor leads.
4. Remove the four (4) motor mounting bolts securing the motor to the speed (gear) reducer.
5. Pull the motor away from the gear reducer. (See Fig. 10)
IMPORTANT: OVER TIME THE MOTOR SHAFT MAY SEIZE TO THE SPEED (GEAR) REDUCER SHAFT.
IF THIS HAPPENS REFER TO THE NEXT STEP.
6. The speed (gear) reducer motor mounting flange has two threaded holes for forcing the motor off. Use two of
the motor mounting bolts for this application. (See Fig. 10)
To Install:
1. Lubricate motor shaft with an anti-seize compound.
2. Insert key into keyway on motor shaft.
3. Carefully slide the motor into the speed (gear) reducer.
4. Install the four bolts and washers and tighten.
5. Wire motor leads to input wires by following instructions on data plate riveted to motor housing.
Low voltage = 115VAC
High voltage = 220/230VAC
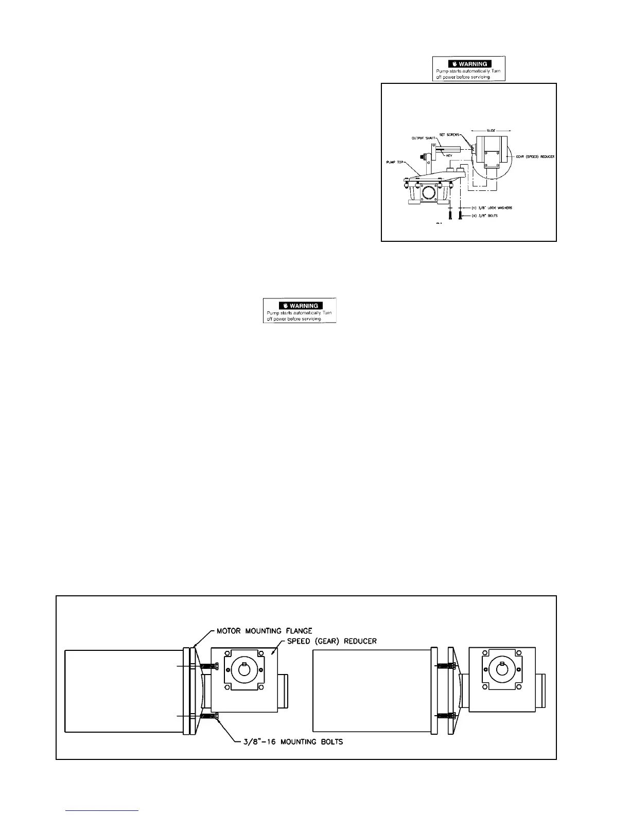
F. SPEED (GEAR) REDUCER REPLACEMENT
To Remove:
1. Turn off electrical power to pump and remove pump cover (not
supplied on some models).
2. Remove the motor from the reducer. (See Section G)
3. Loosen output shaft set screws.
4. Remove the four (4) 3/8" bolts that secure the reducer to the pump
top using a 9/16" socket and ratchet.
5. Slide the reducer off the output shaft.
To Replace:
1. Grease the output shaft, keyway and key.
2. Loosen the output shaft set screws and slide the reducer onto
the output shaft.
3. Insert the four (4) 3/8" bolts and lock washers through the pump
and into the reducer. Tighten securely.
4. See step 2 (To Install) in “Eccentric Pin Inspection and Replacement” (page 5).
Fig. 10
Fig. 9