EasyManua.ls Logo

Sharp AQUOS LC-80LE757U

Sharp AQUOS LC-80LE757U
66 pages
To Next Page IconTo Next Page
To Next Page IconTo Next Page
To Previous Page IconTo Previous Page
To Previous Page IconTo Previous Page
Loading...
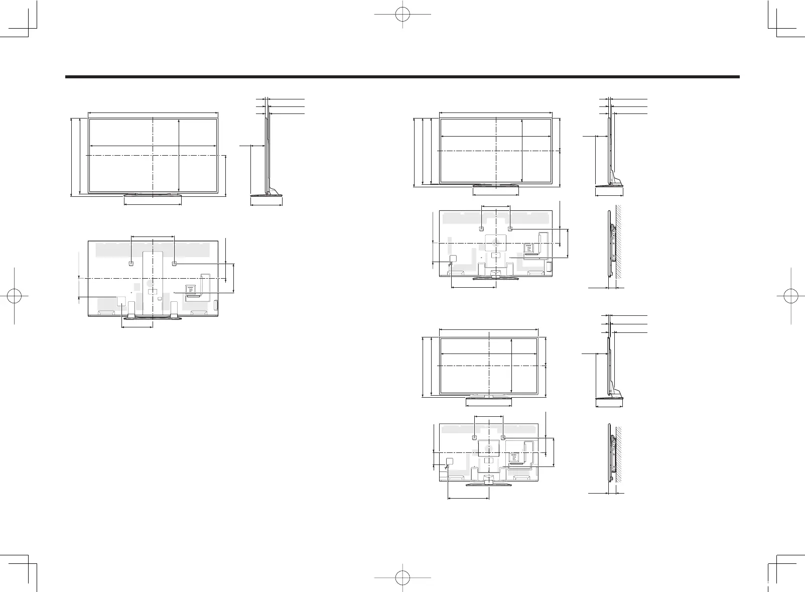
Dimensional Drawings
2
9
/
32
(58)
*
3
60
19
/
32
(1538.88)
*
1
62
9
/
64
(1578)
1
7
/
64
(28)
*
2
1
7
/
64
(28)
*
2
1
47
/
64
(44)
2
9
/
32
(58)
*
3
1
47
/
64
(44)
15
11
/
64
(385)
15
11
/
64
(385)
7
1
/
64
(178)
4
19
/
64
(109)
4
19
/
64
(109)
7
1
/
64
(178)
25
13
/
64
(640)
15
3
/
4
(400)
24
29
/
64
(621)
54
1
/
4
(1378)
25
13
/
64
(640)
15
3
/
4
(400)
22
41
/
64
(575)
38
15
/
64
(971)
36
45
/
64
(932)
36
25
/
64
(924)
9
57
/
64
(251)
6
15
/
16
(176)
20
13
/
64
(513) 18
1
/
32
(458)
7
3
/
4
(200)
15
3
/
4
(400)
17
49
/
64
(451) 15
19
/
32
(396)
7
3
/
4
(200)
15
3
/
4
(400)
31
57
/
64
(810)
33
25
/
64
(848)
34
3
/
32
(865.62)
*
1
52
11
/
32
(1329.12)
*
1
29
7
/
16
(747.60)
*
1
2
21
/
64
(59)
*
3
71
55
/
64
(1825)
1
11
/
32
(34)
*
2
1
15
/
16
(49)
17
29
/
64
(443)
8
5
/
32
(207)
32
9
/
32
(820)
23
5
/
8
(600)
17
3
/
8
(441)
43
7
/
16
(1103)
41
63
/
64
(1066)
10
9
/
32
(261)
22
27
/
32
(580)
7
3
/
4
(200)
15
3
/
4
(400)
69
47
/
64
(1771.20)
*
1
39
15
/
64
(996.30)
*
1
LC-70LE857ULC-80LE857U
Unit: inch (mm)
Unité: pouce (mm)
Unidad: pulgada (mm)
LC-60LE857U
*1 Active area/Área activa/Zone active
*2 Thinnest part/Parte más delgada/Partie la plus mince
*3 Including projecting parts/Incluyendo partes salientes/Parties saillantes incluses
LC-80LE857U757U657US.indd63 2013/02/2618:03:37

Table of Contents

Related product manuals