EasyManua.ls Logo

Sharp Aquos UQ17U - Page 151

Sharp Aquos UQ17U
156 pages
Print Icon
To Next Page IconTo Next Page
To Next Page IconTo Next Page
To Previous Page IconTo Previous Page
To Previous Page IconTo Previous Page
Loading...
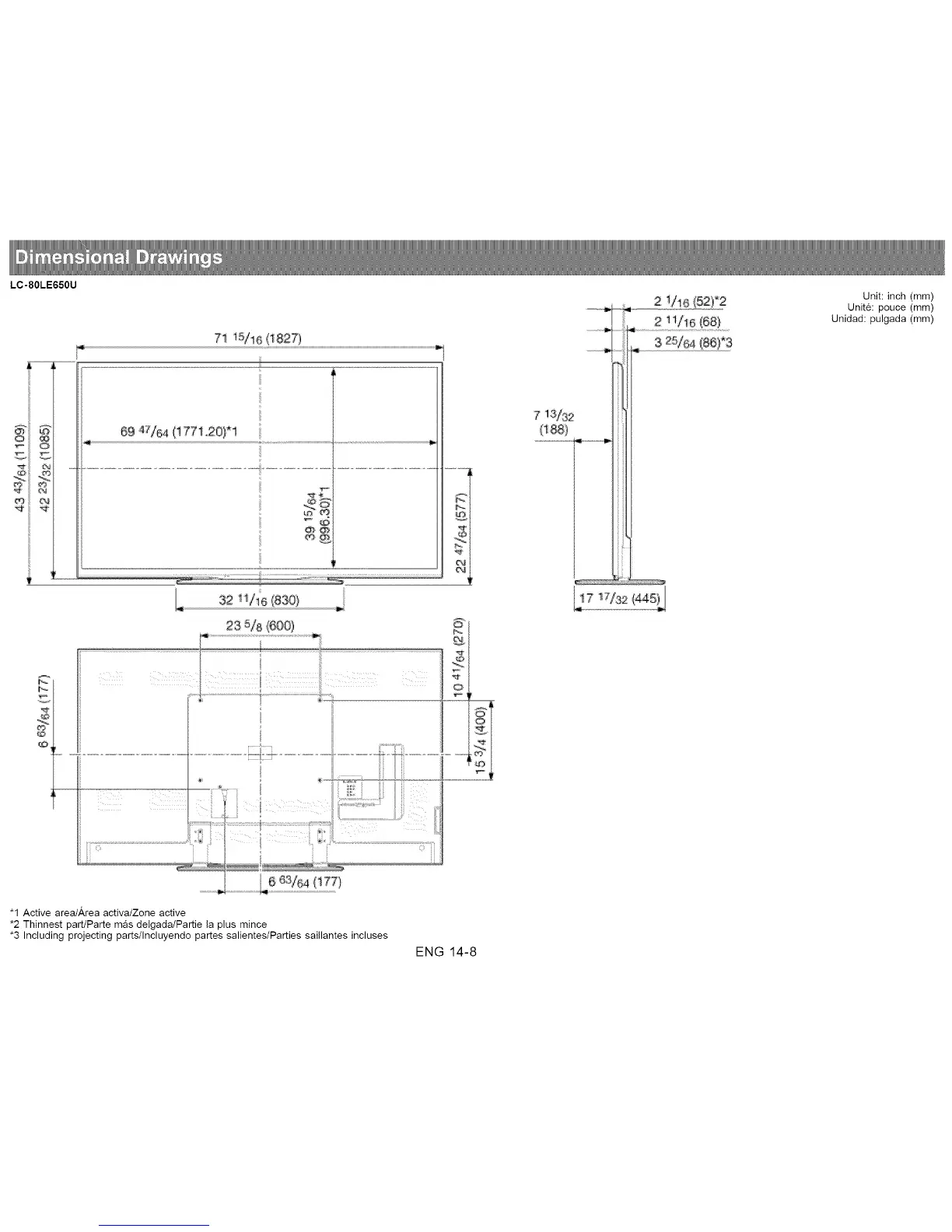
LC-80LE650U
71 15/16 (1827)
iJ
_2
..............[ o-o ::: :,:_: :::: o_
k
"1 Active areat,_,rea activa/Zone active
*2 Thinnest part/PaRe mas delgada/Partie la plus mince
*3 Including projecting parts/Incluyendo pares salientes/Parties saillantes incluses
ENG 14-8
Unit: inch (mm)
Unite: pouce (mm)
Unidad: pulgada (ram)

Related product manuals