EasyManua.ls Logo

Sharp CD-K7000V - Microcomputer and Power Amplifier Schematics; System Microcomputer Schematic

Sharp CD-K7000V
80 pages
Print Icon
To Next Page IconTo Next Page
To Next Page IconTo Next Page
To Previous Page IconTo Previous Page
To Previous Page IconTo Previous Page
Loading...
– 31 –
CD-K7000V,CP-C7000
7
8 9 10 11 12
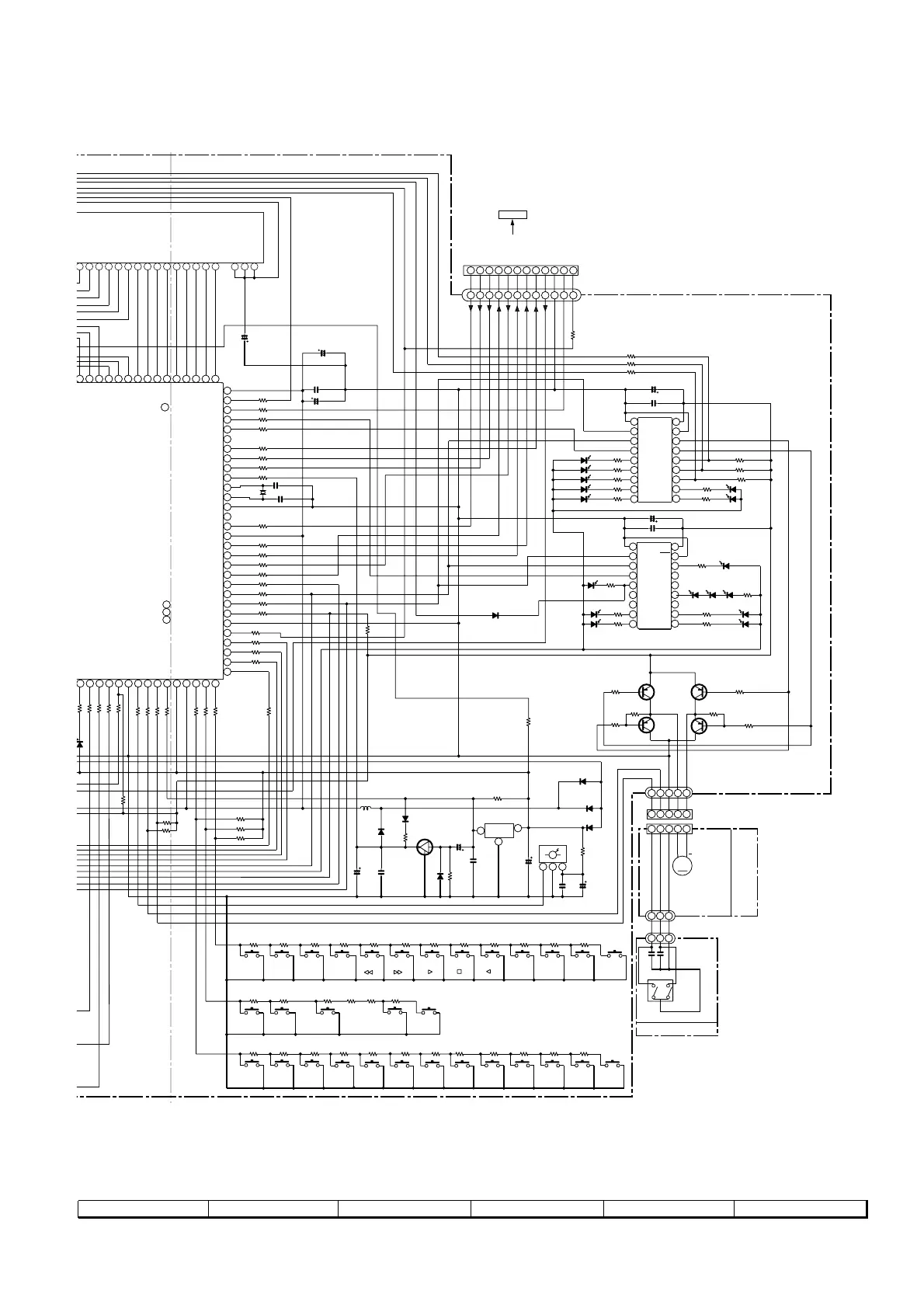
Figure 31 SCHEMATIC DIAGRAM (11/13)
C722
47/50
BI703
R718
47K
IC701
IX0360AW
YSTEM MICROCOMPUTER
C726
220/10
C725
0.022
C738
220/10
R773 1K
R730 1K
R774 1K
R776 1K
R778 1K
R779 1K
R780 1K
R781 1K
XL701
4.1943MHz
C723
15P
C724
18P
R782 1K
R783 1K
R700
10K
R775 1K
R772 1K
R771 1K
R770 1K
R784 1K
R785 1K
R786 1K
R787 1K
R788 1K
R789 1K
R790 1K
D724
1SS133
LED701
4204UYT7
C736
47/16
C737
0.022
R769
1K
R767 1K
R766 1K
R768 1K
R760 1K
R762 1K
R761 1K
R759 1K
R758 1K
R756 2.2K
R755 2.2K
R754 2.2K
R753
1
.
8K
R751
10K
R795
10K
R757
10K
R765 10K
R764 10K
R763 10K
L701
100µH
D717
1SS133
Q709:RESET
Q709
KRC102M
R796
47K
D716
1SS133
C729
3.3/50
R798
4.7K
R728
3.9K
C728
0.01
C727
0.1/50
C730
0.022
D718
1SS133
R797
100K
C733
47/25
C732
0.022
C731
10/50
R799
100
D720
1SS133
D705
1SS133
IC704
KIA7042AP
RESET
RX701
N63H380A
Q713
KTA1271Y
RS729
680
Q715
KTA1271Y
RS721
1K
RS722
1K
Q714
KTA1271Y
Q716
KTA1271Y
RS728
1K
RS730
680
RS727
1K
RS718 10K
RS719 22K
RS720 1K
LED714
LED715
RS713 1K
LED710
LED711
LED712
LED713
LED709
RS715 1K
RS714 1K
RS710 1K
R883 1K
R885 1K
R884 1K
RS716 1K
RS712 1K
IC702
BU2092F
RS717 1K
C735
0.022
C734 47/16
RS702
1K
RS703
1K
LED703
4204UYT7
LED702
4204UYT7
RS701
470
IC703
BU2092F
RS705 1K
RS704 1K
LED705
LED704
RS707
1K
LED716
4204UYT7
RS708
330
LED708
LED707
LED706
RD27
1K
RD25
680
RD30
2.7K
RD35
33K
RD33
10K
RD32
5.6K
RD29
2.2K
RD31
3.9K
RD34
18K
RD36
100K
RD26
820
RD28
1.5K
RD18
180K
RD17
2.2K
SW718
REV
MODE
RD16
1.5K
RD15
1K
RD13
680
RD14
820
SW714
DIMMER
SW715
X-BASS/
DEMO
SW716
EQUALIZER
SW717
SURROUND
SW730
RD12
100K
RD09
10K
RD08
5.6K
RD11
33K
RD10
18K
RD06
2.7K
RD07
3.9K
RD04
1.5K
RD03
1K
RD05
2.2K
RD01
680
RD02
820
SW712
DISC
SKIP
SW713
OPEN/
CLOSE
SW711
DISC 3
SW710
DISC 2
SW709
DISC 1
SW703
TIMER/
SLEEP
SW704
KARAOKE
MODE
SW705
P.B.O
SW706
OSD
SW707
DIGEST
SW708
BOOK
MARK
SW702
CLOCK
SW701
ON/
STAND-BY
C721
0.001
C720
0.001
BI705B
BI705A
BI704
CNS704
M701
VOLUME
MOTOR
SW719
CD
SW725
MEMORY/
SET
SW726
SW723
TAPE
SW731
REC
PAUSE
SW734
TUNER
(BAND)
SW732
TUNING
UP
SW733
VIDEO/
AUX
SW728
SW727
SW729
SW724
TUNING
DOWN
CNP704
REMOTE
SENSOR
JOG701
JOG
LED704~LED712: 4204UYT7
LED713~LED715: 4204UGT7
IC702,IC703: INPUT/OUTPUT
EXPANDER
CNS703
M
1
B
VOL_DOWN
VOL_UP
M+
M-
M+
+
VSS
DATA
Q2
Q3
Q6
Q7
Q8
Q9
Q11
OE
__
VDD
Q10
P25 12 - E
TO CD SERVO PWB
CD INT
WRQ(DSP)
CD CE
CD DO
CD DI
RES OUT
D_GND
S_BUSY
M_BUSY
Q10
L
R
63Hz
10KHz
A
G15
G14
G12
VDD
OE
Q11
Q9
Q8
Q7
Q6
Q5
Q4
Q3
Q2
Q1
Q0
LCK
CLOCK
DATA
VSS
O
NT OPEN
AVREF
SPEANA1
XT2
DRF
RES OUT
-20dBATT
F
O
NT CLOSE
N
A
MP SW
5V BACK UP
T_SOL 2
F
F
G11
G1
G2
G3
G4
G5
G6
G7
G8
G9
G10
G11
AC RLY_CONT
TIMER LED
T_MOTOR
T_SOL 1
SMUTE
VSS
REMOCON
JOG 0
JOG 1
SYS STOP
KEY 0
KEY 1
KEY 2
SPEANA0
SPEANA2
SPEANA3
TUN SM/M-BUSY
AVSS
DO
DI
CLK
CD DO
CD CLK
VPP/IC
DP REQ
S-BUSY
CE
G15
G14
G13
CD INT
WRQ
CD DI
CD CE
RESET
AVDD
X2
X1
VDD
LCK 0
LCK 1
2 3 4 51 7 8 96
10
2 3 4 51 7 8 96
10 11 12
11 12
DRF
CLAMP SW
CD CLK
G01
G02
G03
G04
G05
G06
G07
G08
G09
G10
G13
G12
U
T/SPN A
Q5Q4
Q1
Q0
LCK
CLOCK
2
3
4
5
1
2
2
3
3
1
1
7
8
9
6
12
13
14
15
11
17
18
19
10
16
20
22
23
24
25
21
27
28
29
26
30
32333435 31
32
33
31
373839 364042 41434445
47
87 88 8986 90 92 93 94 9591 97 98 9996
100
VDD
2 3 4 51
4
2
3
3
2 15
4 3 2 15
1
23
1
12
13
14
15
11
17
18
10
16
2
3
4
5
1
7
8
9
6
12
13
14
15
11
17
18
10
16
2
3
4
5
1
7
8
9
6
+B
+B
+B
+B
+B
+B
+B
+B
+B
+B
+B
CNP12
+B
+B
+B
+B
+B
+B
+B
1
2
3
JOG PWB-E2
VOLUME MOTOR
PWB-E1
2
3
1
789 6
12131415 11171819 1016
20
D721
1SS133

Related product manuals