EasyManua.ls Logo

Sharp LC-32LE150M - Page 43

Sharp LC-32LE150M
61 pages
Print Icon
To Next Page IconTo Next Page
To Next Page IconTo Next Page
To Previous Page IconTo Previous Page
To Previous Page IconTo Previous Page
Loading...
LC-32LE150M
10 – 7
19
18
17
16
15
14
13
12
1110
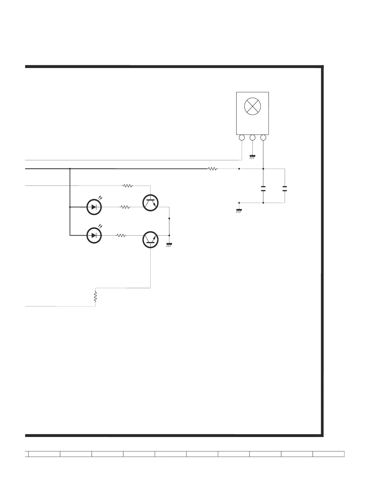
*R159
1K
R154
10K
R158
150
R151
100
R152
10K
Q152
2SC3928AR
LED CONT
Q153
2SC3928AR
LED CONT
C157
10u
CKZ
C158
10u
CKZ
*D153
PXA194WJQZ
Green
D152
PXA193WJQZ
RED
RMC151
UA088WJ
123
1.0J (2013.04.10)
R/C.LED
0
0.2
0.7
0
2.3
0

Related product manuals