EasyManua.ls Logo

Sharp LC-39LE650E - Page 101

Sharp LC-39LE650E
148 pages
Print Icon
To Next Page IconTo Next Page
To Next Page IconTo Next Page
To Previous Page IconTo Previous Page
To Previous Page IconTo Previous Page
Loading...
101
LC-39/50LE650
LC-39/50LE651
LC-39/50LE652
1
2 3 4 5 6 7 8 9 10
11 12
13
14
15 16
I
H
G
F
E
D
C
B
A
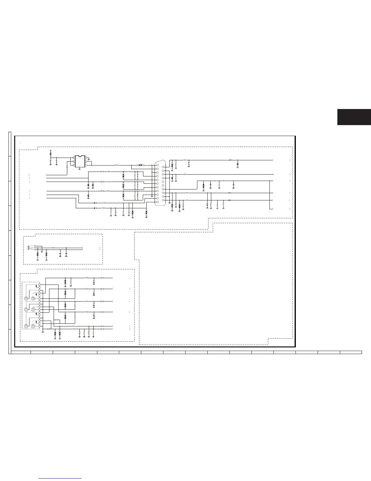
39” / 50” Main Unit Diagram 5/15 (SCART) (LE652 Series)
UART3_TXD
UART3_RXD
TV_IN
ZA161WJ
1
2
3
4
5
6
7
8
9
10
11
12
13
14
15
16
17
18
19
20
21
*SG564
VXA187WJQZ
*R595
75
*R604
75
*C600
47P
*R608
10K
*R609
2K
*SG563
VXA187WJQZ
*C593
330P
*R596
1K
*C595
560P
*R605
47K
*C607
330P
*R611
47K
*R610
1K
*C608
560P
*SG565
VXA187WJQZ
*SG556
VXA187WJQZ
*R584
75
*C585
10P
*C586
10P
*R585
75
*R586
75
*C587
10P
*SG555
VXA187WJQZ
*SG554
VXA187WJQZ
*R591
1K
*C588
330P
*R590
1K
*C589
330P
*C594
560P
*C597
560P
*R606
47K
*R599
47K
*R592
75
*C590
10P
*C591
10P
*R593
75
*C592
10P
*R594
75
LA037WJQZ
1234 567
Y
8
B-Y
9
R-Y
10
R
11
L
12
CVBS
13 1415 16
UART3_RXD
G12
UART3_TXD
J12
*D556
EXA741WJQZ
JA024WJ
*R551
220
1%
*R552
220
1%
*C559
47P
*C560
47P
*SG553
VXA187WJQZ
*SG552
VXA187WJQZ
*SG551
VXA187WJQZ
*R578
22
*R579
22
*R580
22
*C574
0.1u
*C575
0.1u
*C576
0.1u
TV_RIN
AM5
TV_GIN
AL5
TV_BIN
AP3
A_CVBS_OUT
AJ8
*R597
22
*C596
68P
*C598
0.1u
TV_IN
AK6
*R607
10
TV_FB
AN6
TV_FS1
PIN 14
*C609
1u
*C610
1u
LINE_IN1L
AA4
LINE_IN1R
AB6
*C581
470P
*C582
470P
R574
10K
R573
330
C573
10u
16V
R572
330
R575
10K
D+3.3V
C572
10u
16V
LINE_1L
AJ3
LINE_1R
AH6
*SG559
VXA187WJQZ
*R589
75
*R600
22
*R601
22
*R602
22
*R603
22
*C601
0.1u
*C604
0.1u
*C603
0.1u
*SG560
VXA187WJQZ
*SG561
VXA187WJQZ
*SG562
VXA187WJQZ
*SG558
VXA187WJQZ
*SG557
VXA187WJQZ
*C599
68P
CVBS1_RCA
AK13
VIN_G1
AM11
VIN_B1
AK11
VIN_R1
AK10
LINE_IN4_L
AD6
LINE_IN4_R
AD2
*C605
1u
*C606
1u
*C611
0.1u
TV_FS1
PIN AE7
R613
75
C615
10u
16V
C614
0.1u
FB612
A529WJ
C616
0.1u
R614
470
*SG567
VXA187WJQZ
*SG568
VXA187WJQZ
*C569
0.1u
BH76206HFV
1
GND
2
VSAG
3
VOUT
4
VCC
5
VIN
6
STBY
*SG578
VXA187WJQZ
D559
EXA741WJQZ
D560
EXA741WJQZ
D561
EXA741WJQZ
D562
EXA741WJQZ
TO SoC (001)
TO SoC (001)
TO SoC (001)
TO SoC (001)
TO STANDBY SMT8(010)
TO SoC (001)
TO SOC (001)
LC39/50LE652E
LC39/50LE752E LC50LE754E
DUNTKG135WE01
DUNTKG135WE07 DUNTKG135WE09
*SC552
*J552
*J551
IC552
SCART
HDTV1
RS232
SERVICE
SCART
MINI-SCART
ZZB (10-12-2012)

Other manuals for Sharp LC-39LE650E

Related product manuals