EasyManua.ls Logo

Sharp PN-Q801 - Page 29

Sharp PN-Q801
116 pages
Print Icon
To Next Page IconTo Next Page
To Next Page IconTo Next Page
To Previous Page IconTo Previous Page
To Previous Page IconTo Previous Page
Loading...
EN 4
ENGLISHITALIANO DEUTSCHESPAÑOL FRANÇAISTÜRKÇEРУССКИЙ
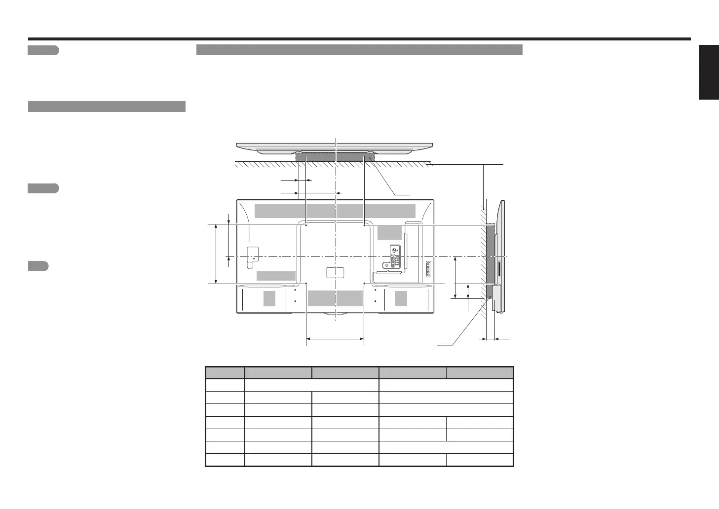
Setting the Monitor on the Wall
Wall Mount Kit Specifications
Standard dimensions for wall mount kits are shown below
*1 : WALL
*2 : WALL MOUNT KIT
a1 : Maximum distance from mounting hole.
a2 : Maximum distance from the Monitor's center.
b1 : Distance between the Monitor's center and the mounting hole.
b2 : Maximum distance from the Monitor's center.
b3 : Maximum distance from the mounting hole.
c1 : Minimum gap.
A
b1
B
b3
c1
b2
a2
a1
*2
*1
*2
Unit: inch (mm)
PN-Q901 PN-Q801 PN-Q701 PN-Q601
(A-B) 23 5/8 (600) - 15 3/4 (400) 15 3/4(400) - 15 3/4(400)
a1 1 37/64 (40) 2 3/8 (60) 2 3/8 (60)
a2 13 25/64 (340) 14 3/16 (360) 10 1/4 (260)
b1 7 7/8 (200) 8 9/32 (210) 8 9/32 (210) 8 43/64 (220)
b2 14 49/64 (375) 10 61/64 (278) 10 29/32 (277) 10 9/16 (268)
b3 6 57/64 (175) 3 7/16 (87) 3 7/16 (87)
c1 3 5/32 (80) 2 9/16 (65) 1 15/16 (49) 1 31/32 (50)
CAUTION
Installing the Monitor requires special skill that
should only be performed by qualified service
personnel. Customers should not attempt to do the
work themselves. SHARP bears no responsibility
for improper mounting or mounting that results in
accident or injury.
Hanging on the wall
The wall mount kit (sold separately) allows you to mount
the Monitor on the wall. For detailed information on
installing the wall mount, see the instructions provided
with the product.
We recommend you to contact a technician for
assistance when installing it.
SHARP is not responsible for any damage to the product
or injury to yourself or others if you elect to install the wall
mount on your own.
CAUTION
Install your wall mount on a solid wall
perpendicular to the floor.
When you want to attach the wall mount to
surfaces other than plaster board, please contact
your nearest retailer/adviser for additional
information. If you install the Monitor on a ceiling
or slanted wall, it may fall and result in severe
personal injury. Always have two people mount
the Monitor on a wall.
NOTE
Due to the terminal configuration on this Monitor,
when you wall-mount this model, make sure there is
enough space between the wall and the Monitor for
the cables.
To use this Monitor mounted on a wall, remove the
AC cord holder on the rear of the Monitor, and then
use the screws supplied with the wall mount bracket
to secure the bracket to the rear of the Monitor.

Other manuals for Sharp PN-Q801

Related product manuals