EasyManua.ls Logo

Sharp R-677W - Page 33

Sharp R-677W
42 pages
Print Icon
To Next Page IconTo Next Page
To Next Page IconTo Next Page
To Previous Page IconTo Previous Page
To Previous Page IconTo Previous Page
Loading...
R-677 - 33
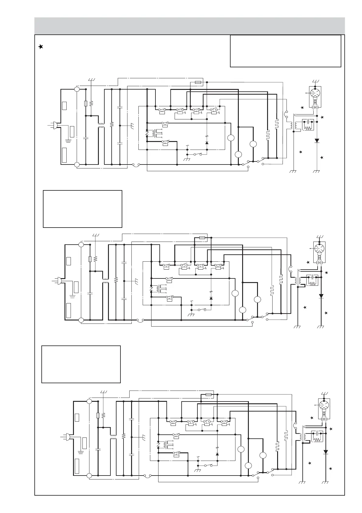
Figure O-4(b) Oven Schematic-Dual cooking Condition (Microwave and Bottom Grill mode)
SCHEMATIC
NOTE: CONDITION OF OVEN
1. DOOR CLOSED.
2. TOP AND BOTTOM GRILL COOKING MODE SELECTED.
3. COOKING TIME ENTERED.
4. STRAT BUTTON PRESSED.
Indicates components with potential above 250 V.
Figure O-3(c) Oven Schematic-Grill cooking Condition (TOP AND BOTTOM GRILL mode)
SCHEMATIC
NOTE: CONDITION OF OVEN
1. DOOR CLOSED.
2. DUAL 1 COOKING MODE SELECTED.
3. POWER LEVEL SELECTED.
4. COOKING TIME ENTERED.
5. STRAT BUTTON PRESSED.
Figure O-4(a) Oven Schematic-Dual cooking Condition (Microwave and Top Grill mode)
SCHEMATIC
NOTE: CONDITION OF OVEN
1. DOOR CLOSED.
2. DUAL 2 COOKING MODE SELECTED.
3. POWER LEVEL SELECTED.
4. COOKING TIME ENTERED.
5. STRAT BUTTON PRESSED.
CIRCUIT DIAGRAMS CONT...
OL
FM
TTM
OVEN LAMP
FAN MOTOR
TURNTABLE MOTOR
GH2: BOTTOM HEATING ELEMENT
H.V. RECTIFIER
MG:
MAGNETRON
T: HIGH VOLTAGE
TRANSFORMER
T/C TRANSFORMER
C:
CAPACITOR
1.02µF
AC2100V
CONTROL UNIT
A7
RY6
RY5
COM.
COM.
COM.
N.O.
A9
N.O.
N.O.
A3
A1
B2
A5
B1
SW2:
STOP SWITCH
SW1: PRIMARY LATCH SWITCH
TC1:THERMAL CUT-OUT(HVT.)
TC2:
THERMAL
CUT-OUT
(OVEN)
SW3:
MONITOR SWITCH
4700p/ 250V4700p/ 250V
10M/ 0.5W
NOISE SUPPRESSION COIL
680 k/ 0.5W
0.22µ/250V
F1: FUSE 20A
F2: FUSE F8ANOISE
FILTER
LN
NC.
NC.
RY1 RY4 RY3 RY2
230V ~ 50Hz
BRN/15BLU/15
G-Y/15
EARTH
LIVENEUTRAL
GH1: GRILL HEATING(TOP) ELEMENT
OL
FM
TTM
OVEN LAMP
FAN MOTOR
TURNTABLE MOTOR
GH1: GRILL HEATING(TOP) ELEMENT
GH2: BOTTOM HEATING ELEMENT
H.V. RECTIFIER
MG:
MAGNETRON
T: HIGH VOLTAGE
TRANSFORMER
T/C TRANSFORMER
C:
CAPACITOR
1.02µF
AC2100V
CONTROL UNIT
A7
RY6
RY5
COM.
COM.
COM.
N.O.
A9
N.O.
N.O.
A3
A1
B2
A5
B1
SW2:
STOP SWITCH
SW1: PRIMARY LATCH SWITCH
TC1:THERMAL CUT-OUT(HVT.)
TC2:
THERMAL
CUT-OUT
(OVEN)
SW3:
MONITOR SWITCH
4700p/ 250V4700p/ 250V
10M/ 0.5W
NOISE SUPPRESSION COIL
680 k/ 0.5W
0.22µ/250V
F1: FUSE 20A
F2: FUSE F8ANOISE
FILTER
LN
NC.
NC.
RY1 RY4 RY3 RY2
230V ~ 50Hz
BRN/15BLU/15
G-Y/15
LIVENEUTRAL
EARTH
OL
FM
TTM
OVEN LAMP
FAN MOTOR
TURNTABLE MOTOR
GH2: BOTTOM HEATING ELEMENT
H.V. RECTIFIER
MG:
MAGNETRON
T: HIGH VOLTAGE
TRANSFORMER
T/C TRANSFORMER
C:
CAPACITOR
1.02µF
AC2100V
CONTROL UNIT
A7
RY6
RY5
COM.
COM.
COM.
N.O.
A9
N.O.
N.O.
A3
A1
B2
A5
B1
SW2:
STOP SWITCH
SW1: PRIMARY LATCH SWITCH
TC1:THERMAL CUT-OUT(HVT.)
TC2:
THERMAL
CUT-OUT
(OVEN)
SW3:
MONITOR SWITCH
4700p/ 250V4700p/ 250V
10M/ 0.5W
NOISE SUPPRESSION COIL
680 k/ 0.5W
0.22µ/250V
F1: FUSE 20A
F2: FUSE F8ANOISE
FILTER
LN
NC.
NC.
RY1 RY4 RY3 RY2
230V ~ 50Hz
BRN/15BLU/15
G-Y/15
LIVENEUTRAL
EARTH
GH1: GRILL HEATING(TOP) ELEMENT

Related product manuals