EasyManua.ls Logo

Sharp SJ-340V - Page 44

Sharp SJ-340V
104 pages
Print Icon
To Next Page IconTo Next Page
To Next Page IconTo Next Page
To Previous Page IconTo Previous Page
To Previous Page IconTo Previous Page
Loading...
!"#$%&'()&#%%
INSTALACJA
!$*+',-,.#,
Nie instaluj niniejszej lodówki w miejscach
wilgotnych lub mokrych, poniew/0%m10e to
spowodow/2 zniszczenie 345 izolacji i wycieki
.
C
o wi 5cej, na lodów67%810e kondensow/2%%s45
wi9:12;
1.
Pros<5%</6=1>/2%1?@1>47?A4B%@C<73DC<7E%wokFG
91?F>H4%@1<>/9/IB6B%A/%>7AtJ9/6I5;
K
+J3LA7H%@C<7?3D/>4/%84A48/9AB%>J8/:/AB
przestC<7E
si5 od danych podanych w pomiarze zu0ycia prBdu.
K
Mo0na ograniczy2 zu0ycie energii przez lodówk5
zachowujBc wokóG niej wi5cej wolnej przestrzeni.
K
W przypadku korzystania z lodówki w przestrzeni
mniejszej ni0 podana na rysunku
, mo0e dojM2
do
wzrostu temperatury w lodówce, pow
staw
ania
gGoMnego haGasu i usterki.
2.
U0ycie regulowanej nó0ki przedniej zapewnia
bezpieczne i poziome ustawienie lodówki na podGodze.
UWAGA:
K
Ustaw swojB
lodówk5 tak, by wtyczka byGa Gatwo dost5pna.
K Nie nara0aj lodówki na bezpoMrednie MwiatGo sGoneczne.
K Nie umieszczaj lodówki blisko obiektów wydzielajBcych
c
iepGo.
K Nie ustawiaj bezpoMrednio na podGodze. Zapewnij
odpowiedniB podstaw5.
"C<7?%C1<@16<56478%1N3GL:4%91?F>H4
WyczyM2 cz5Mci
wewn5trzne MciereczkB zwil0onB ciepGB
wodB. JeMli u0ywasz wody z mydG
em, po umyciu
do
kGadnie zmyj jB czystB wodB.
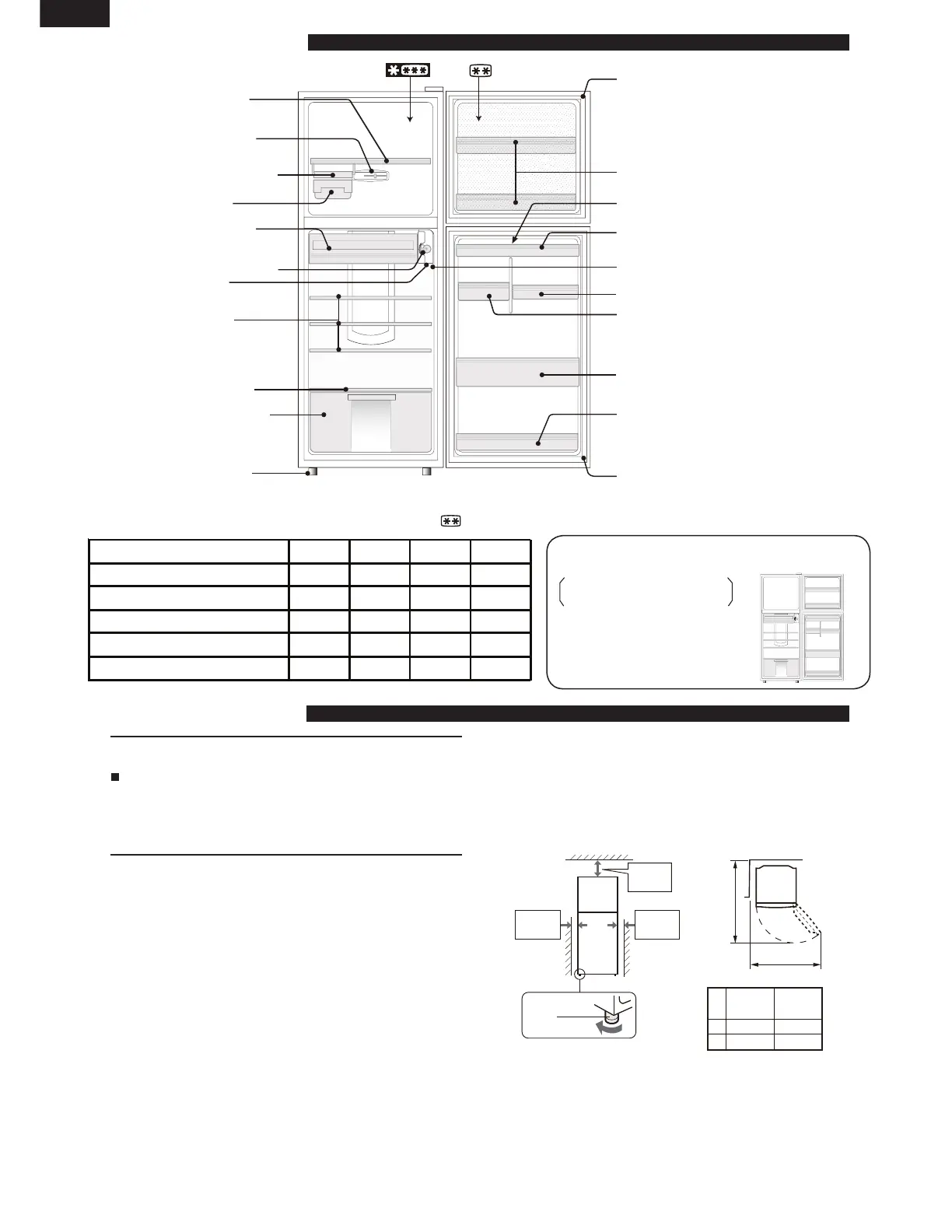
"FGH/%</8C/0/CH4
Uszczelka drzwi magnetycznych
Pojemnik w drzwiach
*
Pojemnik w drzwiach*
Uszczelka drzwi magnetycznych
Foremka do przechowywania jajek
*
O473<7E%<%P1C78HB%?1%I/I7H
QJGB6<A4H%1M>47D97A4/
R/G/%@FGH/%S@1%@C/>7I%3DC1A47T
*
R/G/%@FGH/%S@1%97>7I%3DC1A47T
Pojemnik na butelki
"1HC5DG1%C7:L9/D1C/%
D78@7C/DLCJ%</8C/0/A4/
"1HC5DG1%C7:L9/D1C/%
D78@7C/DLCJ%6=G1?<7A4/
!M>47D97A47%
lodówki - dioda LED
"FGH/%91?F>H4
"FGH/%A/%>/C<J>/
Pojemnik na warzywa
+7:L91>/A7%AF0H4
Zbiornik lodu
O181C/%6=G1?<B6/
*
*
K PrzestrzeE oznaczona dwoma gwiazdkami sGu0y tylko do przechowywania zamro0onej 0ywnoMci.
Nazwa modelu 300V 340V 380V 420V
"FGH/%91?F>H4%%%%%%%%%%%%%%%%%%%%%%%%%%%%%%%%%%%%%%%%%%%%3 3 3 3
"FGH/%A/%>/C<J>/%%%%%%%%%%%%%%%%%%%%%%%%%%%%%%%%%%%%%1 1 1 1
Pojemnik w drzwiach 3 3 3 3
Foremka do przechowywania jajek - - 1 1
R/G/%@FGH/%S@1%@C/>7I%3DC1A47T 1 1 1 2
a
b
90 mm
60 mm
60 mm
SJ-300V
SJ-340V
SJ-380V
SJ-420V
a
b
970mm
1145mm
1065mm
1221mm
Regulowane
< SJ-380V >
Zasobnika kostka lodu
Q4567I%0J>A1M64%8107%NJ2%@C<76=1>J>/A7%@1@C<7<%
L3LA45647%/H6731C4F>%>3H/</AJ6=%A/%@1A403zym rysunku.
Zasobnika kostka lodu,
Zbiornik lodu, "FGH/%</8C/0/CH4
PL
AF0H4
9LN%>4567I
9LN%>4567I
9LN%>4567I
!?3D5@%@1845?<J%DJG78%91?F>H4%/%M64/AB%@1>4A47A%K
>JA1342%UV%88%9LN%>4567IW%/97%8A47I%A40%XY%88;%Z7M94%
1?3D5@%I73D%>45H3<J%A40%XY%88W%810A/%?1<A/2%1NC/07E%
@1@C<7<%?1DHA45647%3@C50/CH4%4%I7I%6<5M64%<7>A5DC<AJ6=W%
HDFC7%3B%N/C?<1%:1CB67%@1?6</3%@C/6J;

Table of Contents

Related product manuals