EasyManua.ls Logo

Sharp SJ-WX830A - Descrição

Sharp SJ-WX830A
400 pages
Print Icon
To Next Page IconTo Next Page
To Next Page IconTo Next Page
To Previous Page IconTo Previous Page
To Previous Page IconTo Previous Page
Loading...
PT-4
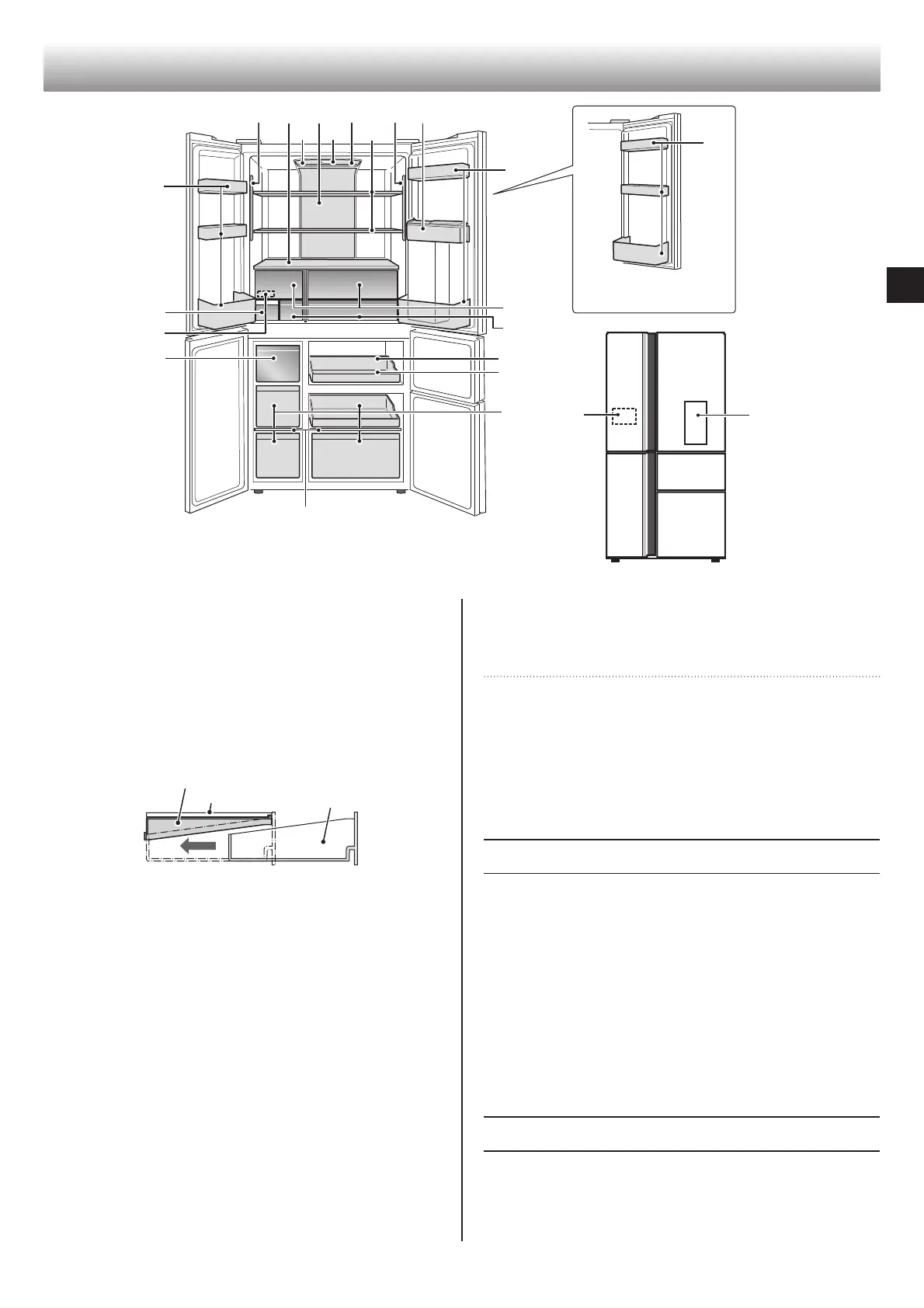
1. &RPSDUWLPHQWRGDSRUWD
6-:;$
SHoDV
6-6;$6-3;$
SHoDV
2. 3UDWHOHLUDGRIULJRUt¿FR

XQLG
3. 3UDWHOHLUD¿[D
4. &DL[DGHOHJXPHV
$FREHUWXUDGHKXPLGDGHHVWiLQVWDODGDDSHQDV
GRODGRGLUHLWR
Esta cobertura serve para armazenar alimentos com
alta humidade com frescura.
5. 6XSRUWHGHRYRV
6. &DL[DGHIUHVFRV
7. 5HVHUYDWyULRGHiJXDPiTXLQDGHJHOR
8. 5HVHUYDWyULRGRGLVSHQVDGRU$SHQDVSDUD6-
:;$!
9. &DL[D
10. 7DEXOHLURGHDoRLQR[LGiYHO
11. &DL[DGHDUPD]HQDPHQWRGHJHOR
Para evitar danos na caixa de armazenamento de
gelo, não faça gelo nesta, nem deixe óleo lá dentro.
12. 3UDWHOHLUDGRFRQJHODGRU
13. &DL[DGRFRQJHODGRU
14. Luz
15. ,QGLFDGRUGH3ODVPDFOXVWHU
16. 3DLQHOGHDUUHIHFLPHQWRKtEULGR
2SDLQHODUUHIHFHRFRPSDUWLPHQWRGRIULJRUt¿FR
de forma indireta a partir de trás. Deste modo, os
alimentos são arrefecidos de forma suave, sem
Descrição
HVWDUHPH[SRVWRVDXPÀX[RGHDUIULR
17. 3DLQHOGHFRQWUROR
18. 'LVSHQVDGRUGHiJXD$SHQDVSDUD6-:;$!
6HGHVHMDUDUPD]HQDUSURGXWRVJUDQGHVQR
IULJRUt¿FR
Pode remover algumas das prateleiras ou
compartimentos com os números 1, 2, 4, 5, 6, 7, 8, 9,
10, 11, 12 e 13 na imagem em cima.
O desempenho de arrefecimento não é afetado pela
XWLOL]DomRGRIULJRUt¿FRQDVLWXDomRDFLPDPHQFLRQDGD
&REHUWXUDGHKXPLGDGHQmRUHPRYtYHO
Cover
SJ-SX830A
SJ-PX830A
SJ-WX830A
18
17
1
1
7
5
1
4
6
8
11
12
9
10
2
1416
1514
14 143
13
3UDWHOHLUD¿[D
&DL[DGHOHJXPHV
)
Alarme da porta
2DODUPHGDSRUWDVRDUiTXDQGRDSRUWD¿FDUDEHUWD
2DODUPHGDSRUWDVRDDR¿PGHPLQXWRFRPDSRUWD
DEHUWDHQRYDPHQWHDR¿PGHPLQXWRXPDYH]HP
cada caso).
6HDSRUWD¿FDUDEHUWDGXUDQWHFHUFDGHPLQXWRV
o alarme soará continuamente.
O alarme parará assim que se fechar a porta.
*
$SHQDVSRUWDGRIULJRUt¿FRHSRUWDHVTXHUGDGR
congelador.)
Unidade desodorizante
O catalisador desodorizante está instalado nas vias
do ar fresco. Não é necessário nenhuma operação ou
limpeza.

Table of Contents

Related product manuals