EasyManua.ls Logo

Shield SD1010 - SHIELD Horizontal Sidewall Sprinkler Dimensions

Shield SD1010
29 pages
Print Icon
To Next Page IconTo Next Page
To Next Page IconTo Next Page
To Previous Page IconTo Previous Page
To Previous Page IconTo Previous Page
Loading...
15
www.shieldglobal.com
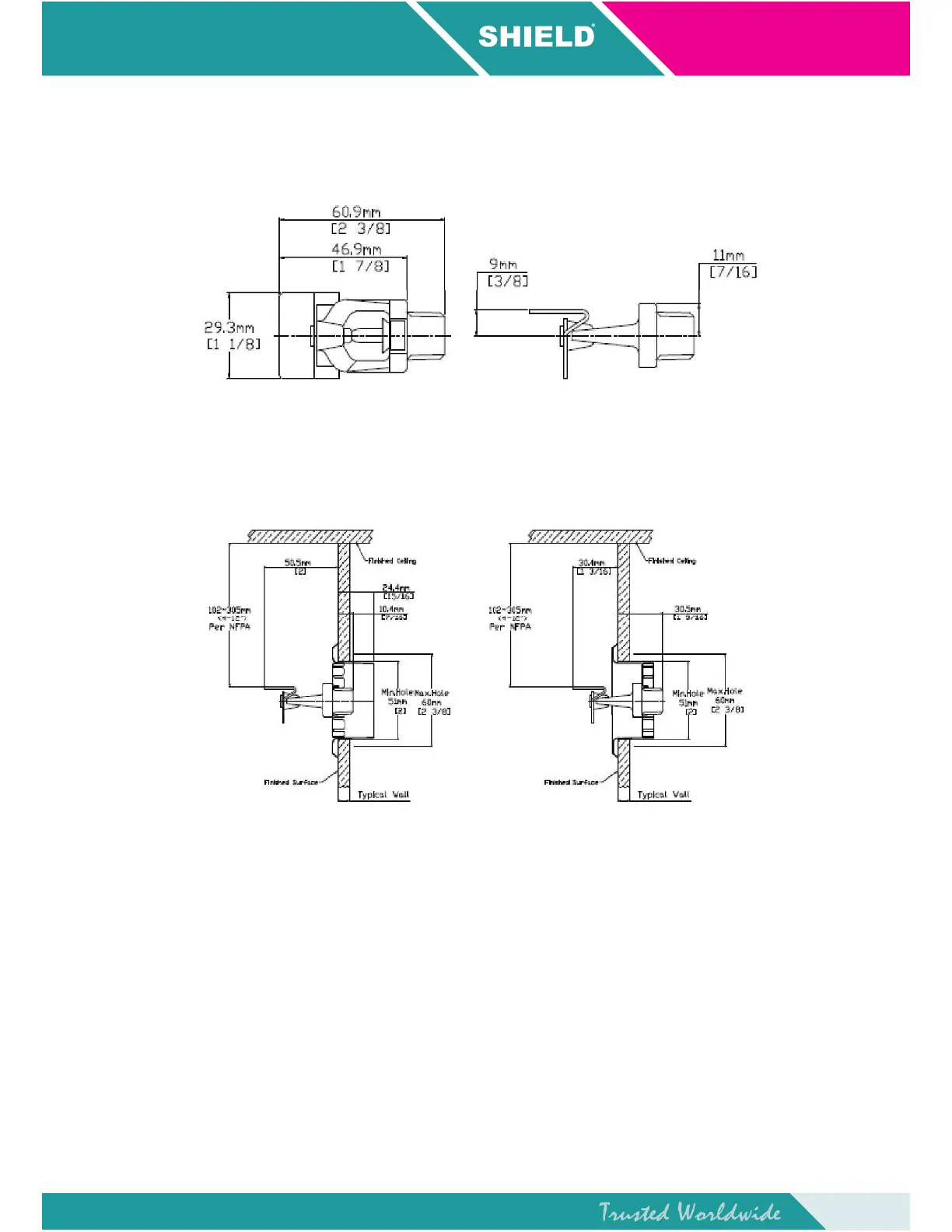
DIMENSIONS
RECESSEDPENDENTSPRINKLER
MaximumExtension MaximumRecess

Other manuals for Shield SD1010