EasyManua.ls Logo

Shining KF-70GW - Refrigeration Cycle Diagram

Default Icon
62 pages
Print Icon
To Next Page IconTo Next Page
To Next Page IconTo Next Page
To Previous Page IconTo Previous Page
To Previous Page IconTo Previous Page
Loading...
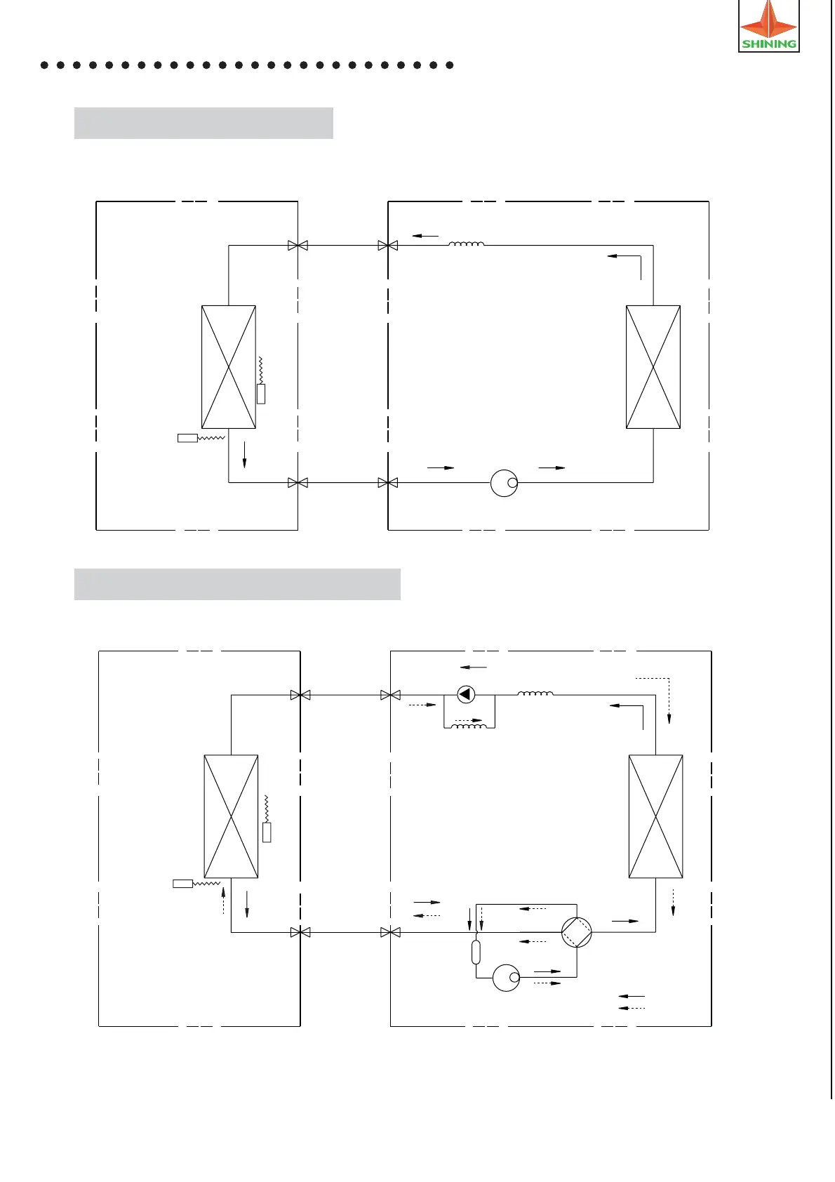
Refrigeration cycle diagram
16
Models:7000-12000Btu
Models:7000-12000Btu
Indoor unit Outdoor unit
Check valve(Heating model)
Accumulator
Indoor
Exchanger
Indoor air thermo
Indoor
pipe
thermo
3-way valve
2-way valve
Gas side
Liquid side
Heating capillary
Compressor
Outdoor
Exchanger
Reversing valve
(Heating model)
cooling
heating
Cooling capillary
Indoor unit
Indoor
Exchanger
Indoor air thermo
3-way valve
2-way valve
Gas side
Liquid side
Cooling capillary
Compressor
Outdoor
Exchanger
Outdoor unit
Indoor
pipe
thermo
COOLING ONLY MODELS
COOLING AND HEATING MODELS

Related product manuals