EasyManua.ls Logo

Shining KF-70GW - Main Functions

Default Icon
62 pages
Print Icon
To Next Page IconTo Next Page
To Next Page IconTo Next Page
To Previous Page IconTo Previous Page
To Previous Page IconTo Previous Page
Loading...
18
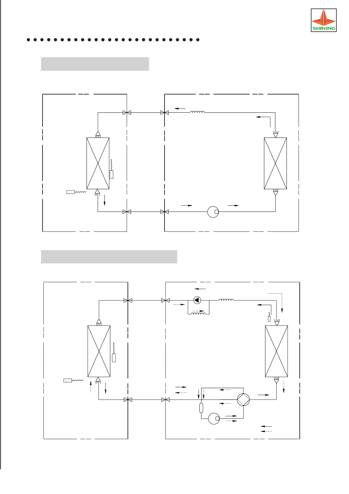
Indoor unit
Indoor
Exchanger
Indoor air thermo
Indoor
pipe
thermo
3-way valve
2-way valve
Gas side
Liquid side
Cooling capillary
Compressor
Outdoor
Exchanger
Outdoor unit
Check valve(Heating model)
Accumulator
Indoor unit
Indoor
Exchanger
Indoor air thermo
Indoor
pipe
thermo
3-way valve
2-way valve
Gas side
Liquid side
Cooling capillary
Compressor
Outdoor
Exchanger
Outdoor unit
Reversing valve
(Heating model)
cooling
heating
outdoor pipe
thermor
Heating capillary
Refrigeration cycle diagram
COOLING ONLY MODELS
COOLING AND HEATING MODELS
Models:24000Btu
Models:24000Btu

Related product manuals