EasyManua.ls Logo

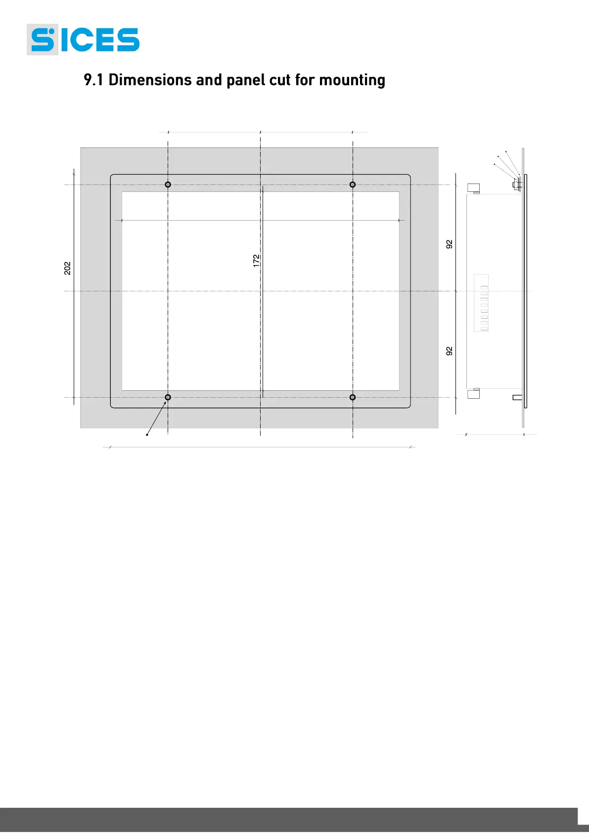
Sices DST4601 - 9.1 Dimensions and Panel Cutout

Sices DST4601
19 pages
Print Icon
To Next Page IconTo Next Page
To Next Page IconTo Next Page
To Previous Page IconTo Previous Page
To Previous Page IconTo Previous Page
Loading...
18 User’s Manual
HOLE Ø 5MM
240
80 80
260
70
EXAGONAL NUT 4MA
SPRING WASHER Ø4
WASHER Ø4