EasyManua.ls Logo

Siemens 3TK2805 - Circuit Diagrams and Operating Modes (3 TK2805); 3 TK2805 Internal Circuit Diagram (DC Version); 3 TK2805 Operating Modes and Terminal Functions

Siemens 3TK2805
16 pages
Print Icon
To Next Page IconTo Next Page
To Next Page IconTo Next Page
To Previous Page IconTo Previous Page
To Previous Page IconTo Previous Page
Loading...
3ZX1012-0TK28-5AA1 13
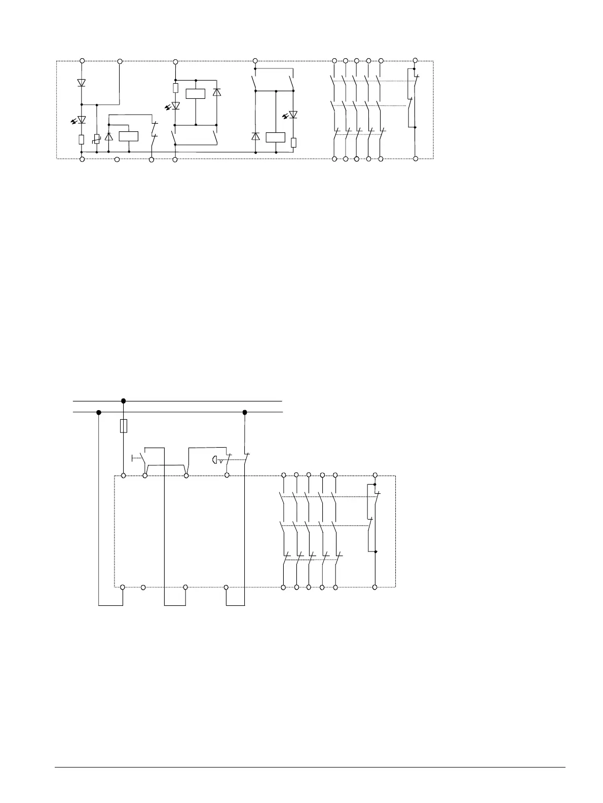
Innenschaltbild (DC-Ausführung)
Internal circuit diagram (DC version)
Schéma interne (variante CC)
Circuito interno (versión para DC)
Schema circuitale interno
(esecuzione DC)
Esquema de ligações interno
(versão DC)
Вътрешна електрическа схема
(DC изпълнение)
Indvendigt strømskema (DC-udgave)
Sisemine lülitusskeem
(alalisvooluversioon)
Sisäinen kytkentäkaavio (DC-malli)
Σχέδιο εσωτερικών συνδέσεων
(έκδοση DC)
Léaráid den chiorcad inmheánach
(leagan DC)
Iekšējā slēguma shēma
(līdzstr. izpildījums)
Vidaus sujungimų schema
(DC modifikacija)
Dijagramma taċ-ċirkuwitu intern
(verżjoni DC)
Intern schakelschema (DC-uitvoering)
Schemat połączeń elektrycznych
wewnątrz urządzenia (wersja DC)
Schemă electrică internă (varianta DC)
Internt kopplingsschema (DC-version)
Vnútorná schéma zapojenia
(DC vyhotovenie)
Notranja shema vezja (izvedba za DC)
Schéma vnitřního zapojení
(provedení DC)
Belső kapcsolási rajz (DC kivitel)
İç devre şeması (DC modeli)
Схема внутренних соединений
(Исполнение DC)
内部电路图
DC
规格)
3TK2805
Überwachter Start; Not-Halt (2-kanalig)
Monitored Start; Emergency stop (2-channel)
Démarrage surveillé ; Arrêt d'urgence (2 canaux)
Arranque vigilado; Parada de emergencia (2 canales)
Avvio monitorato; Arresto di emergenza (a 2 canali)
Início controlado; Parada de emergência (2 canais)
Контролирано стартиране; Аварийно спиране
(2-канално)
Overvåget start; Nødstop (2 kanaler)
Kontrollitud käivitus; Avariilüliti (2-kanaliga)
Valvottu käynnistys; Hätä-Seis (2-kanavainen)
Ελεγχόμενη εκκίνηση; Αναγκαστική διακοπή
(2 καναλιών)
Tosaithe faoi mhonatóireacht; Stad práinneach
(2-chainéal)
Kontrolēts starts; Avārijas apturēšana (2 kanālu)
Kontroliuojama paleistis; Avarinis sustabdymas
(2 kanalų)
Startjar monitorjar; Waqfien ta' emerġenza (2 kanali)
Bewaakte start; Noodstop (2-kanaals)
Start kontrolowany; Zatrzymanie awaryjne (2 kanałowe)
Declanşare supraveghată; Oprire de urgenţă (bicanal)
Övervakad start; Nödstopp (2-kanals)
Kontrolovaný štart; núdzové zastavenie (2-kanálové)
Nadziran zagon; Izklop v sili (2-kanalno)
Monitorovaný startt; Nouzový vypínač (dvoukanálový)
Felügyelt start; Vész-Állj (2-csatornás)
Kontrollü start; Acil Durdurma (2 kanallı)
Контролируемый запуск , Аварийный останов
(двухканальный)
监控启动 紧急停止 (双通道)
3TK2805
L1/L+
X5X1
A1 (+)
A2 (-)
F1
X2 X4 X6
X3
13 23 33 43 53 65
14 24 34 44 54 66
K3
K2
K1
N/L-

Related product manuals