EasyManua.ls Logo

Siemens 7UT512

Siemens 7UT512
248 pages
To Next Page IconTo Next Page
To Next Page IconTo Next Page
To Previous Page IconTo Previous Page
To Previous Page IconTo Previous Page
Loading...
87
,QVWDOODWLRQ LQVWUXFWLRQV
9
&*&
 &KHFNLQJ WKH /6$ WUDQVPLVVLRQ OLQN
,I WKH LQWHUIDFH IRU D FHQWUDO GDWD SURFHVVLQJ VWDWLRQ
HJ /6$ LV XVHG WKHVH FRQQHFWLRQV PXVW DOVR EH
FKHFNHG ,W LV LPSRUWDQW WR YLVXDOO\ FKHFN WKH DOORFD
WLRQ RI WKH WUDQVPLWWHU DQG UHFHLYHU FKDQQHOV 6LQFH
HDFK FRQQHFWLRQ LV XVHG IRU RQH WUDQVPLVVLRQ GLUHF
WLRQ WKH WUDQVPLW FRQQHFWLRQ RI WKH UHOD\ PXVW EH
FRQQHFWHG WR WKH UHFHLYH FRQQHFWLRQ RI WKH FHQWUDO
XQLW DQG YLFH YHUVD
,I GDWD FDEOHV DUH XVHG WKH FRQQHFWLRQV DUH PDUNHG
LQ V\PSDWK\ ZLWK ,62  DQG ',1 
7;' 7UDQVPLW OLQH RI WKH UHVSHFWLYH XQLW
07 )UDPH UHIHUHQFH IRU WKH WUDQVPLW OLQH
5;' 5HFHLYH OLQH RI WKH UHVSHFWLYH XQLW
05 )UDPH UHIHUHQFH IRU WKH UHFHLYH OLQH
7KH FRQGXFWRU VFUHHQ DQG WKH FRPPRQ RYHUDOO
VFUHHQ PXVW EH HDUWKHG DW RQH
OLQH HQG RQO\ 7KLV
SUHYHQWV FLUFXODWLQJ FXUUHQWV IURP IORZLQJ YLD WKH
VFUHHQ LQ FDVH RI SRWHQWLDO GLIIHUHQFHV
7UDQVPLVVLRQ YLD RSWLFDO ILEUH LV UHFRPPHQGHG ,W LV
SDUWLFXODUO\ LQVHQVLWLYH DJDLQVW GLVWXUEDQFHV DQG DX
WRPDWLFDOO\ SURYLGHV JDOYDQLF LVRODWLRQ 7UDQVPLW DQG
UHFHLYH FRQQHFWRU DUH GHVLJQDWHG ZLWK WKH V\PEROV
IRU WUDQVPLW RXWSXW DQG IRU UHFHLYH LQ
SXW
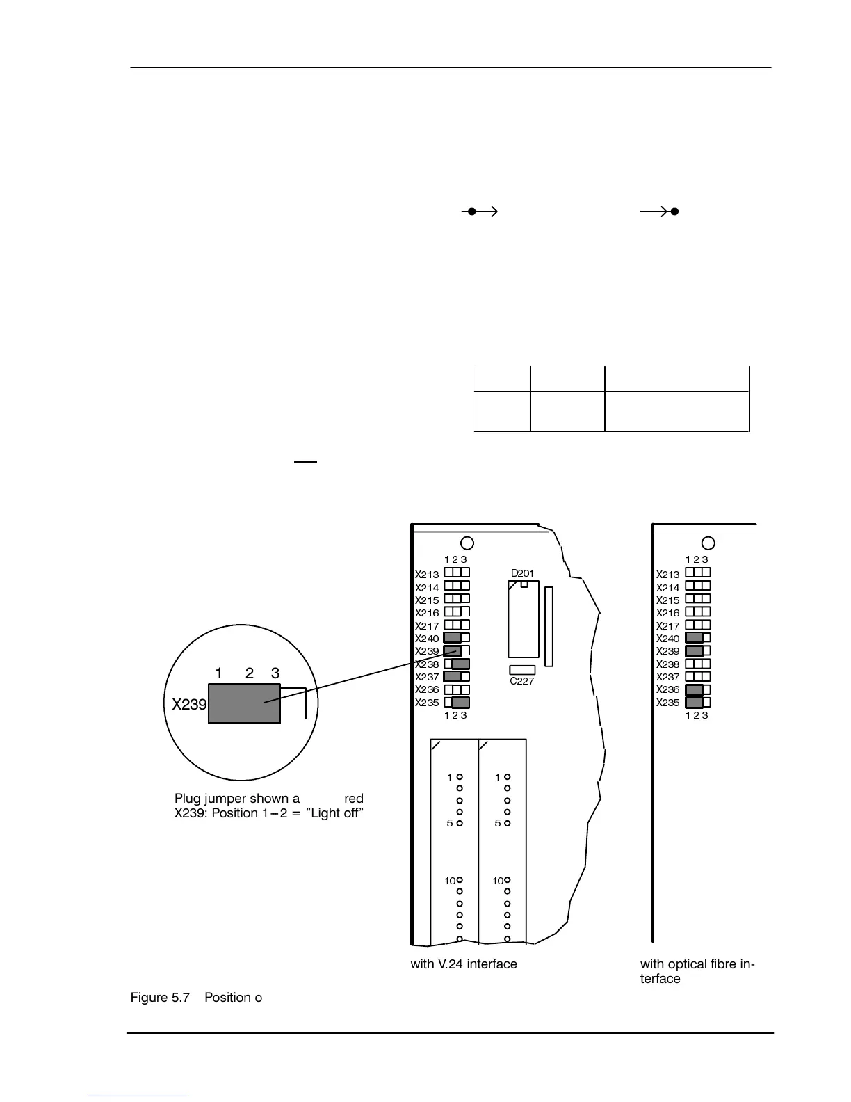
7KH QRUPDO VLJQDO SRVLWLRQ IRU WKH GDWD WUDQVPLVVLRQ
LV IDFWRU\ SUHVHW DV lOLJKW RIIl 7KLV FDQ EH FKDQJHG
E\ PHDQV RI D SOXJ MXPSHU ; ZKLFK LV DFFHVVLEOH
ZKHQ WKH EDVLF LQSXWRXWSXW PRGXOH LV UHPRYHG
IURP WKH FDVH 7KH MXPSHU LV VLWXDWHG LQ WKH UHDU DUHD
RI WKH SRZHU VXSSO\ ERDUG FHQWUH ERDUG )LJXUH

-XPSHU 3RVLWLRQ 1RUPDO VLJQDO SRVLWLRQ
; l/LJKW RIIl
; l/LJKW RQl
7KH ILJXUH VKRZV DGGLWLRQDOO\ WKH SRVLWLRQ RI IXUWKHU
SOXJV ZKLFK DUH SUHVHW E\ WKH IDFWRU\ DQG PXVW QRW
EH FKDQJHG
;
;
;
;
;
;
;
;
;
;
;


'
&



;
;
;
;
;
;
;
;
;
;
;
;


ZLWK 9 LQWHUIDFH ZLWK RSWLFDO ILEUH LQ
WHUIDFH
3OXJ MXPSHU VKRZQ DV GHOLYHUHG
; 3RVLWLRQ l/LJKW RIIl
)LJXUH  3RVLWLRQ RI WKH MXPSHU ; RQ WKH SRZHU VXSSO\ ERDUG
www . ElectricalPartManuals . com

Related product manuals