EasyManua.ls Logo

Siemens SIRIUS 3TK2821 - Page 11

Siemens SIRIUS 3TK2821
12 pages
Go to English
To Next Page IconTo Next Page
To Next Page IconTo Next Page
To Previous Page IconTo Previous Page
To Previous Page IconTo Previous Page
Loading...
X
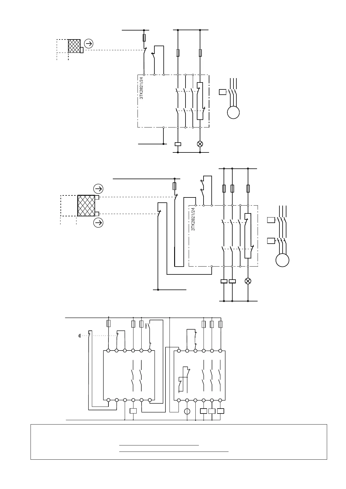
3TK2821-1CB30
3TK2823-1CB30
K2...K4
K2 K3 K4
L+(24V DC)
M
K1
K1
EIN
Y21 14A2 24 Y34Y22
A1 Y332313Y12Y11
A1 332313Y2Y1
41 A242
Technische Änderungen vorbehalten. Zum späteren Gebrauch aufbewahren!
Subject to change without prior notice. Store for use at a later date.
© Siemens AG 2004
Bestell-Nr./Order No.: 3ZX1012-0TK28-1CA1
Technical Assistance: Telephone: +49 (0) 911-895-5900 (8°° - 17°° CET) SIEMENS AG
Fax: +49 (0) 911-895-5907 Industry Sector
E-mail: technical-assistance@siemens.com
Postfach 4848
Internet: www.siemens.de/lowvoltage/technical-assistance
90327 Nürnberg
GERMANY
IX
offen
open
ouverts
abierto
aperto
aberto
geopend
zu
closed
fermés
cerrado
chiuso
fechado
gesloten
N/–
M
13 23
14 24
K2
A2
K1
N/–
A1
24 V AC/DC
L/+
(34) (42)
(33) (41)
K1
K2
K1
K2
Y1 Y2
H1
VIII
offen
open
ouverts
abierto
aperto
aberto
geopend
zu
closed
fermés
cerrado
chiuso
fechado
gesloten
K1
M
13 23
14 24
A2
K1
N/–
N/–
A1
24 V AC/DC
L/+
(34) (42)
(33) (41)
K1
Y1 Y2
H1
VII
Q1
Q1
Q1
Q2
Q1
Q1
Q2
Q1
Q2

Other manuals for Siemens SIRIUS 3TK2821

Related product manuals