EasyManua.ls Logo

Siemens SIRIUS 3TK2821 - Page 15

Siemens SIRIUS 3TK2821
18 pages
Print Icon
To Next Page IconTo Next Page
To Next Page IconTo Next Page
To Previous Page IconTo Previous Page
To Previous Page IconTo Previous Page
Loading...
3ZX1012-0TK28-1CA1 15
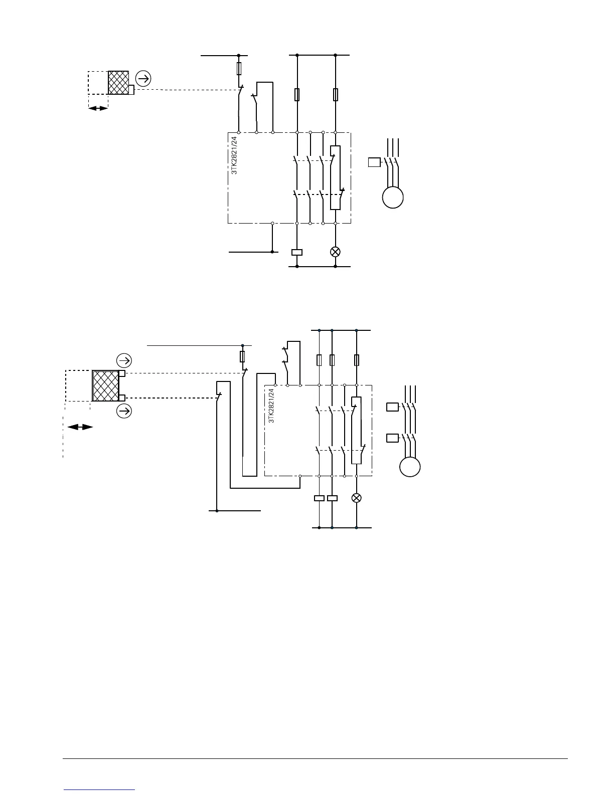
Schutztürüberwachung (1-kanalig)
Protective door monitoring (1-channel)
Surveillance de protecteur mobile (1 canal)
Parada de emergencia (1 canal)
Monitoreo de puerta de protección (1 canal)
Controllo riparo di protezione (a 1 canale)
Monitoramento da porta de proteção (1 canal)
Наблюдение на защитната врата (1-канално)
Overvågning af beskyttelsesdør (1 kanal)
Turvauste kontrollimine (1-kanaliga)
Suojaoven valvonta (1-kanavainen)
Επιτήρηση πόρτας προστασίας (1 καναλιού)
Monatóireacht ar dhoras cosanta (1-chainéal)
Drošības durvju kontrole (1 kanāla)
Apsauginių durų kontrolė (1 kanalo)
Monitoraġġ tal-bieba ta' protezzjoni (kanal 1)
Veiligheidsdeurcontrole (1-kanaals)
Nadzorowanie drzwi zabezpieczających
(1 kanałowe)
Control uşă de protecţie (monocanal)
Skyddsdörrsövervakning (1-kanals)
kontrola ochranných dverí (1-kanálová)
Nadzor zaščitnih vrat (1-kanalno)
Monitorování ochranných dveří (jednokanálové)
Védő-felügyelet (1-csatornás)
Koruma kapısı denetlemesi (1 kanallı)
Контроль защитной двери (одноканальный)
防护门监控 (单通道)
offen
open
ouverts
abierto
aperto
aberto
geopend
zu
closed
fermés
cerrado
chiuso
fechado
gesloten
K1
M
13 23
14 24
A2
K1
N/–
N/–
A1
24 V AC/DC
L/+
(34) (42)
(33) (41)
K1
Y1 Y2
H1
Q1
Q1
Q1
en
en
verts
ierto
erto
erto
opend
zu
closed
fermés
cerrado
chiuso
fechado
gesloten
N/–
M
13 23
14 24
K2
A2
K1
N/–
A1
24 V AC/DC
L/+
(34) (42)
(33) (41)
K1
K2
K1
K2
Y1 Y2
H1
Q2
Q1
Q1 Q2
Q1
Q2
Schutztürüberwachung (2-kanalig)
Protective door monitoring (2-channel)
Surveillance de protecteur mobile (2 canal)
Monitoreo de puerta de protección (2 canales)
Controllo riparo di protezione (a 2 canali)
Monitoramento da porta de proteção (2 canais)
Наблюдение на защитната врата
(2-канално)
Overvågning af beskyttelsesdør (2 kanal)
Turvauste kontrollimine (2-kanaliga)
Suojaoven valvonta (2-kanavainen)
Επιτήρηση πόρτας προστασίας (2 καναλιών)
Monatóireacht ar dhoras cosanta (2-chainéal)
Drošības durvju kontrole (2 kanālu)
Apsauginių durų kontrolė (2 kanalų)
Monitoraġġ tal-bieba ta' protezzjoni (2 kanali)
Veiligheidsdeurcontrole (2-kanaals)
Nadzorowanie drzwi zabezpieczających
(2 kanałowe)
Control uşă de protecţie (bicanal)
Skyddsdörrsövervakning (2-kanals)
kontrola ochranných dverí (2-kanálová)
Nadzor zaščitnih vrat (2-kanalno)
Monitorování ochranných dveří (dvoukanálové)
Védő-felügyelet (2-csatornás)
Koruma kapısı denetlemesi (2 kanallı)
Контроль защитной двери (двухканальный)
防护门监控 (双通道)

Other manuals for Siemens SIRIUS 3TK2821

Related product manuals