EasyManua.ls Logo

Siemens SITOP DC-UPS-Module 15 - Special Area Requirements; ATEX Zone Usage and Warnings

Siemens SITOP DC-UPS-Module 15
8 pages
Print Icon
To Previous Page IconTo Previous Page
To Previous Page IconTo Previous Page
Loading...
© Siemens AG 2016 8 von 8 SITOP DC-USV-Modul 15
A5E38473417, 08.2016
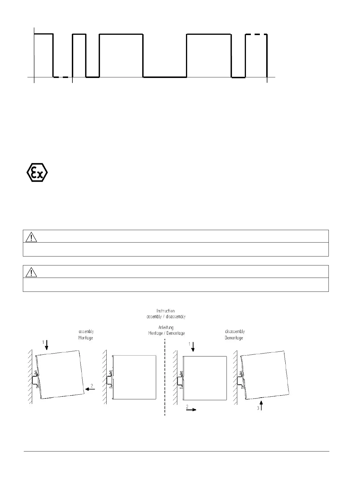
Diagramm 1: Remote-signal
Diagram 1: Remote-signal
Lowsignal unbestimmter Länge startet das Remotesignal
Low signal with undefined length starts the remote signal
1.) 30ms 120ms Highsignal
2.) 30ms 120ms Lowsignal
3.) 200ms 400ms Highsignal
4.) 200ms 400ms Lowsignal
5.) 200ms 400ms Highsignal
6.) 30ms 120ms Lowsignal
7.) max. 256s Highsignal
mit der letzten Flanke High-Low wird das Remote-Signal ausgewertet und der Timer gestartet
the remote signal will be evaluated with the last High-Low edge and starts the timer
Vorschriften / Standards:
ATEX
II 3G Ex nA nC IIC T3 Gc
Harzardous Areas: An enclosure / cabinet rated min. IP54 must be provided in the final installation.
The enclosure / cabinet must be in accordance with the requirement of EN 60079-0:2009 and/or EN60079-15:2010
DIP switches shall not be used in operation or while a hazardous area may be present
RS 232 must be fixed with screws as intended
The USB-interface cable has to be secured according to the requirements of EN 60079-15:2010, otherwise a permanent connection / disconnection
or operation is not permitted while hazardous area conditions may be present.
Without meeting the requirements of EN 60079-15:2010, the USB-cable is permitted for installation / maintenance only.
WARNUNG
ANSCHLÜSSE NUR IN NICHT-EXPLOSIVER UMGEBUNG TRENNEN!
SCHALTERBETÄTIGUNG NUR IN NICHT-EXPLOSIVER UMGEBUNG DURCHFÜHREN!
Der Signalstecker darf in Ex Bereichen nur mit zusätzlicher Befestigungen verwendet werden um der EN 60079-15 zu genügen.
WARNING
SEPARATE TERMINALS IN NON-HAZARDOUS AREAL ONLY!
ACTUATE SWITCHES IN NON-HAZARDOUS AREAS ONLY!
The signal plug must not be used without additional fixings in explosive atmospheres to fulfill the requirements according EN 60079-15.
© Siemens AG Österreich, AT-1210 Vienna, Austria. All rights reserved.
Liefermöglichkeiten und technische Änderungen vorbehalten
Availability and technical specifications subject to change without prior notice
1 2 3 4 5 6 7 t
H
L