EasyManua.ls Logo

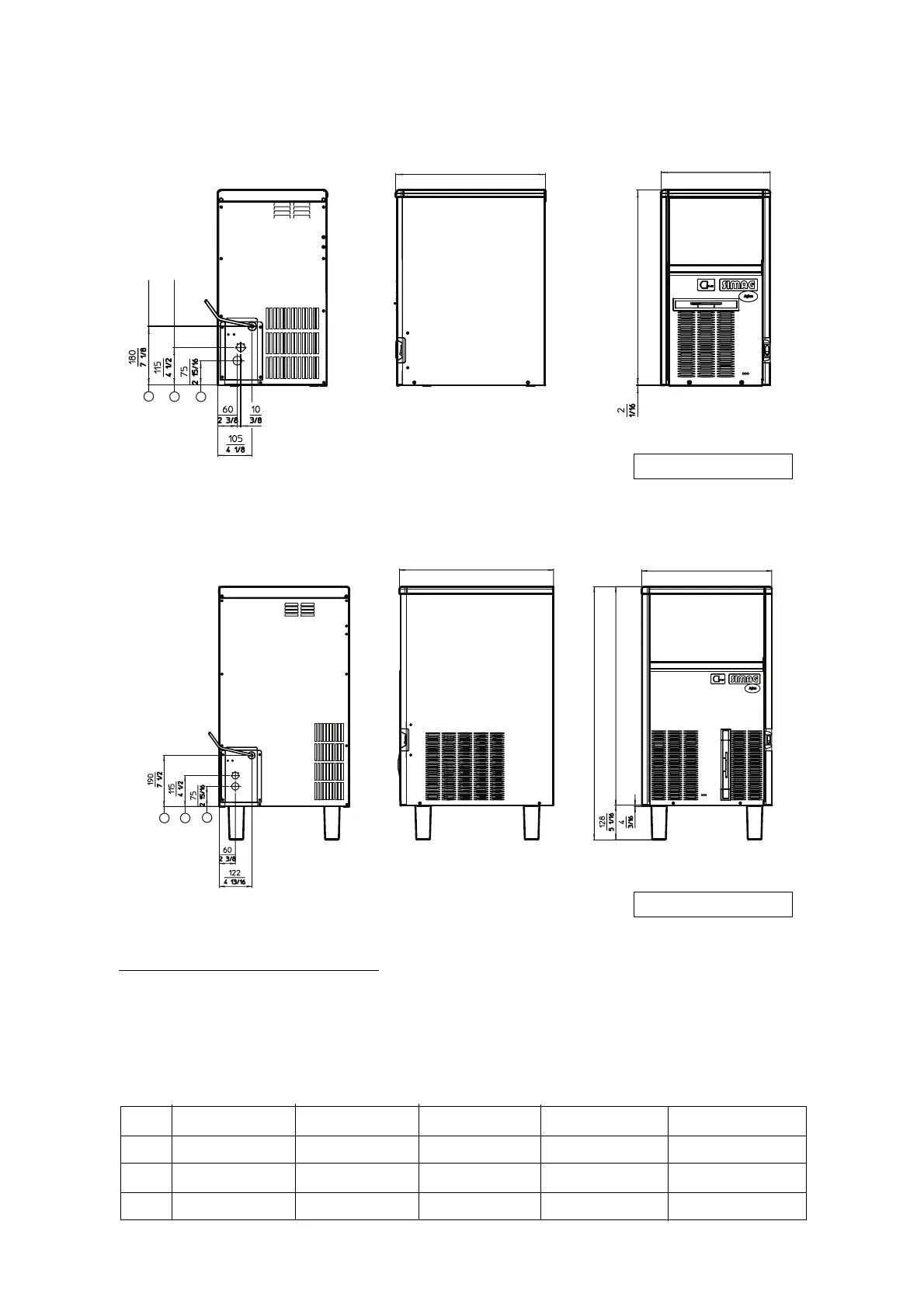
SIMAG SDN25 - Machine Dimensions and Technical Drawings; Dimensions for SDN 25-30 and SDN 35-45-65 Models

SIMAG SDN25
45 pages
Print Icon
To Next Page IconTo Next Page
To Next Page IconTo Next Page
To Previous Page IconTo Previous Page
To Previous Page IconTo Previous Page
Loading...
C
SDN 25 (mm) SDN 30 (mm) SDN 35 (mm) SDN 45 (mm) SDN 65 (mm)
A 334 377 377 485 485
B 454 552 552 572 572
C 597 637 637 721 816
CORD SET -
ELEK. KABEL
Ø 20 WATER OUTLET -
WASSERABFLUSS
G3/4" WATER INLET -
WASSEREINLAUF
SDN 25 - 30
SDN 35 - 45 - 65
12
3
1
2
3
B
A
C
B
A
C

Related product manuals