EasyManua.ls Logo

Sime DEWY Series - Page 4

Sime DEWY Series
34 pages
Print Icon
To Next Page IconTo Next Page
To Next Page IconTo Next Page
To Previous Page IconTo Previous Page
To Previous Page IconTo Previous Page
Loading...
IT
ES
PT
GB
96
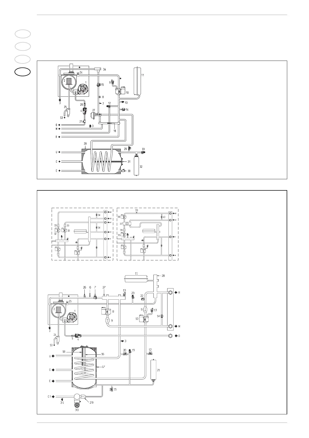
1.4 FUNCTIONAL DIAGRAM
1.4.1 “30/80” model
Fig. 2
KEY
1Fan
2 Water-gas exchanger
3 Breather valve
4 Gas valve
7 C.H. sensor (SM)
8 100°C safety stat
9 Air relief valve
10 Circulation pump
11 Expansion vessel
12 Safety valve
13 Boiler discharge
14 Water pressure transducer
15 Flowmeter
16 Automatic by-pass
21 Gas cock
24 Limit stat
25 Condensation water trap
26 Gas rate adjuster
27 Motor-operated diverter valve
28 Storage tank 80 liter
29 Filling cock
30 D.H.W. discharge cock
31 Magnesium anode
32 D.H.W. expansion vessel
33 D.H.W. safety valve 7 bar
34 Aqua Guard Filter System
CONFIGURAZIONE
KIT BASSA TEMPERATURA
CONFIGURAZIONE
KIT POMPA 2/3 ZONA
1.4.2 “30/130” model
Fig. 2/a
KEY
1Fan
2 Water-gas exchanger
3 Breather valve
4 Gas valve
5 Gas rate adjuster
6 C.H. sensor (SM)
7 Flowmeter
8 Zone 1 system pump
9 Single-acting valve
10 Hot water tank pump
11 Expansion vessel
12 Boiler discharge
13 Air relief valve
14 Automatic by-pass
15 D.H.W. discharge cock
16 Tap water probe (SB)
17 Storage tank 130 liter
18 Magnesium anode
19 D.H.W. safety valve 7 bar
20 Filling cock
21 D.H.W. expansion vessel
22 Water pressure transducer
23 Safety valve
24 Condensation water trap
25 Limit stat 85°C
26 100°C safety stat
27 System delivery manifold
28 System return manifold
RECIRCULATION KIT CONFIGURATION (code 8102600)
29 Single-acting valve
30 Recirculation pump with programmer timer
31 Pressure relief valve
PUMP KIT 2/3 ZONE CONFIGURATION
(code 8100700/8100710)
32 Zone 2 and 3 system pump
33 Zone 2 and 3 single-acting valve
34 Zone 2 and 3 system bypass
LOW TEMPERATURE KIT CONFIGURATION
(code 8100760)
35 Mixer valve delivery pump
36 Unidirectional low temperature valve
37 Mixer valve
38 Low temperature delivery pump
39 Low temperature safety thermostat
40 Low temperature bypass
PUMP KIT 2/3 ZONE
CONFIGURATION
LOW TEMPERATURE KIT
CONFIGURATION

Related product manuals