EasyManua.ls Logo

Sime ECOMAXI VB 200 - Page 8

Sime ECOMAXI VB 200
Print Icon
To Next Page IconTo Next Page
To Next Page IconTo Next Page
To Previous Page IconTo Previous Page
To Previous Page IconTo Previous Page
Loading...
5
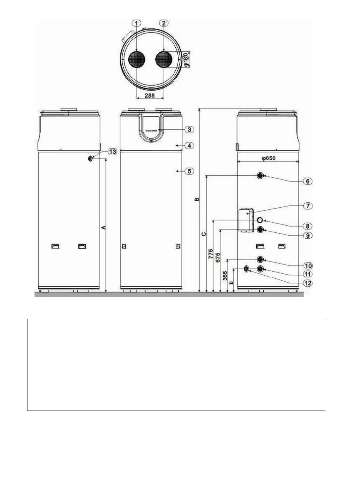
Fig.3.2 Schema e dimensioni dell'apparecchio
Nomi delle parti:
1.Ingresso aria -φ160mm
2.Uscita aria -φ160mm
3.Pannello di controllo
4.Coperchio dell'alloggiamento
5.Serbatoio dell'acqua - 300 litri/200 litri
6.Uscita acqua calda -G 3/4" F
7. Quadro elettrico (contiene un taglio
termico non automatico, un elemento
riscaldante elettrico e un anodo elettronico)
8.Asta in magnesio
9.Ingresso energia solare -G 3/4" F
10.Uscita energia solare -G 3/4" F
11.Ingresso acqua fredda -G 3/4" F
12.Uscita acqua di scarico -G 3/4" F
13.Uscita condensa -G 1/2" F

Other manuals for Sime ECOMAXI VB 200

Related product manuals