EasyManua.ls Logo

Sime Format.zip 25 BF - 2.10.3 Wiring diagram

Sime Format.zip 25 BF
Print Icon
To Next Page IconTo Next Page
To Next Page IconTo Next Page
To Previous Page IconTo Previous Page
To Previous Page IconTo Previous Page
Loading...
80
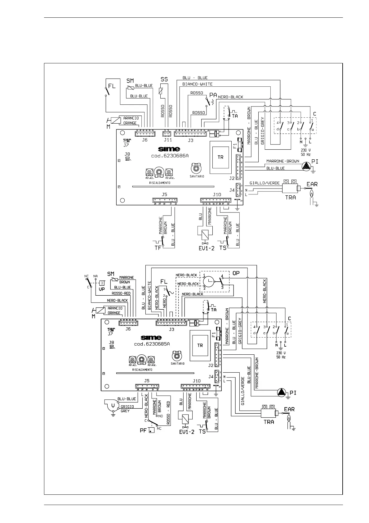
KEY
F1 Fuse (1.6 AT)
TR Transformer 230/24V
PI C.H. pump
EV1-2 Gas valve coil
VFan
PF Smoke pressure switch
VP Divertor valve
M Modulator
C Rotay switch
SM C.H. sensor
SS D.H.W. probe
TA Room stat
EAR
Ignition/detection electrode
TRA Ignition transformer
TS 100°C safety stat
PA Water pressure switch
FL Flowmeter
TF Smokes stat
OP Time programmer
Nota: The room stat or the chronother-
mostat must be connected to terminals
10-11 of the “TAconnector after having
removed the bridge.
Fig. 13
2.10.3 Wiring diagram
“25 BF - 30 BF” model
“25 OF” model

Related product manuals