EasyManua.ls Logo

Sime Format.zip 25 OF - Page 5

Sime Format.zip 25 OF
Print Icon
To Next Page IconTo Next Page
To Next Page IconTo Next Page
To Previous Page IconTo Previous Page
To Previous Page IconTo Previous Page
Loading...
3
1
2
3
4
22
5
7
8
27
11
14
10
9
6
16
12
18
28
13
19
21
20
17
U
E
G
M
R
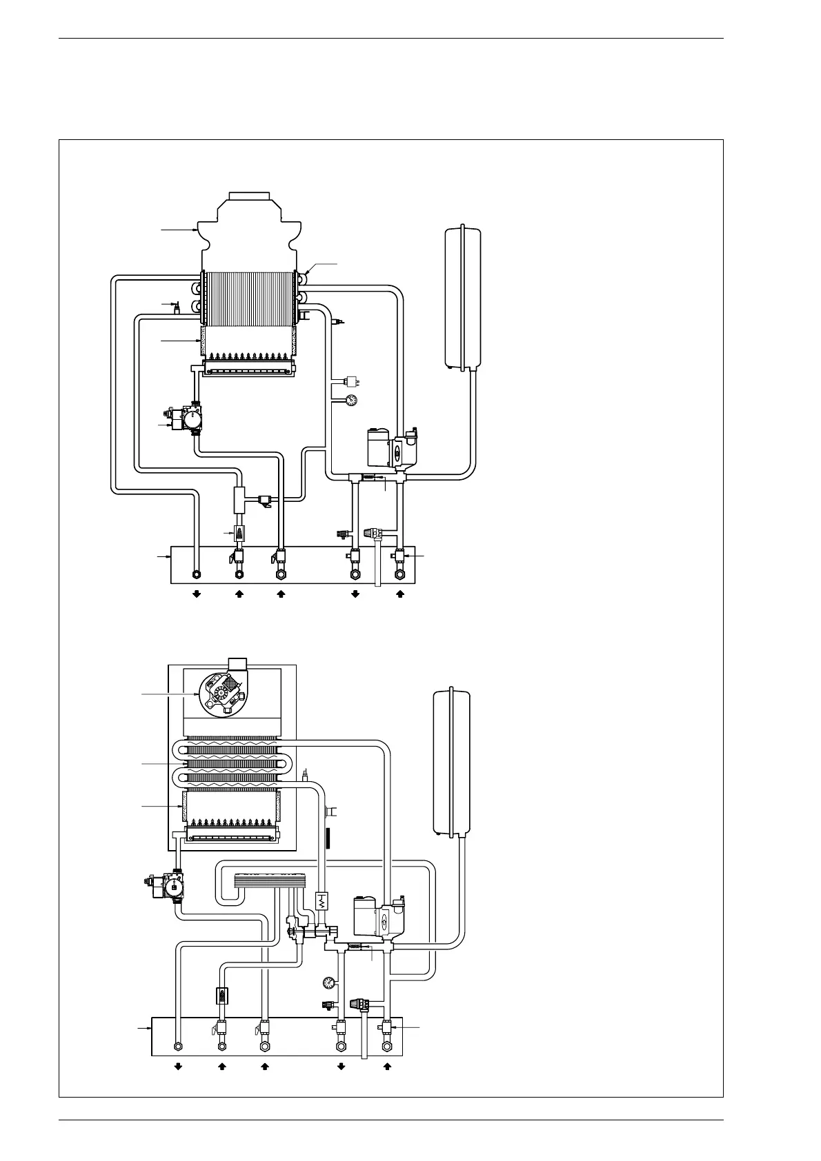
1.4 SCHEMA FUNZIONALE
Fig. 2
LEGENDA
1 Camera fumo/Ventilatore (vers. “BF”)
2 Scambiatore primario
3 Camera combustione
4 Valvola gas
5 Scambiatore sanitario a piastre
6 Valvola pressostatica
con caricamento
7 Sonda riscaldamento (SM)
8 Termostato sicurezza
9 Valvola sfogo aria
10 Circolatore
11 Vaso espansione
12 Valvola sicurezza
13 Scarico caldaia
14 Flussostato acqua
15 Termomanometro
16 By-pass automatico
17 Filtro acqua sanitaria
18 Rubinetto ritorno impianto
(optinal)
19 Rubinetto mandata impianto
(optional)
20 Rubinetto acqua sanitaria
(optional)
21 Rubinetto gas (optional)
22 Piastra raccordi (optional)
23 Sonda sanitario (SS)
24 Scambiatore bitermico
25 Pressostato acqua
26 Rubinetto caricamento impianto
27 Sonda termometro
28 Idrometro
vers. “25 OF”
vers. “25 BF - 30 BF”
1
23
3
4
22
14
26
17
20
21
13
19
18
12
16
9
10
15
25
7
8
24
11
U
E
G
MR

Related product manuals