EasyManua.ls Logo

Sime Format.zip 25 OF - Page 60

Sime Format.zip 25 OF
Print Icon
To Next Page IconTo Next Page
To Next Page IconTo Next Page
To Previous Page IconTo Previous Page
To Previous Page IconTo Previous Page
Loading...
58
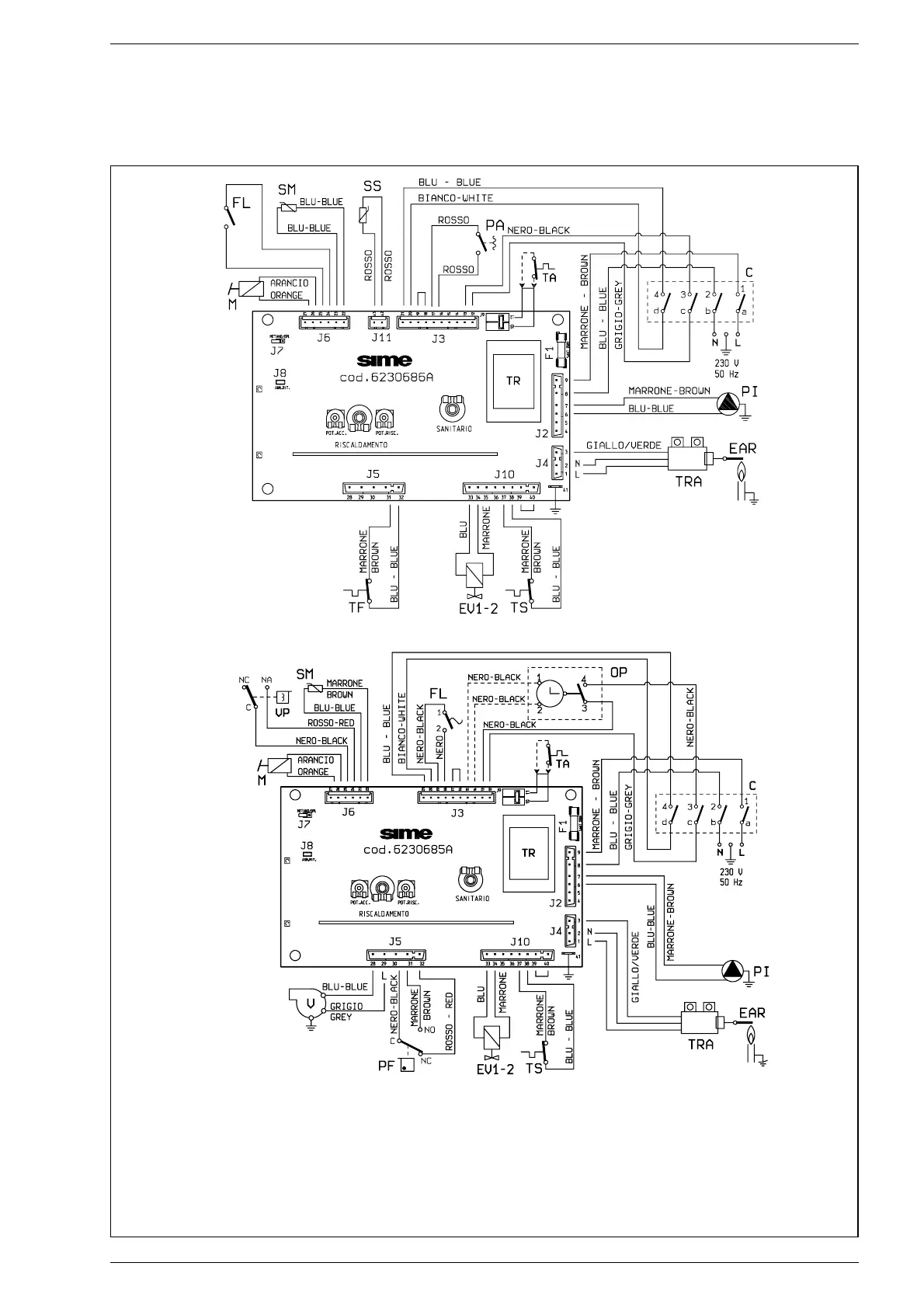
ROSCAS
F1 Fusível (1.6 AT)
TR Transformador 230/24V
PI Bomba da instalação
EV1-2 Bobina válvula do gás
V Ventilador
PF Pressóstato dos fumos
VP Válvula pressostática
M Modulador
C
Selector OFF/VER/INV/DESBLOQUEIO
SM Sonda aquecimento
SS Sonda sanitaria
TA Cronotermóstato
EAR
Eléctroco de acendimento/detecção
TRA Transformador de acendimento
TS Termóstato de segurança
PA Presóstato agua
FL Fluxóstato
TF Termóstato dos fumos
OP
Relógio programador (x GB).
Nota: O cronotermóstato deve ser ligado
aos bornes 10-11 do conector “TA” depois
de se tirado a ponte.
Fig. 13
2.10.3 Esquema eléctrico
Modelo “25 BF - 30BF”
Modelo “25 OF”

Related product manuals