EasyManua.ls Logo

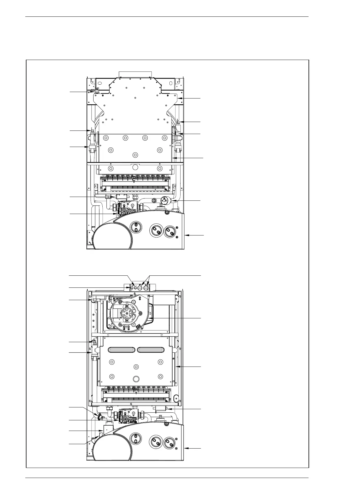
Sime Format.zip 25 OF - 1.5 MAIN COMPONENTS IDENTIFICATION

Sime Format.zip 25 OF
Print Icon
To Next Page IconTo Next Page
To Next Page IconTo Next Page
To Previous Page IconTo Previous Page
To Previous Page IconTo Previous Page
Loading...
73
6
12
11
10
9
8
7
5
4
3
2
1
13
14
3
15
1
11
9
17
18
16
10
2
12
Fig. 3
1.5 MAIN COMPONENTS
“25 OF” model
“25 BF - 30 BF” model
KEY
1 Control panel
2 Ignition transformer
3 Combustion chamber
4Fan
5 Combustion analysis intakes
6 Negative pressure intake
7 Positive pressure intake
8 Smoke pressure switch
9 C.H. sensor (SM)
10 Main exchanger (vers. “BF”)
Bithermal exchanger (vers. “OF”)
11
100°C safety stat
12 Gas valve
13 Flow water switch
14 Divertor valve
15 Water pressure switch
16 D.H.W. probe (SS)
17 Smoke chamber
18 Smoke stat

Related product manuals