EasyManua.ls Logo

Sime MURELLE HM - Page 49

Sime MURELLE HM
Print Icon
To Next Page IconTo Next Page
To Next Page IconTo Next Page
To Previous Page IconTo Previous Page
To Previous Page IconTo Previous Page
Loading...
49
ES
PT
ENG
ATENÇÃO: A comunicação será efetuada
somente com a caldeira MASTER, (caldei-
ra com PAR 15 = 0), interpretando a
cascata como um único gerador de calor
de potência:
P CASCATA = P CALDEIRA x N° CALDEIRAS.
Para a montagem desta segunda plaqueta
proceder da seguinte forma:
- Tirar a cobertura e conectar eletricamente
a segunda plaqueta RS-485, fornecida com
tampa, na plaqueta RS-485 já montada no
painel da caldeira MASTER (caldeira com
PAR 15 = 0) mediante o conector cabeado
fornecido no kit.
ATENÇÃO: Muita cautela ao inserir o
conector cabeado.
-
Selecionar o DIP SWITCH da nova pla-
queta em modalidade MODBUS.
-
Fechar com a tampa da segunda plaque-
ta.
- Escolher a configuração de comunicação
adequada para a rede MODBUS presen-
te (PAR 17 INST), segundo quanto descri-
to na Tabela PAR 17 INST.
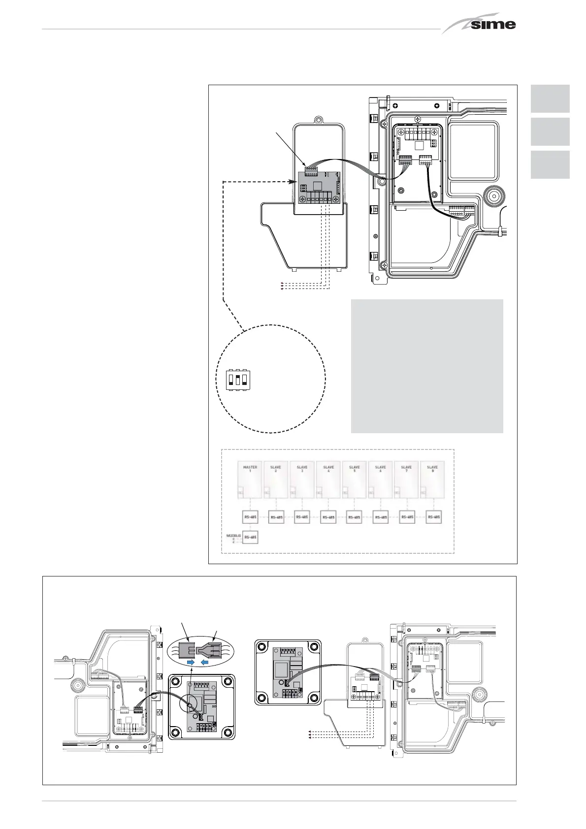
Conexão RS-485 ao kit INSOL/ZONA MIX
(fig. 4/e)
É possível conectar à plaqueta RS-485 os
kit opcionais INSOL cód. 8092254, ou aque-
le ZONA MIX cód. 8092252. Ambos neces-
sitam do kit alojamento placa cód.
8092236.
Efetuar a conexão elétrica como indicado
na figura.
ATENÇÃO: Para a conexão elétrica da pla-
queta INSOL/ZONA MIX na placa de cal-
deira, consultar a folha de instruções
anexada ao kit.
2.1.2 Função anti-gelo
As caldeiras possuem uma série de funções
anti-gelo que põem em funcionamento a
bomba e o queimador quando a temperatura
da água contida no interior do aparelho
CN10
CN10
COMUNICAZIONE
MODBUS
MODBUS
COMMUNICATION
1
2
345
6
Schedino
INSOL/ZONA MIX e kit
alloggiamento scheda
Schedino
INSOL/ZONA MIX e kit
alloggiamento scheda
Cavo kit INSOL/ZONA MIX
Kit INSOL/MIX ZONE cable
Cod.6323801
Fig. 4/e
Módulo com 1 plaquinha RS-485 Módulo com 2 plaquinhas RS-485
Plaquinha
INSOL/ZONA MIX e
kit alojamento placa
Plaquinha
INSOL/ZONA MIX e
kit alojamento placa
CN10
COMUNICAZIONE
MODBUS
MODBUS
COMMUNICATION
CONNETTORE CABLATO
(cod. 6319173)
WIRED CONNECTOR
(cod 6319173)
1
2
345
6
Fig. 4/d
SELEÇÃO PARÂMETROS INSTALADOR:
PAR 16 ENDEREÇO MODBUS
-- = Não habilitado
1...31 = Slave de 1 a 31
(ATENÇÃO: Evitar de atribuir
à caldeira o mesmo número
já atribuído a outros apa-
relhos)
PAR 17 CONFIGURAÇÃO MODBUS
-- = Não habilitado
1...30 =
Valor de fábrica: 25
(Ver Tabela PAR 17 INST)
1
2
3
DIP SWITCH
GESTIONE IN MODBUS
MODBUS MANAGEMENT
1
23
ON

Related product manuals