EasyManua.ls Logo

Sime SOLIDA Series - 1 Operation Wood and Carbon; 1.1.4 Technical Features

Sime SOLIDA Series
40 pages
Print Icon
To Next Page IconTo Next Page
To Next Page IconTo Next Page
To Previous Page IconTo Previous Page
To Previous Page IconTo Previous Page
Loading...
4
p mm H
2
O
400
300
200
100
0
0123
3
4
SOLIDA 5 PL
6
7
SOLIDA 8 PL +
4 PO RTATA (m
3
h)
OPERATION WOOD AND CARBON1
1080
845
1020
185
220
470
P
88L197 = =
R
S
308
160
307
Ø147
M
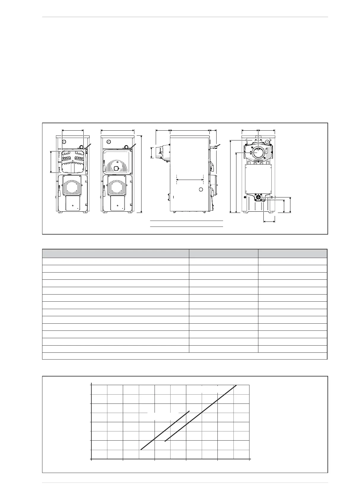
Fig. 1
FIXTURES
M C.H. flow 2”
(UNI-ISO 7/1)
R C.H. return 2”
(UNI-ISO 7/1)
S Boiler drain 1/2”
(UNI-ISO 7/1)
DESCRIPTION1.1
INTRUDUCTION1.1.1
The cast iron SOLIDA boilers are a valid
solution for the present energetic pro able to
be used with solid fuels: wood and carbon.
A kit is available to adapt it to be used with
wood pellets (see section 2). SOLIDA boilers
conform to Directive PED 97/23/CEE.
SUPPLY1.1.2
The boilers are supplied in three separate
parcels:
Boiler body assembled and equipped with
loading port, ash boxes port, smoke cham-
ber with blast gate damper, ash collection
basin and thermostatic draught regulator.
Bag containing: 2 handles for the ports, a
screw with bakelite knob for the manual
adjustment of the blast gate damper, a con-
tact spring for the bulb of the thermometer
and the M6 lever to be fixed at the blast gate
damper. “Test certificate” to be kept with
the documents of the boiler. Miscellaneous
accessories required to use the boiler with
pellets (see Section 2 in the manual)
.
Cardboard box for casing with thermom-
eter and documents bag.
DIMENSIONS1.1.3
TECHNICAL FEATURES1.1.4
HEAD LOSSES1.1.5
Fig. 2
Flow rate m
3
/h
SOLIDA 5
SOLIDA 8
L 555 mm 855 mm
P 390 mm 690 mm
Model SOLIDA 5 SOLIDA 8
Carbon heat rate *
kW (kcal/h) 25.6 (22,000) 39.5 (34,000)
Performance class
2 2
Duration of a coal load
h
4 4
Duration of a wood load
h
2 2
Load volume
dm
3
34.0 59.5
Minimum chimney depression
mbar 0.12 0.18
Number of elements
5 8
Max. operating temperature
°C 95 95
Min. temperature of water returned to the plant
°C 50 50
Max working pressure
bar 4 4
Test pressure
bar 6 6
Boiler capacity
l31 43
Weight
kg 245 350
* The heat rate will be reduced with about 10% for the operation with hard wood (birch – oak – olive).
SOLIDA 8
SOLIDA 5

Related product manuals