EasyManua.ls Logo

Simfer B6EW56022 - Page 55

Simfer B6EW56022
74 pages
Print Icon
To Next Page IconTo Next Page
To Next Page IconTo Next Page
To Previous Page IconTo Previous Page
To Previous Page IconTo Previous Page
Loading...
55
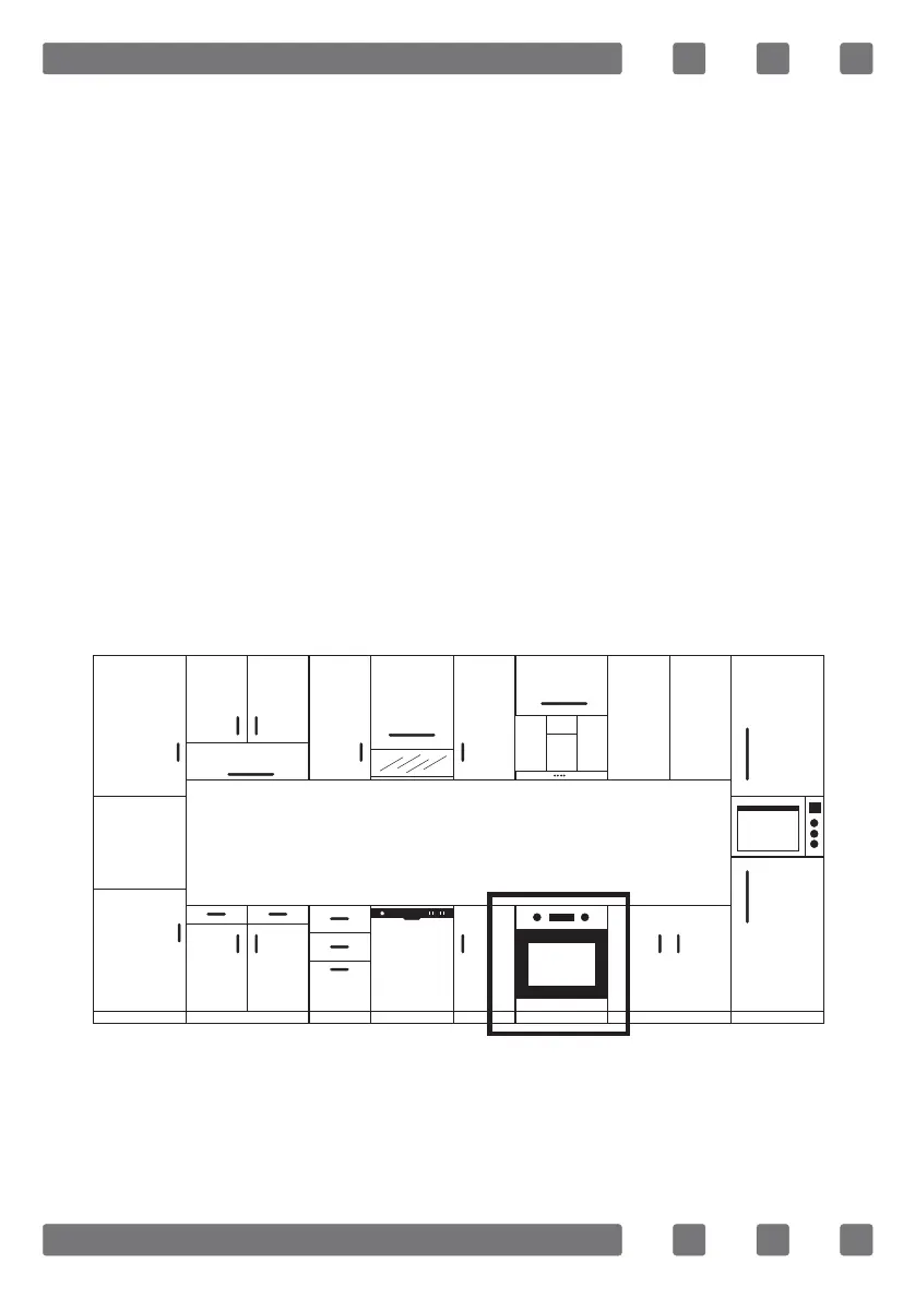
Закрепите духовку на мебели при помощи шурупов,
предоставленных вместе с прибором. Шурупы следует вкручивать продев
их в пластиковые крепежи, установленные на раме прибора, как показано
на рисунке 5. Шурупы не следует закручивать чрезмерно туго. В противном
случае резьба может повредиться и пластик разрушится.
После установки убедитесь, что духовка надежно закреплена. Если
духовка плохо закреплена , существует риск опрокидывания во время
Подключение к сети
Место подключения духовки должно быть оборудовано подходящей
розеткой.
Напряжение сети должно соответствовать значениям, указанным на
типовой этикетке прибора.
Подключение прибора должно выполняться в соответствии с
местными и национальными стандартами электросети.
Перед началом установки прибора отключите питание в сети. Не
подключайте прибор к сети до завершения процедуры установки.
Монтаж
использования.

Table of Contents

Related product manuals