EasyManua.ls Logo

Sincro EP295L - Reference Diagrams and Data

Default Icon
20 pages
Print Icon
To Next Page IconTo Next Page
To Next Page IconTo Next Page
To Previous Page IconTo Previous Page
To Previous Page IconTo Previous Page
Loading...
6
(*)COLORI - COLOURS - COULEUR - FARBE - COLOR:
Bianco: white - blanc - weiss - blanco
Blu: blue - bleu - blau - azul
Grigio: grey - gris - grau - gris
Nero: black - noire - schwarz - negro
Marrone: brown - marron - braun - marròn
Rosso: red - rouge - rot - rojo
Arancione: orange - orange - orange - anaranjado
Giallo: yellow - jaune - gelb - amarillo
Viola: violet - violette - violett - violeta
AUX (*) COLORE
AUX (*) COLOR
IDENTIFICAZIONE NUMERICA-NUMERICAL
IDENTIFICATION-
IDENTIFICATION DIGITALE-KENNNUMMER-
IDENTIFICACIÓN NUMÉRICA
TENSIONE-VOLTAGE-
TENSION-
SPANNUNG-TENSIÓN
FREQUENZA-
FREQUENCY-
FRÉQUENCE-
FREQUENZ-
FRECUENCIA
GRIGIO 1 115V/230V 50 Hz
GIALLO 2 120V/240V 50 Hz
ARANCIONE 3 110V/220V 60 Hz
VIOLA 4 120V/240V 60 Hz
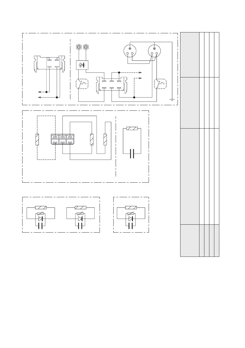
SCHEMA ELETTRICO - WIRING DIAGRAMS - SCHEMA ELECTRIQUE -
SCHALTPLÄNE - ESQUEMAS ELÉCTRICOS
THERMAL
PROTECTION
THERMAL
PROTECTION
OPTIONAL
C
V/2
(115V)
V
(230V)
SERIE
PARALLELO
R4
0.5xR1
R2
R3
EP2C5L - EP2C5T
STATORE - STATOR - STATOR - STATOR - ESTATOR
PRIMÄRWICKLUNG
BOBINADOR DE POTENCIA
MAIN WINDING
AVV. DI POTENZA
BOBINAGE DE PUISSANCE
SEKUNDÄRWICKUNG
BOBINADOR AUXILIAR
BOBINAGE AUXILIAIRE
AVV. AUSILIARIO
AUXILIARY WIND.
CHARGER BATTERIE
CARGA BATERIA
CARICA BATTERIA
LADEGERÄT
BATTERY CHARGER
BLU BLUE
BIANCO WHITE
ROSSO RED
AUX*
AUX*
ROSSO RED
NERO BLACK
MARRONE BROWN
R4
0.5xR1
12Vdc
NERO
RED
ROSSO
BLACK
ARANCIONE ORANGE
ARANCIONE ORANGE
BLU BLUE
BIANCO WHITE
10A
NERO BLACK
MARRONE BROWN
BIANCO WHITE
BLU BLUE
(115V)
V/2
NERO
BLACK
OPTIONAL
GIALLO-VERDE YELLOW-GREEN
R4
ROTORE - ROTOR
EP260L - EP272L
ROTORE - ROTOR
EP295H - EP295L

Related product manuals