EasyManua.ls Logo

Sintrol S305 - Page 8

Default Icon
30 pages
Print Icon
To Next Page IconTo Next Page
To Next Page IconTo Next Page
To Previous Page IconTo Previous Page
To Previous Page IconTo Previous Page
Loading...
8
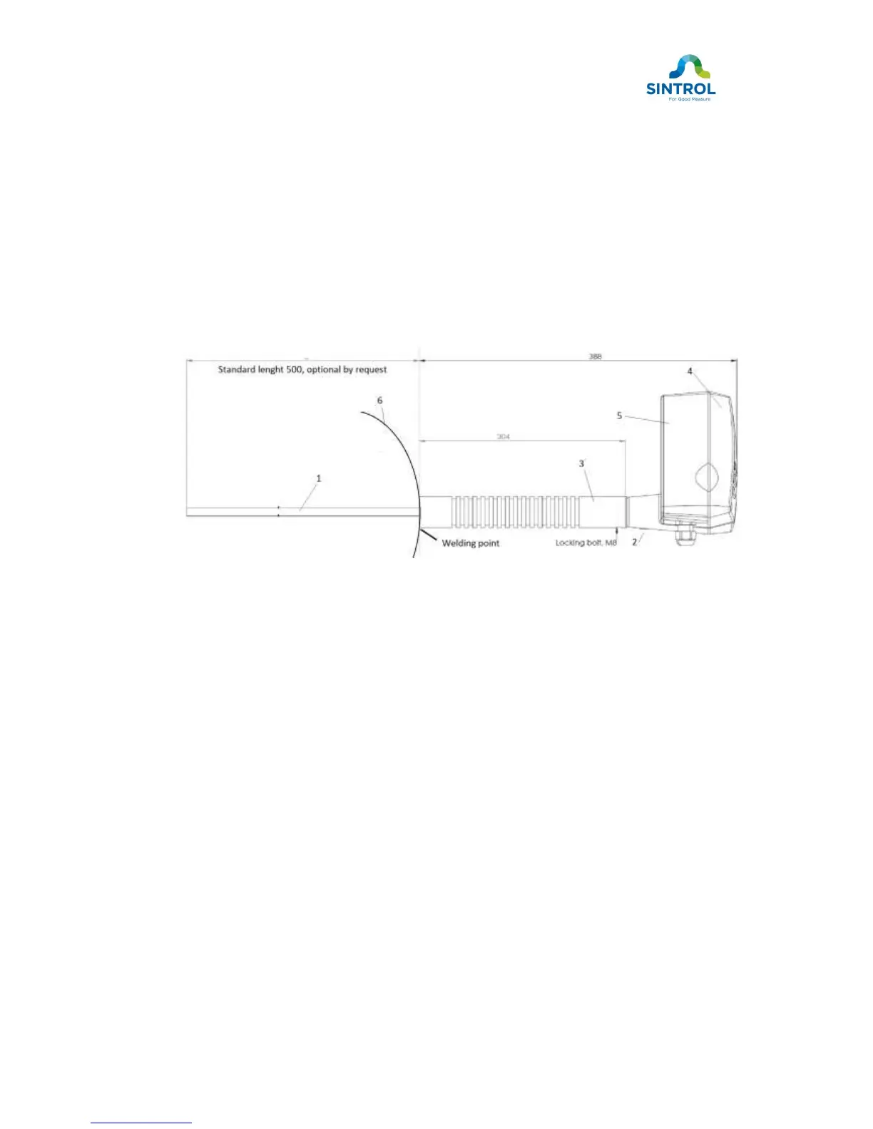
When installing HT or HT/MP sensor it is important to take care that the
ambient temperature will not increase above 45 degree. The electronics
inside of enclosure is sensitive for temperature.
To do the installation, first cut a hole in the duct slightly larger than the OD
of the mounting socket, 38 mm (HT ) 45 mm (HT/MP). The socket must be
perpendicular to the flow in the duct. Make sure the socket is in the right
position and make an airtight welding. After welding the socket in position,
insert the HT or HT/MP sensor.
Figure 3b. Monitor installation with HT or HT/MP sensor
1. Probe 5. Enclosure
2. Fixing screw 6. Duct
3. Cooling extender
4. Cover

Related product manuals