EasyManua.ls Logo

Smeg CE9IMXA - 15.2 Appliance Positioning and Levelling; 15.3 Wall Fixing Procedure

Smeg CE9IMXA
32 pages
Print Icon
To Next Page IconTo Next Page
To Next Page IconTo Next Page
To Previous Page IconTo Previous Page
To Previous Page IconTo Previous Page
Loading...
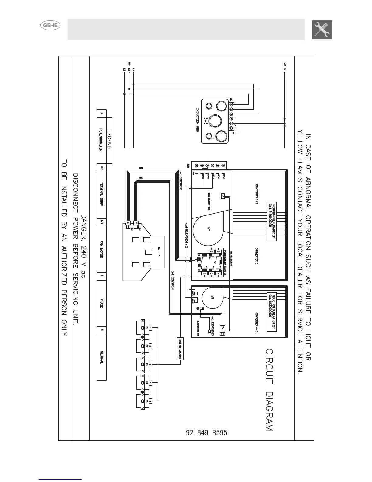
Instructions for the installer
30

Related product manuals