EasyManua.ls Logo

smev 7003 - 8103 VD; 8103 VDM

smev 7003
25 pages
Print Icon
To Next Page IconTo Next Page
To Next Page IconTo Next Page
To Previous Page IconTo Previous Page
To Previous Page IconTo Previous Page
Loading...
123
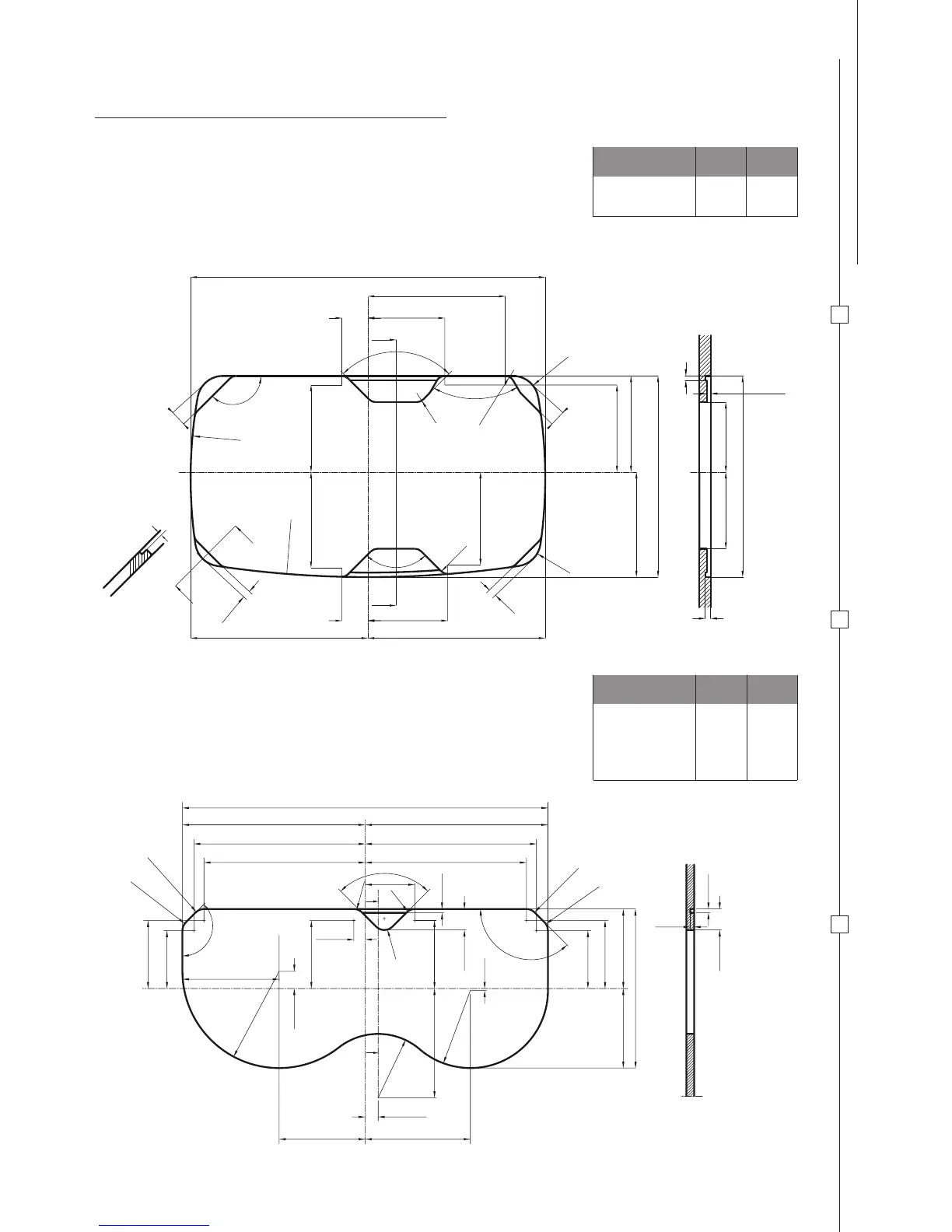
2 F I G .
X
Y
275 mm
10 mm
421.7 mm
54.9 mm
448 mm
478 mm
X
Y
478 mm
448 mm
253 mm
421.7 mm
R30 mm
R
30
mm
151.7 mm
178 mm
13
135°
R
30
R3
0
129.8 mm
9
29.8 mm
178 mm
225 mm
R2
53
mm
45 mm
285.7 mm
R167
m
m
33.9 mm
R3
0
178 mm
R3
0
R
30
178 mm
151.7 mm
R203
mm
5 mm
10
10
54.9 mm
208 mm
208 mm
A
A
SEZ. A-A
SEZ. B-B
193,01 mm
213,01
mm
205,97 mm
232,89
mm
Y
X
304,65 mm
212,14 mm
mm 393mm 393
57,91 mm
A
A
R2
2
8
0,
4
8
mm
176,73 mm
B
90°
R
20
8,5 mm
SEZ. A-A
170,35 mm57,69 mm
193,01 mm
R1035
,
5
mm
135°
R
20
90°
60°
R20
B
445,89
mm
170 mm
R57 mm
18,
4
mm
12 mm
R57 mm
155 mm
8,5 mm
10 mm
31,6 mm31,6 mm
18,4
mm
MOD. X mm Y mm
7103
7123
786 445,89
MOD. X mm Y mm
8103 VD
8103 VDM
8123 VD
8123 VDM
956 416

Other manuals for smev 7003

Related product manuals