EasyManua.ls Logo

smev 7003 - Mo9202 D; Mo9202 S; Mo9222 D; Mo9222 S

smev 7003
25 pages
Print Icon
To Next Page IconTo Next Page
To Next Page IconTo Next Page
To Previous Page IconTo Previous Page
To Previous Page IconTo Previous Page
Loading...
126
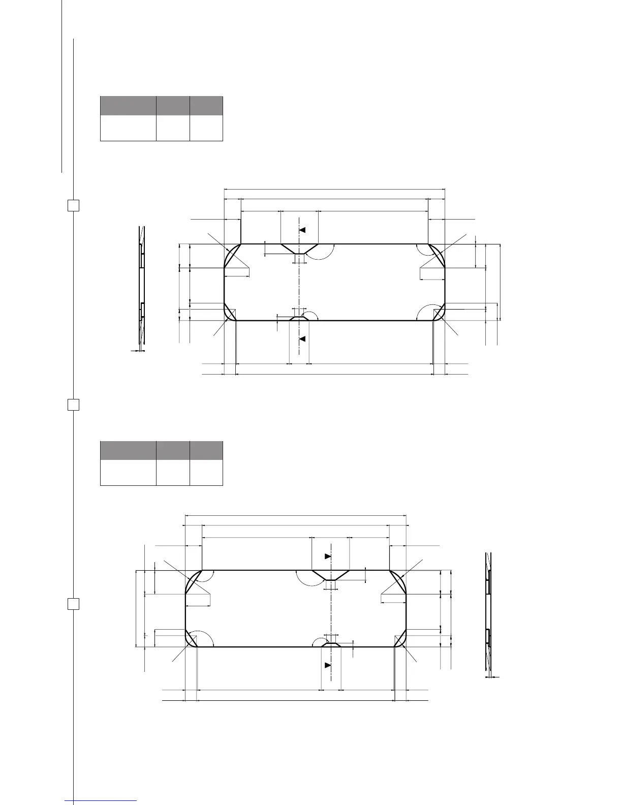
MOD. X mm Y mm
MO9202D
MO9222D
883 307
MOD. X mm Y mm
MO9202S
MO9222S
883 307
49 mm49 mm
70 mm
79,3 mm 494,5 mm
150,7 mm 439 mm158,9 mm
211,2 mm
141 mm70 mm
X
1
25
°
R4
5
mm
R100 mm
96 mm
100 mm
45 mm
45 mm
12
5
°
166 mm
2 mm
1
45
°
15 mm
36,4 mm
748,6 mm
793 mm
65,8 mm65,8 mm
67,2 mm67,2 mm
R10
0
94 mm
100 mm
96 mm
94 mm
40 mm
1
45
°
36,4 mm
45 mm
45 mm
R45 mm
166 mm
A
A
7 mm
SEZ. A-A
49 mm 49 mm
70 mm
79,3 mm494,5 mm
150,7 mm mm 9,851mm 934
211,2 mm
141 mm70 mm
X
Y
12
R4
5
m
m
R100 mm
96 mm
100 mm
45 mm
45 mm
12
5
°
166 mm
2 mm
1
45
°
15 mm
36,4 mm
748,6 mm
793 mm
65,8 mm 65,8 mm
mm 2,76mm 2,76
R
10
0
m
m
94 mm
100 mm
96 mm
94 mm
40 mm
14
5
°
36,4 mm
45 mm
45 mm
R
45
mm
166 mm
A
A
7 mm
SEZ. A-A

Other manuals for smev 7003

Related product manuals