EasyManua.ls Logo

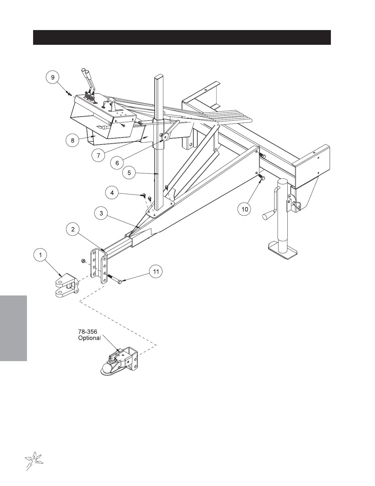
Smithco SweepStar V62 - 78-206 Clevis Hitch Drawing

Smithco SweepStar V62
66 pages
Print Icon
To Next Page IconTo Next Page
To Next Page IconTo Next Page
To Previous Page IconTo Previous Page
To Previous Page IconTo Previous Page
Loading...
44
Accessories
78-206 CLEVIS HITCH DRAWING

Related product manuals