EasyManua.ls Logo

Sony 6L - Page 57

Sony 6L
243 pages
Print Icon
To Next Page IconTo Next Page
To Next Page IconTo Next Page
To Previous Page IconTo Previous Page
To Previous Page IconTo Previous Page
Loading...
7 (IT)
IT
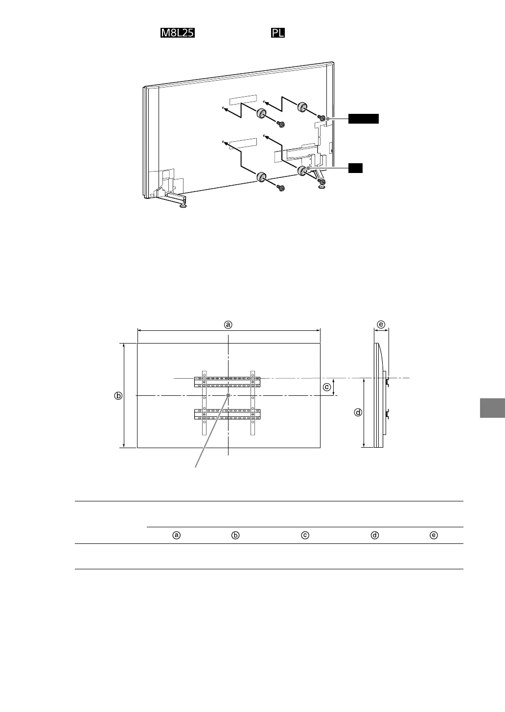
4 Collegare le viti e i distanziali sul retro del TV (per mantenerlo
parallelo alla parete).
PL
M8L25
Nota
•Se si utilizza un cacciavite elettrico, impostare la coppia a circa 1,5 N·m {15 kgf·cm}.
•Accertarsi di serrare i distanziali quando si collegano al TV.
5 Accertarsi che la parete abbia spazio sufficiente per il TV e che sia in
grado di supportare un peso di almeno quattro volte quello del TV.
Consultare la tabella che segue sull’installazione del TV alla parete. Consultare la Guida di
riferimento del TV per il peso del TV.
Punto centrale dello schermo
Unità: mm
Nome modello
Dimensioni display
Dimensioni
centro schermo
Lunghezza per
montaggio
XBR-98Z9G
KD-98Z9G
2.202 1.311 315 978 141
Nota
•Le figure nella tabella potrebbero differire leggermente a seconda dell’installazione.

Related product manuals