EasyManua.ls Logo

Sony BVM-14E1E - Page 105

Sony BVM-14E1E
242 pages
Print Icon
To Next Page IconTo Next Page
To Next Page IconTo Next Page
To Previous Page IconTo Previous Page
To Previous Page IconTo Previous Page
Loading...
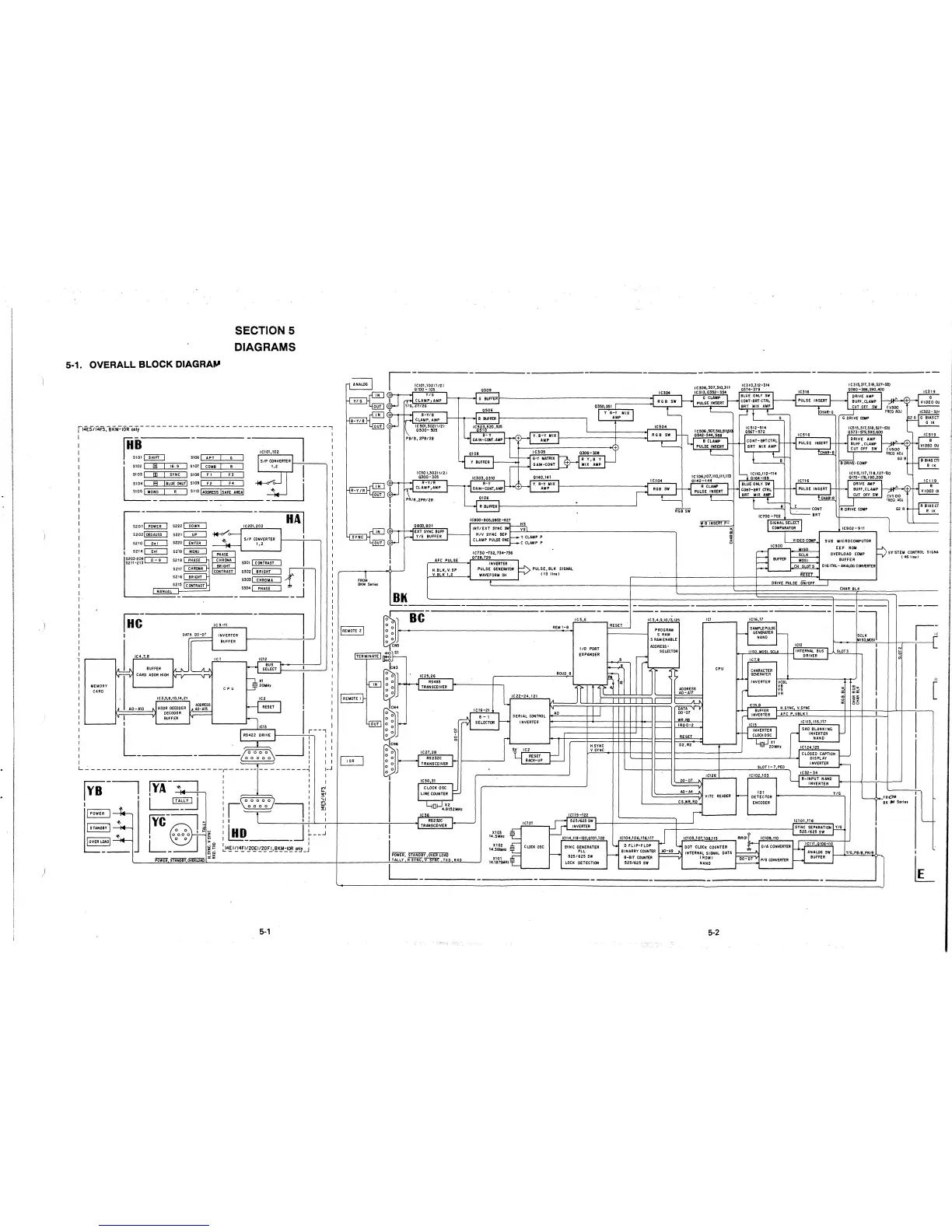
5-1.
OVERALL BLOCK DIAGRA~
SECTION 5
DIAGRAMS
j14E5ti4F5,-BKM-=-10Ronly - - - - - - -
-----------------,
I fiiil
,--s,01~
I
I
I
I
I
MEMORY
CARO
S\06 i APT
I s \ 02 ~i =@];c;::::::=~' 6~,~9~ S1 07 ~i ::::C~O;M::B::;:=:~=;
sio
3
j
[I] SYNC I s10aj Fl F3
s104 ~,=~a~~l~B:=L;uE~oN~L~vl s109 I F2 F4
S\05
i MONO
j j S\10 !ADDRESS !SAFE AREAi
-
01~
02 i OEGAUSS !
0~
I S214~
~i?t:mo::D
MANUAL
IC4,7,8
BUFFER
CARO AOOR HIGH
S218
S217
S216
S215
A OOR DECODER
DECODER
BUFFER
IC 9-11
INVERTER
BUFFER
IC
1
C P U
IC201 202
H41
S/P CONVERTER
1 ,2
S301
i CONTRAST
S302 I
BRIGHT
S303 i CHROMA
I
S304 i
PHASE
_ _J
I
I
I
IC2
IC13
r---,
RS422 DRIVE 1-----;-
1
,, :
~
I
FROM
BKM Series
I REMOTE 2 /
TERMINATE
B-Y/B
CLAMP, AMP
IC501,502ll/2l
0500-
505
PBIB, 2PB/28
BK
0
0 0
0
0
0 0
0
I
IC301,30211/2l
0300-305
R-Y/R
0800 801
EXT SYNC BUFF
y /G BUFFER
AFC PULSE
H.BLK,V.SP
V.BLK 1 2
BC
IC25 26
RS485
TRANSCEIVER
IC27,28
RS232C
TRANSCEIVER
IC30 31
l
~
=-----1--
~
;~ --:----,-_-_-_-_-:-----~;...-'-_~_-_! __ o-:-_-:o:---~ - - - - - -1 /
I u i , TA~LY i I i r\000000000}---i i, ~: , 3
· I I ,,..,_=:R:::s~2;;32:::c--,
rvr.-d
I
L------~·~,_J--+-+--------,---1 TRANSCEIVER
jsrANDBYl , .c 0°00°0 \ g~ iHo ______ J ~--~
CLOCK OSC
LINE COUNTER
R Y, B Y
MIX AMP
Y. RAiPMIX 1--------------,
'"--,,--
ICB00-805,0802-827
INTI EXT SYNC
sw·J=:::::iffi _______________________ l
H/V SYNC SEP
CLAMP PULSE GNE
IC730
-732, 734-736
0728 729
INVERTER
PULSE GENERATOR
WAVEFORM SH
ICl9-21
PULSE,BLK SIGNAL
I 13 llneJ
REM 1-8
rl...;C...;
5
.. '
6
---, RESET
I
/0 PORT
8-1
SELECTOR
SERIAL CONTROL
INVERTER
X\03
14,5MHz
X\02
14.318MHz
IC2
RESET
BACK-UP
IC121
CLOCK OSC
ICl14 118-120 0101102
SYNC GENERATER
PLL
IC3,4,9101 125
PROGRAM
S RAM
S RAM ENABLE
ADDRESS-
SELECTOR
oo- 07
AO-A4
W B INSERT P-
IC\
CPU
IC126
;
i
o
V ITC READER
1
C315,317,318,327-3!l
03e0-386,39o,.ao
IC902-911
SUB MICROCOMPUTOR
EE
P ROM
OVERLOAD COMP
BUFFER
>------, DIGITAL-ANALOG CONVERTER
DRIVE PULSE ON/OFF
CHAR BLK
SY STEM CONTROL S IGNA
( 46 line)
---
-----
------
IC12
INTERNAL BUS
j...,_.lJIIL,>S.IL,.!""" ..... """-T1 ORI VER
,ca
CHARACTER
GENERATER
INVERTER
1----
IC35 8
BUFFER
INVERTER
ICl5
INVERTER
CLOCKOSC
XI
VCBl
VB
VG
VR
H. SYNC V. SYNC
AFC P VBLK 1
IC\13 115117
SAD BLANKING
INVERTER
NANO
a
20MHz
SLOT3
"'
~
m
"!
::
C LOSEO CAPTION
DISPLAY
INVERTER
SLOT1-7,PEO
IC32-34
IC\02 103
8-INPUT NANO
INVERTER
101
YIG
DETECTOR
ENCODER
:J
MISO MOSI
I,,~
I
N
...
~
I{
m,.
[
"'~
"'m
"'"'
....
;c:c
uu
FROM
BK '4IJ Series
I
j OVER LOADIL
1
_ ~- oj I :
~
I 14~1~4£.~_?~li.2.QF.!.,!!~:!~ ~!)' _J I POWER STANOBY ,OVER LOAD
-----l~-~:;;;;~~..=....J;;;~~l~~-~;~--------------------t-------,_!T~A,bL.!c:LY!:_,._!,H!_;,__SY!_!N!,C'-L.!V2.cSYc,N,,:C_,,_,_T.o.X.e.D.,_"'RXc,D~--
POWER fiiiiiiey 6vEifi]io :c C: L>-______ il =====-=-~-=-=-:-:-:-:-:-:-:-:-:-:-:-:-:--~=-=-=-=-=-=-=-=-=-=-=-=-=-=-=-=-=-=-=========~==================-==--------------------------~
5251625 SW
LOCK OETECTION
l
5-1
5-2
i
j
t
I
l
I
l
I
i
I
l
f

Related product manuals