EasyManua.ls Logo

Sony BVM-14E1E - Page 160

Sony BVM-14E1E
242 pages
Print Icon
To Next Page IconTo Next Page
To Next Page IconTo Next Page
To Previous Page IconTo Previous Page
To Previous Page IconTo Previous Page
Loading...
16
17
18
19
20
21
22
-------------------- ------------------------------- ----
-----------------------------'------------~~
·~==============================================================.--------!-===---------,
~
: : ::
CI01 l
°sJoOJ
' B I
CI02
~°sfV
CJII l
0.001
a101 a102
-0105C6MR 8105C6H
~104
5~~
8103 -0104
SBLCA20R 88LCA20
lc11s
..L410,
cmr l rsoov
470, B
re-----01 '·i-ir •. ~,~~." ..--+---J..----1-
: = j fiio6 ·ICI09
: : 0,22~ :RS 1000 lt
·{~x-x-x-J t--sii-__. !ov
L103 T = I .HT
18011H Ri"o,-
~8~H 0, 22....!.!! •AS
d~1-1-r- ,
!~:
fiiDg I c11
7
J
+-0-.2--12,._',iiilV~oAS-4 ge
LI04
22,H
,--,r--------t-~-f-:2~,+=+::'B '----i
~
-~2_0-+-+_e~--
~1-!-:·+-:-:-----1
~
ri-4_,+- _ _;,s:..;.v __ --1
--------140 -ISV
1-s:-,+-.-, s-v----i
Et:JL1-s:-•+•..,.1s:'-v __
-l
~
r~6_, ___ 6V __ __,
---~--------~ 6ts -6V
t---+-----l
L 7a +6V
7b
+6V
- Ba GNe
,_ 8•
GNfl
-.... 9a GN£1
- 90 GNll
-
10• GNll
J
soov I
siov:+-1--+---'
- L J lm
6
:=:
le-----0J
Riii, I •HT
0.22 IV •RS ....._-t---+-----+++-f-HH--++-------1--1- ...
- 100 GN!l
,- th GN£1
Cl12
- lib GNll
~
0
so)V
U
soo:
[• l : B
rG-----01 ,l,,---t----t----t--t-+-+-1++---1--1-----i-.
t I RI II
- 12a GNll
- 120 GNS
J =~ m:
SQjV
: = / D,22~ :RsrCl19
'. ' - ,1470./-
l{~x-x-x-J R112 zsv "
0.22..Jl! •AS •HT
L107
400,.H
-
l108
~H
i
,€0---08-1
tiil
EID YTPIOS
-,
c131 l . '
47 o
. '
I
' '
: . :
SOBOV I
)-
C122
r 1
f l l{:I=X:J-X-}J
470p
lT
: +-,1 L109 t
soov
B
L J cm
3
oornH
c124
,-r•
m311
'Ill I ,~&·
10\1
•HT •HT
'RC
•AN
r_i:.iAl14
o. 2
-0105 8106 -
~
J,
1
ESAC39M-06N E5AC39H-06C J, .!
E
Q\05 Q\04 2)i:
~
OTC 144ESA 2SC2785
Q\08
;,~),~ JC\06 !2/2l ~W
8
11l:
4
ESA
l'._
LN393P i·tJ tll 18
~
Dll2 r---1---- ROIOESB
~
~. 5 8 k::1.l..:
~
Qt 09
2
· Bl 13
~-< :, 3 •1.5 STCl44ESA 155119
4
~
, :}6!:t @ .o
1c106tt12J2.G RJ!z~ T5'.1X 1m14
LH393P ,111'5 155119
L_
-
0117
R06.2ESB3
--
TPIOB lo+ 5v/
........... ---i-------0-0
---
·-
-
CN6
1'P
B TO 8
Rl23
~1,
Rl46
10•
"'
I+
Cl41
10
,HT
.....
......
....
-
-
-
3 - - -
-l+-+1-
4 0.. Q,. a. a.. a.. 0..
Ll..uu>UU>
I I I
000000
u------0000
~
1 'f
~
'
~ ~ ~
~
~
TO GB BOARD
CN302 ..
5-109
- 130 GND
- 130 GNS
-
14a GNS
·-140 POI/ER
-
!Sa SEGAUSS
~--+---+-..-+-+-t---+---<150
E PROT
m= :;: :
::~~~
,......,_..-+-........ -+--+--+~--<l7b G PROT4
r 18• GN!l
r- 18• GNtl
I
~
R/r;E
I 9a VS
19• AFC PULSE
2Da HS
200 VS
21
o 2HS
21 • 2VS
22, ---
22, ---
23•
---
23• ---
24• ---
24• V BLK I
25a
25•
26a
26•
27•
27•
H BLK
V BLK2
+SV SENSE
RESET
MISO
28a MOS!
28•
SCLK
[£3 -,__2_9, ........ t1_1e_1_TA_L_+_s_,v
- 29• tlIGITAL
+SV
r 3Da SIGITAL GN!l
3Db SIGITAL
GNfl
31 a
14-u:-;;;;i 1-3_1 _,, i--lR_O __ __,
I i.::.:.::.:.J rr.3~2:,o '--;Gc"N~S----j
r- 32b GNS
TO GB BOARD
CN 301
I
I
CN7
> f > t:5P
~Q)~BTOS
+ + '
G G
23
TO TA BOARD
CNl7
J
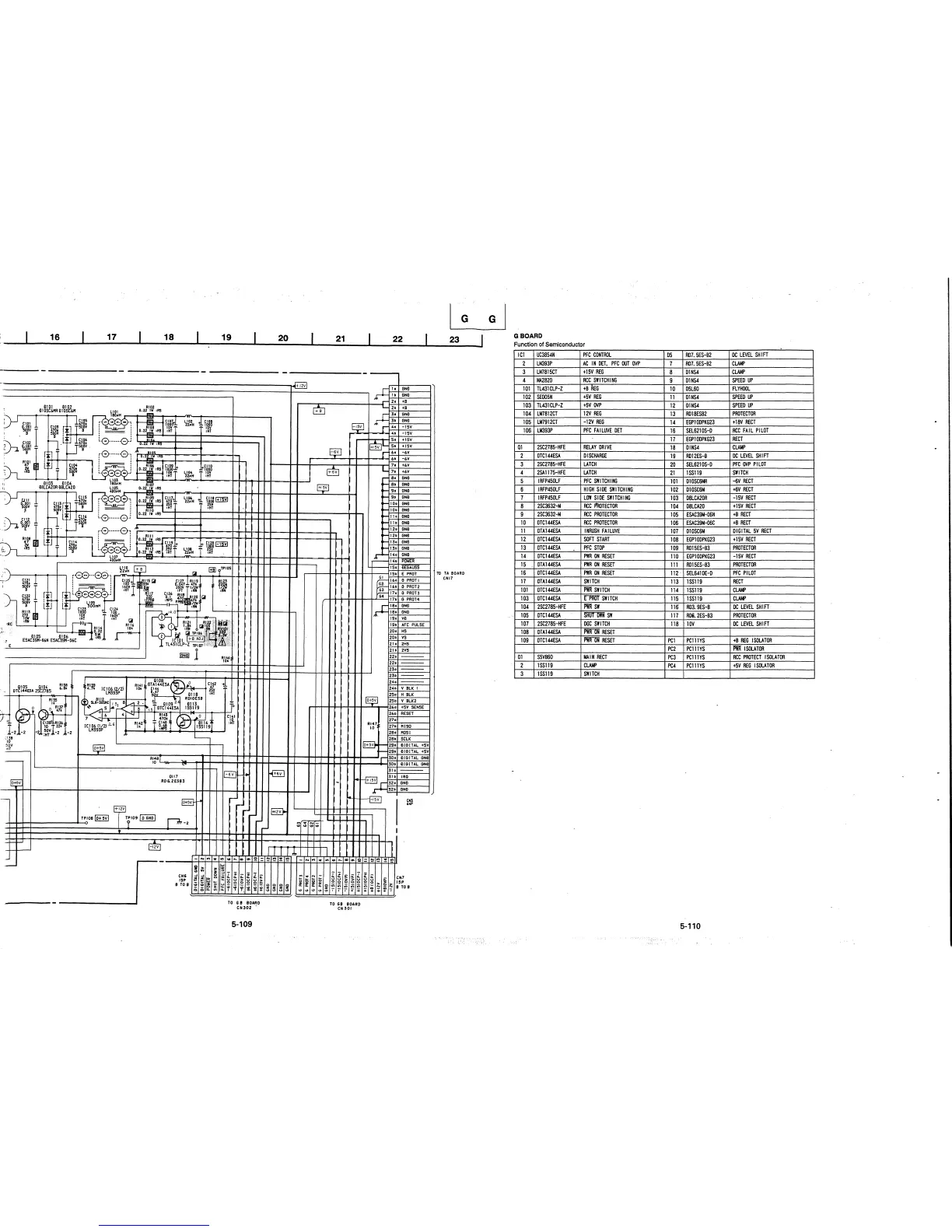
GBOARD
Function of Semiconductor
!Cl UC3854N
PFC CONTROL
2
LM393P AC IN OET, PFC OUT OVP
3
LM7815CT +15V REG
4 MA2820
RCC SWITCHING
101
TL431CLP-Z +B REG
102 SEOOSN
+5V REG
103
TL431CLP-Z +5V OVP
104
LM7812CT 12V REG
105 LM7912CT
-12V REG
106
LM393P PFC FA I LUVE DET
01
2SC2785-HFE RELAY DRIVE
2
DTC144ESA DISCHARGE
3
2SC2785-HFE LATCH
4 2SA 1175-HFE LATCH
5
IRFP450LF PFC
SWITCH I NG
6
IRFP450LF
HIGH SIDE SWITCHING
7
IRFP450LF
LOW SIDE SWITCHING
8
2SC3632-M RCC
F'l!OTECTOR
9
2SC3632-M
RCC PROTECTOR
10 OTC144ESA RCC PROTECTOR
11 OTA144ESA INRUSH FA I LUVE
12
OTC144ESA
SOFT START
13 OTC144ESA PFC STOP
14 OTC144ESA PWR ON RESET
15 OTA144ESA
PWR ON RESET
16
OTC144ESA
PWR ON RESET
17 OTA144ESA SWITCH
101
OTC144ESA
flWR SWITCH
103
OTC144ESA
El5FiOi SWITCH
104
2SC2785-HFE
msw
105
OTC144ESA
SHllTl5WN SW
107
2SC2785-HFE OGC SWITCH
108
OTA144ESA
l5WlioR RESET
109
OTC144ESA
l5WlioR RESET
01 S5VB60
MAIN RECT
2
1SS119
CLAMP
3 1SS119
SWITCH
OS
R07. 5ES-B2
DC LEVEL SH I FT
7
R07. 5ES-B2
CLAMP
8
01NS4 CLAMP
9
D1NS4
SPEED UP
10 OSL60
FLYHOOL
11 01NS4
SPEED UP
12
01NS4
SPEED UP
13 R018ESB2
PROTECTOR
14
EGPl OOPKG23
+18V RECT
16
SEL6210S-0
RCC FAIL PILOT
17
EGPl 0DPKG23 RECT
18
OINS4
CLAMP
19
R012ES-B
DC LEVEL SH I FT
20
SEL6210S-D
PFC OVP PI LOT
21
1SS119
SWITCH
101 D10SC6MR
--6V RECT
102
010SC6M
+6V RECT
103
D8LCA20R
-15V RECT
104 D8LCA20
+15V RECT
105 ESAC39M-06N
+B RECT
106
ESAC39M-06C
+B RECT
107
010SC6M
DIGITAL 5V RECT
108
EGPl OOPKG23
+15V RECT
109
R015ES-B3
PROTECTOR
110 EGPl ODPKG23
-15V RECT
111 R015ES-B3
PROTECTOR
112 SEL6410E-O
PFC PILOT
113 1SS119
RECT
114 1SS119
CLAMP
115 1SS119
CLAMP
116" R03. 9ES-B
DC LEVEL SH I FT
117
RO&. 2ES-B3
PROTECTOR
118 10V
DC LEVEL SH I FT
PCl PClllYS
+B REG ISOLATOR
PC2 PCll lYS
flWR ISOLATOR
PC3
PClllYS
RCC PROTECT I SOLA TOR
PC4 PClllYS +5V REG I SOLA TOR
5-110

Related product manuals