EasyManua.ls Logo

Sony BVM-14M4DE - Page 12

Sony BVM-14M4DE
42 pages
Print Icon
To Next Page IconTo Next Page
To Next Page IconTo Next Page
To Previous Page IconTo Previous Page
To Previous Page IconTo Previous Page
Loading...
A B C D E F GH
1
2
3
4
5
– 22 –
– 21 –
AA
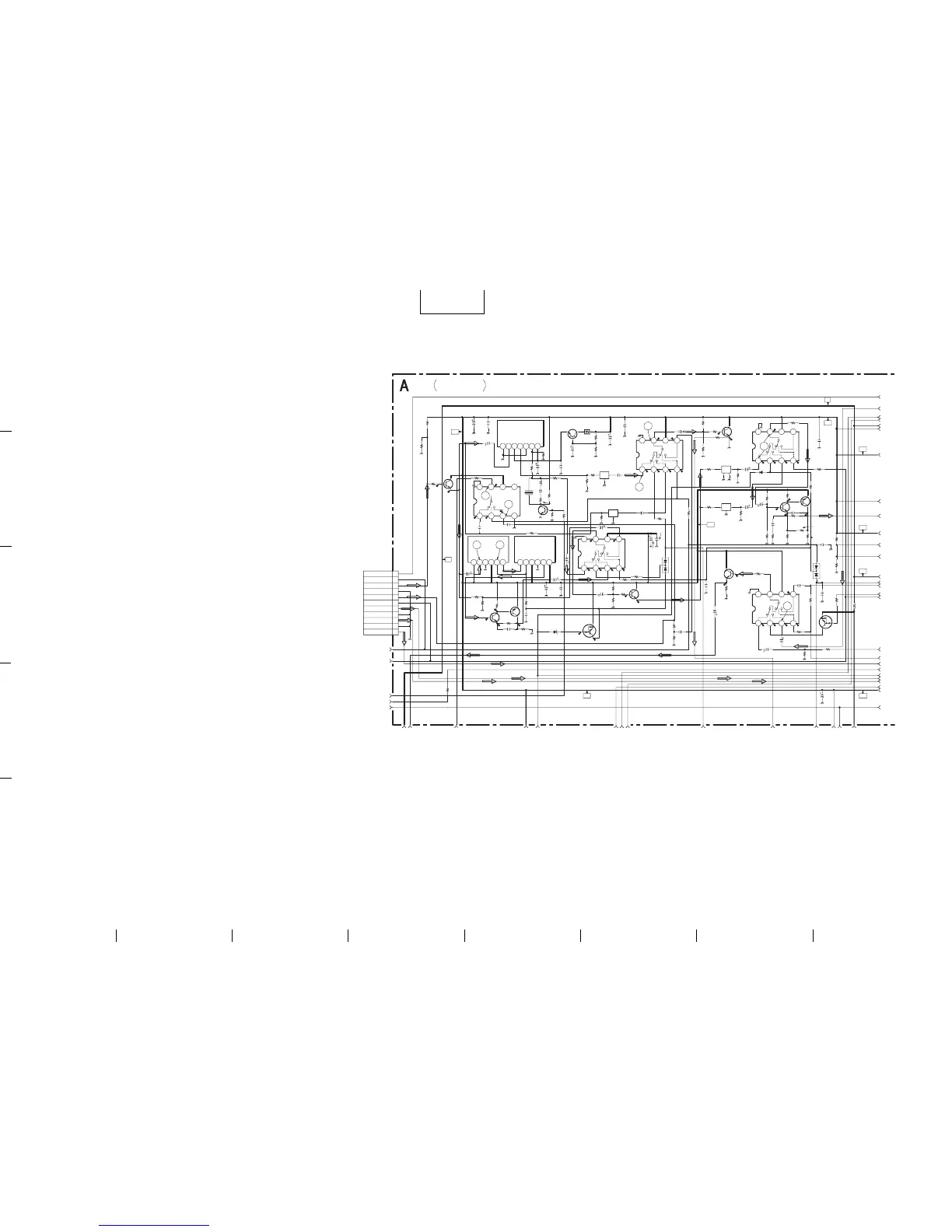
• A BOARD (5/10) (CHROMA SELECT, YDL SW, SYNC SELECT) DIAGRAM
• Refer to Printed Wiring Board
• Refer to page 4-42 (O/M M : 9-922-666-01) for Respective Voltage Ratings
• Refer to page 4-42, 43 (O/M M : 9-922-666-01) for Waveforms
1 2 3 4
5678
1 2 3 4
5678
1 2 3 4
5678
1 2 3 4
5678
1 2 3 4
5678
BPF
1 2 4 5 63 1 2 4 5 63
BPF
1 2 4 5 6 73
DL
DL
1
2
3
4
5
6
7
8
9
10
11
R2306
R2308
R1311
R1307
C1305
C1307
R1309
Q
3
0
3
2
S
D
6
0
1
A
V
ID
E
O
IN
-B
U
F
F
-2
R1320
R1333
R1325
C1323
C1324
C1325
C1315
R1326
C1312
C1317
R1358R1348
C1321
Q319
C1326
C1327
R1376
R1375
R1383
R1387
R1393
Q326
Q327
R1390
R1384
C1311
C1313
Q316
C1318
R1335
R1338
R1337
C1322
C1330
C1328
C1304
C1314
C1316
R1344
R1342
R1343
R1367
R1381
C1332
C1331
R1380
C1333
R1395
C1339
C1340
R1334
C1338
C391
R1315
C1306
C1310
R1373
R1364
C1320
R1391
Q325
R1379
R1378
C1336
C1335
R1385
R2335
R1317
Q314
C1334
C1329
R1368
R1386
R1396
Q306
R1321
R1322
Q310
C1309 R1324
R1388
Q322
BPF400
CP300 CP301
FL401
CP303
DL300
DL301
CN301
L319
100µH
R2391
C
1
3
78
1
5
p
C
H
: C
H
IP
R2390
Q355
R2392
R2394
R2396
R2393
FL300
D
3
0
4
1
S
S
1
8
4
S
W
D313
R3310
Q361
C1308
C1344
R2340
D365
C372
R326
C1319
R1352
R1360
R1362
R2325
IC320
IC321
R1389
IC314
IC313
D303
IC316
R3312
R3397
R3311
47k
:CHIP
180k
:CHIP
47k
:CHIP
56k
:CHIP
47
25V
0.01
F:CHIP
100
:CHIP
2.2k
:CHIP
1k
:CHIP
1.1k :RN-CP
0.01
F:CHIP
0.01
F:CHIP
0.01
F:CHIP
47
25V
10k
:CHIP
0.01
F:CHIP
47 25V
8.2k
:CHIP
8.2k
:CHIP
47
25V
2SD601A
Y-SW-BUFF
47
25V
0.01 F:CHIP
680
:RN-CP
560
:RN-CP
18k
:RN-CP
1.2k
:RN-CP
3.9k
:CHIP
2SD601A
Y-AMP-1
2SB709A
Y-AMP-2
680
:RN-CP
56k
:CHIP
47
25V
0.01
F:CHIP
2SD601A
NT-COMB-B.C.REF
47
25V
47
1/4W
:FPRD
680
:RN-CP
3.3k
:CHIP
220
16V
0.01
F:CHIP
0.01
F:CHIP
47
25V
47
25V
0.01
F:CHIP
68k
:CHIP
27k
:CHIP
330
:CHIP
2.4k
:RN-CP
680
:RN-CP
47
25V
47
25V
560
:RN-CP
47
25V
8.2k
:CHIP
0.01
F:CHIP
0.01
F:CHIP
3.9k
:CHIP
0.01
F:CHIP
47
25V
100
:CHIP
0.01
F:CHIP
0.01
F:CHIP
3.9k
:CHIP
10k
:CHIP
47
25V
100 :CHIP
2SD601A
SYNC-SIG-BUFF
330
:CHIP
4.7k
:CHIP
47
25V
47
25V
10k
:CHIP
3.3k :CHIP
220
:CHIP
DTA144EKA
SECAM SW
10p
CH:CHIP
10
2.7k
:CHIP
15k
:CHIP
8.2k
:CHIP
2SD601A
PAL TRAP BUFF1
820
:RN-CP
2.2k
:CHIP
2SB709A
PAL TRAP
BUFF2
180p
CH:CHIP
3.3k
:CHIP
39k
:RN-CP
2SD601A
BPF-SW-BUFF
3.58 BPF
BPF
4.43 BPF
Y-D.L.
Y-D.L.
11P
YEL
:S-MICRO
680
:RN-CP
680
:RN-CP
2SD601A
258 TRIP SW
10k
:CHIP
22k
:CHIP
470
:CHIP
10k
:CHIP
TRAP
1SS184
SW
1k
:CHIP
DTA144EKA
EXT-SYNC SW
100
10V
1p
:CHIP
10k
:CHIP
MA111
SECAM SW
0.01
F:CHIP
220
:CHIP
0.022
B:CHIP
4.7k
:CHIP
4.7k
:CHIP
11k
:RN-CP
3.9k :CHIP
MM1113XFBE
CHROMA BPF
SELECT
MM1113XFBE
Y-D.L.-SW
1.8k
:RN-CP
MM1113XFBE
Y-SW
MM1113XFBE
SYNC SELECT
DTZ-TT11-6.2
SECAM SW
MM1111XFBE
CHROMA SELECT
82k
:CHIP
680
39k
:CHIP
(3/10) 50.358
(4/10) 51.VIDEO
(1/10) 71.RGB.COMP
(1/10) 49.LINE C
(9/10) 78.H BLK
A063
A064
A065
A066
A067
A068
A069
A070
A071
A072
A073
A074
A075
A076
A-38
A-39
A-40
A-41
A-42
A-43
A-44
A-45
A-46
A-47
A-48
A-49
A-50
A-51
A-52
A-53
A-54
A-55
A-56
A-57
A-58
A-59
A-60
A-61
A-62
A-63
A-64
GND
IN
9V
C-OUT
GND
Y-OUT
9V
COMB FILTER
VCC
IN
GND
443
425
425
443
GND
Y-OUT
VCC
GND
LH
V+ NC
NC
GND
LH
V+
GND
LH
V+
GND
LH
V+
VIDEO.Y
GND
S.C
GND
GND
LINEA
LINE C
GND
LH
V+
TO Q BOARD
CN306
R/R-Y
G/G-Y
B/B-Y
(5/10)
CHROMA SELECT,Y DL SW
SYNC SELECT
5V
16 17
18
19
20
21
22
23
*
6.3 0**
5.6
5.1
11.5
3.82.2
2.8
5.6
6.3 * 6.3 *
*
*
*** 6.3
6.35.6
7.7 6.1
11.5
8.3
*
6.3
*
*
**
5.6 6.3
6.3 6.3
2.5
3.1
6.3
6.3
5.6
0
12V
12V
12V
12V
5V
12V
12V
12V
12V
C
RG
SYNC
SYNC
SYNC
Y
R
SYNC
Y
VIDEO/Y
C
R
G
B
Y
Y
YY
Y
Y
Y
VID
EO
/Y
VIDEO
Y
C
C
C
Y
Y
Y
S
YN
C
G
B
B-SS9536<U/C>-AICAD09-P5
RGB.COMP
L320 470µH :FLR50

Related product manuals