EasyManua.ls Logo

Sony BVM-14M4DE - Page 14

Sony BVM-14M4DE
42 pages
Print Icon
To Next Page IconTo Next Page
To Next Page IconTo Next Page
To Previous Page IconTo Previous Page
To Previous Page IconTo Previous Page
Loading...
A B C D E F GH
1
2
3
4
5
– 26 –
– 25 –
AA
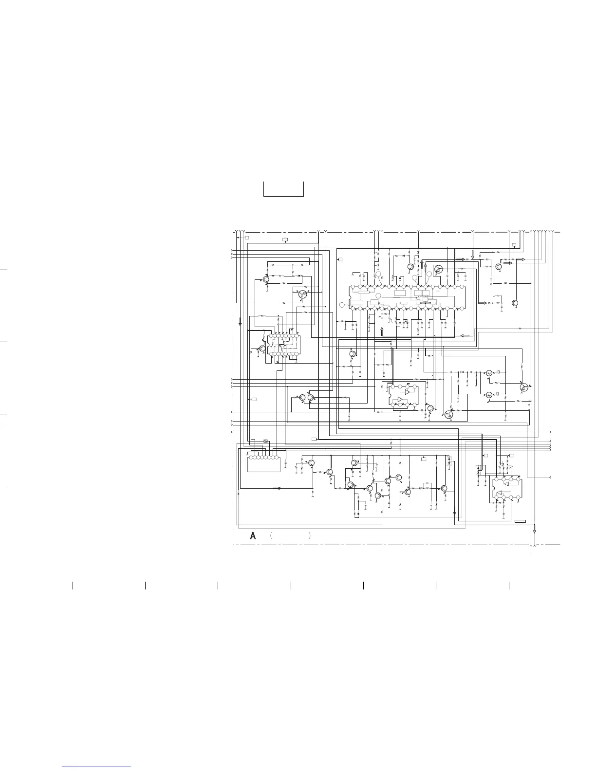
• A BOARD (7/10) (SYSTEM SW, CHROMA DEMOD, PAL U/V, ACC OFF GAIN CONT, AMP) DIAGRAM
• Refer to Printed Wiring Board
• Refer to page 4-42 (O/M M : 9-922-666-01) for Respective Voltage Ratings
• Refer to page 4-42, 43 (O/M M : 9-922-666-01) for Waveforms
• Refer to page 4-45 (O/M M : 9-922-666-01) for IC Block Diagrams
1234
5678
12345678910111213141516
17181920212223242526272829303132
12345678
910111213141516
S
S
123 67845
1234
5678
R1336
C365
R1331
R1329
C357
R1346
R1353
C367
R1363
C358
R1369
C360
C352
C362
C363C361
C366
Q324
C381
R1382
R1347
R1349
R1394
L311
C384
Q330
R1392
L309
C375
Q331
C376
C374
R1361
Q321
R1370
R1371
C379
C380
C355
C359
C356
C364
R1345
R1356
R1357
R397
C353
C390
C382
C328
R2300
R2301
R361
R1366
D309
C387
R1374
R366
C315
R331
R335
Q301
R325
Q305
C311
R320
R328
Q307
R315
R314
D301
IC302
R312
R311
R313
C304
C310
R357
R349
R333
R332
R351
Q312
R334
R321
R317
R345
R346
C316
Q308
R342
R350
C318
C305
Q313
Q315
R329
R322
C312
L300
47
µ
H
C314
R323
R330
Q318
R318
C313
D310
R307
R1332
R1350
R1365
R336
R316
Q309
Q311
R308
C306
R324
R1354
D307
IC305
Q300
R1306 R1312
L308 C354
D300
R1308
R1313
R1314
R1316
R389
R395
R380
Q302
R374
R373
560
:RN-CP
R388
R1319
R393
R1330
C349 C350
C343
R399
R376
R1304
R394
Q332
R1399
C340R381
R387
L305
R398
Q323
R382 R378
CP302
PAL U/V
JR302
R3333
R3337
R3338
R2309
Q
36
3
2
S
D
6
0
1
A
T
E
S
T
B
U
F
F
R2311
C325
D311
IC301
C1386
C1385
C1384
R3382
R3383
R3384
Q358
Q359
R3386
R3385
C1387
Q
3
5
7
2
S
D
6
0
1
A
A
C
C
O
F
F
S
W
R3381
R386
D308
R1359
R390
R1318
C1388
Q448
C377
C378
R354
X301
X300
IC304
D305
Q328
Q329
82k
:CHIP
0.001
100V
:PT
15k
:RN-CP
180k
:CHIP
0.01
F:CHIP
100k
:CHIP
4.7k
:CHIP
0.01
F:CHIP
470k
:CHIP
0.01
F:CHIP
1.2k
:CHIP
0.01
B:CHIP
0.01
F:CHIP
0.01
F:CHIP
18p
CH:CHIP
0.01
F:CHIP
0.01
F:CHIP
DTC144EKA
PAL SW
0.01
F:CHIP
10k
:CHIP
10k
:CHIP
270
:CHIP
470
:CHIP
:FLR50
82p
CH:CHIP
2SB709A
R-Y-BUFF1
470
:CHIP
:FLR50
220p
CH:CHIP
2SB709A
B-Y-BUFF1
0.47
1
470k
:CHIP
2SD601A
B/W-SW2
220k
:CHIP
470k :CHIP
0.01
F:CHIP
1000
16V
1
47
25V
4.7
0.01
F:CHIP
330k
:CHIP
220k
:CHIP
150k
:CHIP
470k
:CHIP
0.1
F:CHIP
47p
CH:CHIP
47p
CH:CHIP
0.01
F:CHIP
4.7k
:CHIP
4.7k
:CHIP
47
:CHIP
22k
:CHIP
MA111
B/W SW
0.001
:CHIP
150k
:CHIP
4.7k :CHIP
10
68k
:CHIP
27k
:CHIP
2SD601A SYNC-CHIP-CLAMP1
330
:CHIP
2SD601A
CLAMP-BUFF-1
0.047
25V
B:CHIP
2.2k
:CHIP
1M
:CHIP
2SD601A
SYNC-CHIP-CLAMP2
120k
:CHIP
120k
:CHIP
MA111
CLAMP
LM358DR
PAL-60-ID2
10k
:CHIP
1.8k
:CHIP
750
:RN-CP
0.1
25V
B:CHIP
0.1
25V
B:CHIP
1M
:CHIP
62k
:RN-CP
100k
:CHIP
100k
:CHIP
3.3k
:CHIP
2SD601A
AMP-1
68k
:CHIP
1.2k
:CHIP
2.2k
:CHIP
3.9k
:CHIP
2.2k
:CHIP
47
25V
2SD601A
CLAMP-REF
4.7k
:CHIP
33k
:CHIP
10
220p
CH:CHIP
2SB709A
AMP-2
2SB709A
BUFF
1.8k
:CHIP
270
:CHIP
2.2
:FLR50
82p
CH:CHIP
330k
:CHIP
47k
:CHIP
2SB709A
SYNC-SEP
1k
:CHIP
0.0015
:CHIP
1S2836
CLAMP
560k
:CHIP
6.8k
:RN-CP
10k
:CHIP
2.7M
:CHIP
4.7k
:CHIP
1k
:CHIP
2SB709A
CLAMP-BUFF-2
2SB709A
SLICER2
4.7k
:CHIP
0.01
F:CHIP
150k
:CHIP
47k
:CHIP
MA111 B/W SW
M51279FP
CHROMA-DEMOD
2SD601A
PHASE SHIFT
560
:RN-CP
120
:CHIP
:FLR50
150p
CH:CHIP
1SV232
PHASE ADJ
560
:RN-CP
100k
:CHIP
22k
:CHIP
4.7k
:CHIP
820
:RN-CP
1k
:RN-CP
4.7k
:CHIP
2SA1162-G
BUFF
680
:RN-CP
390
:CHIP
33k
:CHIP
10k
:CHIP
22k
:CHIP
0.001
:CHIP
0.001
:CHIP
0.01
F:CHIP
390k
:CHIP
390k
:CHIP
39k
:CHIP
27k
:CHIP
DTC144EKA
3.58 SW
10k
:CHIP
0.01
F:CHP
39k
:CHIP
150
:CHIP
:CHIP
220k
:CHIP
DTC144EKA
PAL SW
150k
:CHIP
510k
:CHIP
0
:CHIP
470k
:CHIP
120k
:CHIP
180k
:CHIP
1k
:CHIP
10k
:CHIP
10
1SV230
XTAL ADJ
CXA1211M
ACC OFF
GAIN-CONT,AMP
0.01
F:CHIP
0.01
F:CHIP
0.1
F:CHIP
560
:RN-CP
6.8k
:CHIP
3.9k
:CHIP
2SD601A
ACC OFF SW
2SB709A
ACC ON SW
2.2k
:CHIP
2.2k
:CHIP
0.01
F:CHIP
470 :CHIP
56k
:CHIP
MA111
SW
120k :CHIP
10
1/4W
:FPRD
47k
:CHIP
12p
CH:CHIP
DTC144EKA
SYSTEM SW
0.047
25V
B:CHIP
0.047
25V
B:CHIP
3.58MHz
4.43MHz
BU4053BCF-T1
SYSTEM-SW2
1SS226 PROTECT2
2SK94-T1X2X3X4
4.43 SW
2SK94-T1X2X3X4
3.58 SW
(1/10) 52.PAL-H
(1/10) 53.PAL/NT
(3/10) 55.HUE DAC
(3/10) 56.BGP.W DAC
(3/10) 57.COL DAC
(2/10) 60.HUE
(3/10) 59.X TAL OPE
(3/10) 54.U-PAL OPE
(3/10) 58.ACC OFF
(1/10) 83.OSD-BLK
A064
A065
A066
A067
A068
A069
A070
A071
A072
A073
A074
A076
A075
A078
A079
A080
A085
A097
A098
A063
A-65
A-66
A-67
A-68
A-69
A-70
A-71
1.2M
:CHIP
C
O
M
G
N
D
S
E
C
A
M
D
L
V
C
C
S
E
C
A
M
S
W
I
N
SYNC SEPA IQKILLER
FILT
R-Y
DEMOD
B-Y
DEMOD
PAL /NTBLK
IN
VCC NC
NCGND
VXOAPC
TINF
COMT
FF
V REFACC
COL OR
CONT
BURST GATE
PULSE DEN
VCC
GND
HL H
L
HL
CONP-SYNC
(7/10)
SYSTEM SW,CHROMA DEMOD
PAL U/V,ACC OFF GAIN CONT,AMP
5V
5V
28
27
26
24
25
2.5
1.9
*
*
*
*
1.9
2.2
2.5
2.6
2.2
*
2.8
2.2
0.3
*
2.2
1.6
2.2
*
*
*
*
*
*
*
*
1.8
1.2
1.3
0.2
0.9
1.5
*
*
*
*
8.6
*
*
2.22.2
2.2 2.2
*
*
*
*
***
1.7
3.0
1.1
0
0
2.6
*
*
*
0.3 3.0 2.9 4.7 4.9 2.8 *
2.1
2.1
* 2.9
2.93.3*2.72.93.0*2.92.9*2.21.8*
*
4.9 *
*
2.9 2.9
12V
12V
12V
12V
5V
12V
5V
SYNC
SYNC
SYN
C
S
YN
C
R
-Y
B-Y
R-Y
C
C
C
B-Y
B-Y
R-Y
B-SS9536<U/C>-AICAD09-P7
4.7
µ
H
2.2
µ
H
10
µ
H
10
µ
H
(1/10) 70. 443 / 358
(10/10) 65. COMP- SYNC

Related product manuals