EasyManua.ls Logo

Sony BVM-14M4DE - Page 20

Sony BVM-14M4DE
42 pages
Print Icon
To Next Page IconTo Next Page
To Next Page IconTo Next Page
To Previous Page IconTo Previous Page
To Previous Page IconTo Previous Page
Loading...
A B C D E F GH
1
2
3
4
5
– 38 –
– 37 –
--
G
--
1-668-847-13
D601 B-2
D605 A-3
D606 C-3
D607 D-3
D608 D-4
D609 D-3
D610 D-5
D612 C-6
D613 D-5
D614 B-4
D615 A-4
D616 A-4
D617 A-5
D618 D-3
D619 E-3
D620 D-3
D621 C-6
D622 D-4
IC601 E-3
IC602 E-6
IC603 C-6
IC604 B-5
IC605 A-5
Q601 A-4
Q602 D-3
Q603 A-6
Q604 E-6
Q605 D-6
Q606 D-6
Q607 D-6
GG
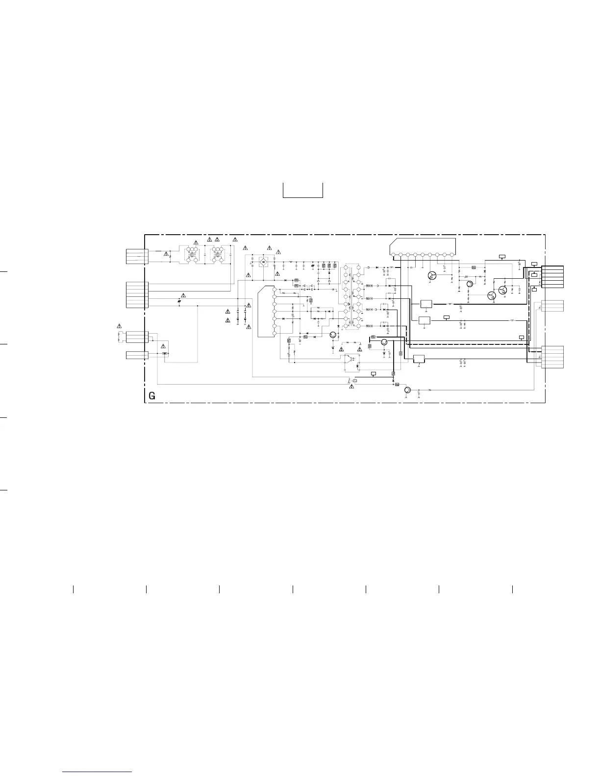
• G BOARD (AC RECT, POWER SUPPLY) DIAGRAM
--
H
--
1-668-849-12
D2102 A-6
D2103 A-6
D2104 A-6
RV2101 A-6
RV2103 A-6
RV2105 A-5
RV2109 A-5
RV2113 A-4
RV2117 A-4
1
2
3
4
5
6
7
1
2
3
1
2
3
4
5
6
1
2
3
4
5
6
7
1
2
1
2
43
5
6
1
2
3
1 2 3 4 5 6
7 8
9
O
G
O
G
O
G
1
2
3
4
5
6
1
2
3
4
1
3
4
6
2
1
3
4
6
2
1
2
4
5
6
7
8
9
10
11
12
14
13
15
16
18
17
3
RY601
C602
R601
R606
C603
R621
C622
C615
VDR601
C604
C605
C606
C607
C608
C609
C610
C611
R617
FB603
FB605
L1601
270µH
L601
200µH
C626
R623
R602
VDR602
R607
C619
R603
R630
R611
R628
R627
R631
C632
C616
D617
C617
C614
FB609
FB610
FB611
FB612
FB613
C621
C627
C612
C613 C638
R612
R604
R613
CN601
CN602
CN603
CN609
CN605
C631
T602T601
D601
D605
D618
IC601
C618
R614
D609
D608
R610
D606
D607
T603
IC602
D610
D612
FB604
D613
C623
R618
R620
R619
Q603
C625
C628
D614
D615
C629
C636
PH601
C624
Q601
D616
R622
R632
C637
IC605
IC604
IC603
C633
R626
C634
CN606
CN607
C630
THP601
R605
R608
R609
R1602 R1603
R629 R615
L1602
100µH
C635
Q602
D619
D622
D620
R616
L2601
45µH
C2601
R642
C643
Q604
C640
R640
C639
Q606 Q607
C641
R641
R624
Q605
R633
D621
R634
R635
R636
R637
R638
R639
R625
0.22
250V
:AC
0.22
250V
:AC
1000p
500V
1M
1/2W
:RN
0.15
3W
22k
1W
:RS
1600p
2kV430V
4700p
250V
E
4700p
250V
E
4700p
250V
E
4700p
250V
E
4700p
250V
E
4700p
250V
E
4700p
250V
E
4700p
250V
E
0.1
1/2W
:RF
0.45µH
0.45µH
1000p 500V
1k
56k
3W
:RS
430V
5.6k
220
39k
3W
:RS
39k
3W
:RS
1k
1/4W
:FPRD
56k
3W
:RS
39k
3W
:RS
390
1/4W
:FPRD
47
160V
47
35V
RD16ESB1
3300p
1kV
0.022
630V
1.1µH
FB608
1.1µH
1.1µH
1.1µH
1.1µH
1.1µH
1000
160V
4700
35V
0.47
630V
:MPS
0.47
630V
:MPS
0.47
630V
:MPS
82
1.2k
1.5k
4P
WHT
:VH
7P
WHT
:VH
3P
WHT
:MINI
2P
WHT
:MINI
6P
WHT
:MINI
0.56
200V
LFTLFT
D4SB60L
MAIN RECT
EGP20G
RECT
EPG20G
STR-M6524
REF PWM
10
2.2
1/4W
:FPRD
EL1Z
SW
1SS119
SW
8.2k
RGP15K
DUMPER
EL1Z
SW
SRT
STR-S3115
+B CONTROL
D5L60
+B RECT
FML-G12S
RECT
0.45µH
EGP20G
+7V RECT
4700
35V
0.1
1/2W
:RF
0.1
1/2W
:RF
0.1
1/2W
:RF
2SC3851
+15V REG
4700
35V
1000p
500V
FML-G12S
RECT
EGP20G
-15V RECT
3300
25V
47
PC111YS
ISOLATOR
1000p
500V
2SD774
DGC SW
ERA15-06
DUMPER
47
1/4W
:FPRD
47
1/4W
:FPRD
100
TA7812S
+12V REG
TA7805S
+5V B REG
NJM78M05FA
+5V A REG
3300
16V
470k
220
3P
WHT
:S-MICRO
6P
10
1.2k
12k
12k
220k
1/2W
:RN
220k
1/2W
:RN
4.7M
1/2W
:RN
4.7M
1/2W
:RN
330p
2kV
B
2SD1640
:1D
RD20ESB2
:40
EL1Z
EL1Z
:4G
22k
:RD
:Z-Zz
1000pF
500V
E:CC
1.5
3W
:RS
10
50V
:CH
DTC114ESA
:1A
10
50V
:CI
390k
:RD
10
:CI
DTC114ESA
:1A
DTC114ESA
:1A
1000p
50V
B:CC
1.2k
:RN
390k
:RD
2SA1091
:0B
10k
:RD
1SS119
:4A
150k
:RD
10k
:RD
470k
:RD
3.9k
:RD
1k
:RD
1.5k
:RD
0.56
3W :RS
V OUT
V IN
F/B
C/P
G
ND
D
S
GND
OCP
VI N
F/B
SS.TRI
ON/O
FF
O
CP
DGC
DGC
DGC
DGC
AC IN
AC IN
AC OUT
AC OUT
AC IN
AC IN
5V A
GND
115V
GND
15V
-15V
D1B
GND
DGC SW
12V
D1B
7V
-15V
GND
5V B
TO Q BOARD
CN604
TO J BOARD
CN608
DGC
CN503
CN504
TO BV BOARD
CN1
(POWER SUPPLY,AC RECT)
FOR CHECK
TO A(10/10)BOARD
TO A(10/10)BOARD
5V A
115V
-15V
15V
15V
15V
5V B
B-SS9536<U/C>-GICAD09
I
I
I

Related product manuals