EasyManua.ls Logo

Sony D-V8000 - Schematic Diagram - LCD Board

Sony D-V8000
78 pages
Print Icon
To Next Page IconTo Next Page
To Next Page IconTo Next Page
To Previous Page IconTo Previous Page
To Previous Page IconTo Previous Page
Loading...
D-V8000
– 17 – – 18 –
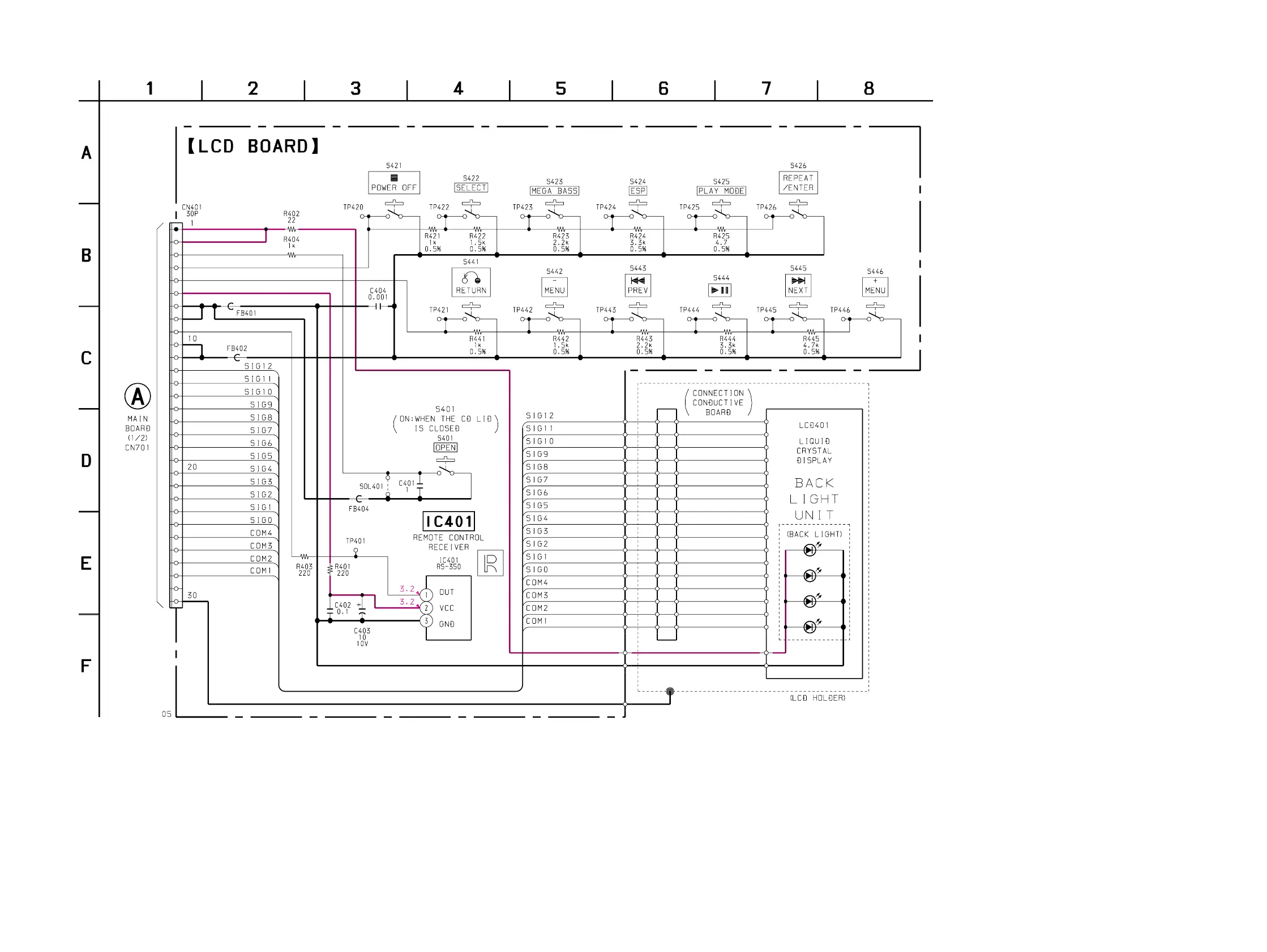
2-6. SCHEMATIC DIAGRAM – LCD BOARD –
Note on Schematic Diagram:
All capacitors are in µF unless otherwise noted. pF: µµF
50 WV or less are not indicated except for electrolytics
and tantalums.
All resistors are in and
1
/
4
W or less unless otherwise
specified.
% : indicates tolerance.
C : panel designation.
A : B+ Line.
Power voltage is dc 6 V and fed with regulated dc power
supply from external power voltage jack.
Voltages and waveforms are dc with respect to ground
under no-signal conditions.
no mark : VIDEO CD PLAY
Voltages are taken with a VOM (Input impedance 10 M).
Voltage variations may be noted due to normal produc-
tion tolerances.
(Page 11)