EasyManua.ls Logo

Sony HDVF-C30W - Block Diagram

Sony HDVF-C30W
60 pages
Print Icon
To Next Page IconTo Next Page
To Next Page IconTo Next Page
To Previous Page IconTo Previous Page
To Previous Page IconTo Previous Page
Loading...
4-1
HDVF-C30W
4-1
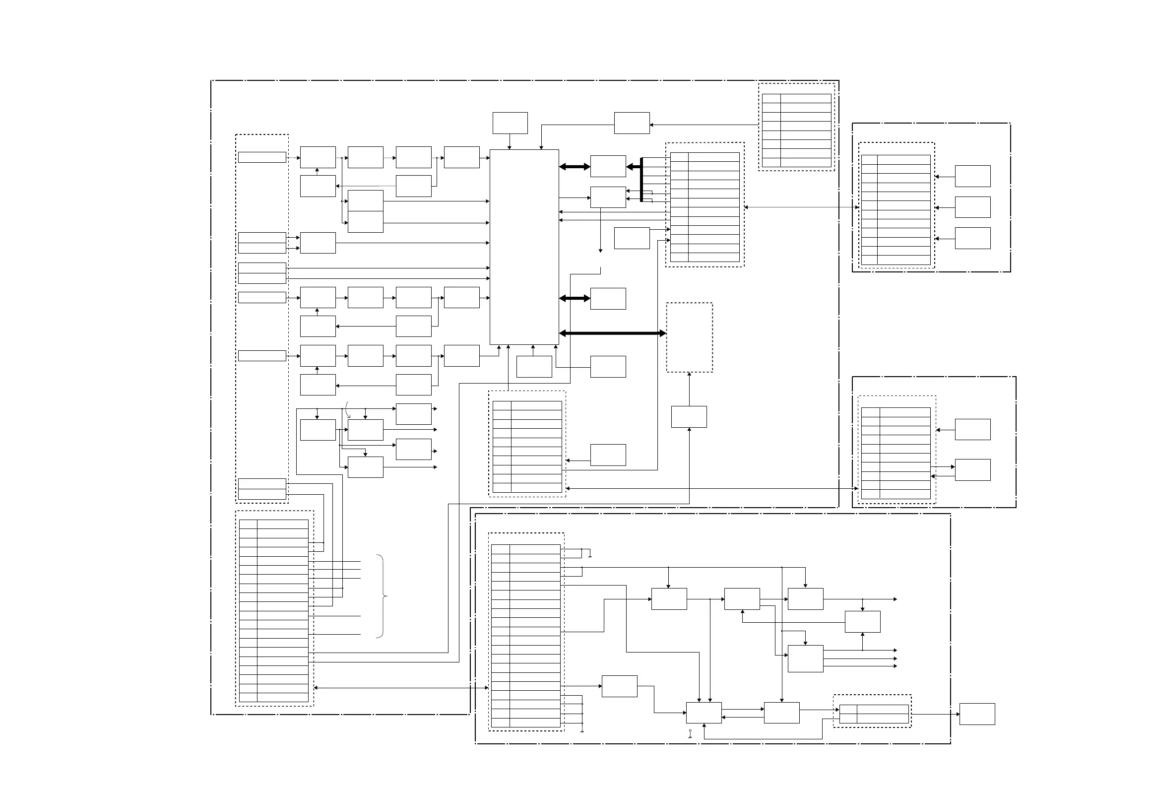
Section 4
Block Diagram
OverallOverall
Overall Block
SW-1092
CN1
ASP
DISP
ZEB-MOM
ZEB-ON
B & W
MAG
TALLY_IN
TALLY_OUT
3.1V-3
GND
GND
TALLY DRV
Q1, 2, D1
SW
1 to 5
S1 to 5
1
2
3
5
6
7
8
9
10
4
VR-280
CN1
GND
3.1V-3
TALLY_IN
+2V
INV
SEL2
P-CONT
CONT
P-BRIGT
BRIGT
P-PEAK
PEAK
TALLY DRV
Q1, 2
D1, 2
SW
1, 2
S1, 2
VR
1 to 6
RV1 to 6
12
11
10
8
7
6
5
4
3
2
1
9
RE-208
CN1
GND
UNREG
UNREG
CONT-MAX
CONT-GND1
CONT-GND2
3.1V_OUT
3.1V_OUT
POWER_OFF
-7.2V_OUT
+20V_OUT
FRAME_P
10.5V_OUT
CONTRAST
GND
GND
BFR
IC101
IC102
CONT-GND1, 2
LOW ,H IGH
VOLTAGE
DETECT
SW ITCH
REG
Q1 to 8, 17, 18
IC1
IC3
Q9 to 12
IC4, 5
Q13 to 15
D5 to 7
T1
Q106 to 108
T101
CCFL
REG
3.3V
DRV
10.5V
19.5V
-6.6V
DRV
SHORT
PROTECT
-7.2V
3.1V
10.5V
20V
1
2
CN2
+CCFL
-CCFL
1
2
3
4
5
6
7
8
9
10
11
12
13
14
15
16
17
18
19
20
GND
GND
ROYER OSC
CN1
IC1
IC21 (1/4)
IC7 IC11
IC10
IC23 (1/2)
IC23 (2/2)
Q1, 2
D1 to 3
Q14, 21
FL1
LPFAMP
CLAMP
AMP
Y VIDEO
PR-267
IIC
IF
VIDEO
A/D
AMP
SW
SYNC
SEP1
SYNC
SEP2
SDA
SCK
G-TALLY
R-TALLY
PB VIDEO
PR VIDEO
2.5V
CLAMP
AMP
AMP
IC3
IC21 (2/4)
FL2 IC5 IC12
IC8
IC4 FL3 IC6 IC13
IC9
IC21 (3/4)
IC2
IC22 (1/4)
Q3, 13
IC21 (4/4), Q15
IC22 (2/4)
Q16, 18
LPF
AMP
VIDEO
A/D
SW
AMP
LPF
AMP
VIDEO
A/D
CLAMP
AMP
SW
2.5V
REF
3.0V
REG
2.5V
REG
1.5V
REG
FIL
3.1V-3
3.0V
1.5V
CN2
POWER-OFF
UNREG
GND
GND
UNREG
UNREG
CONT-MAX
CCFL-CR
CCFL-FB
CCFL-GND
CN5, 6
TO LCD
CONT-GND1
CONT-GND2
3.1V_IN
3.1V_IN
POWER_OFF
-7.2V_IN
+20V_IN
FRAME_P
10.5V_IN
CONTRAST
GND
GND
GND
GND
1
2
3
4
5
6
7
8
9
10
11
12
13
14
15
16
17
18
19
20
SDRAM
IC15
TALLY
DRV
Q4, D4
CN3
ASP
1
2
3
DISP
ZEB-MOM
4
ZEB-ON
5
B & W
6
MAG
7
TALLY_OUT
8
TALLY_IN
9
3.1V-3
10
GND
CN5, 6
TO LCD
LCD
BIAS
IC24 (1/4, 2/4)
IC25
S1, 2
VCO
IC18, 19
X1
FPGA
IC16
VR
A/D
CN7
PEAK
12
P-PEAK
BRIGT
11
10
P-BRIGT
9
CONT
8
P-CONT
7
SEL2
6
INV
5
+2V
4
TALLY_OUT
3
3.1V-3
2
GND
1
CONT
CTRL
CONTRAST
CN2
2V
REG
IC22 (3/4), Q17
CN4 (EPR)
1
3.1V-3
2
3
TDI
4
TDO
5
TMS
6
TCK
7
8 GND
CONF
START
IC27
IC20, IC24 (4/4)
IC26
IC17
EEPROM
PIN NO.
7, 8
9, 10
11, 12
4
13, 14
1
2
5
6
VOFF
VGG
LCD
BACK LIGHT

Related product manuals