EasyManua.ls Logo

Sony KV-32FX65E - Page 32

Sony KV-32FX65E
92 pages
Print Icon
To Next Page IconTo Next Page
To Next Page IconTo Next Page
To Previous Page IconTo Previous Page
To Previous Page IconTo Previous Page
Loading...
35
36 3837
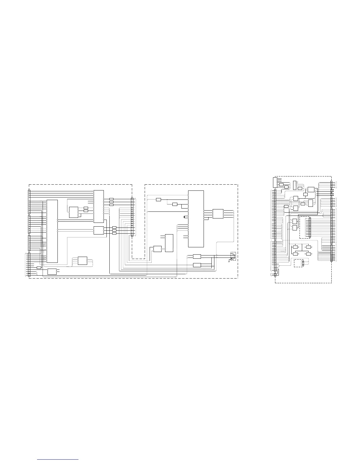
5-1. BLOCK DIAGRAMS (2)
TO A BOARD
CN1801
B9
A9
CVBS OUT (TEXT)
AUDIO RESET
AM1
QSSI IN
CN8902
A4V
CN8101
(1/2)
14
SDA
13
SCL
15
YS 3
27
R I
26
G I
25
B I
V-M (2)
1
CVBS/YI
48
CI
45
COMB SYS
23
Cr OUT
5
COMB Y
BUFFER
Q8200
MONO IN (AM)
69
IF IN 2
67
IF IN1
POWER ON RESET
27
SPEAKER OUT R
25
SURROUND OUT
28
SPEAKER OUT L
30
SUBWOOFER OUT
60
XTAL IN
SCL
TV OUT L
AV MAIN L IN
XTAL OUT
TV OUT R
AV MAIN R IN
72
71
2
57
56
37
36
SDA
3
X8200
18.432MHz
BUFFER
Q8201
HP MUTE SWITCH
Q8100, Q8101
6
7
8
1
L OUT
R OUT
L IN
R IN
SCL
SDA
21
68 IF COMMON IN
IC8200
SOUND PROCESSOR
7
1
CENTER OUT
LEFT IN
CENTER IN
LEFT OUT
8
RIGHT IN RIGHT OUT
14
SUR. IN SUR. OUT
CENTER SPEAKER (1)
LEFT SPEAKER (3)
RIGHT SPEAKER (2)
SURROUND SPEAKER (4)
IC8201
OUTPUT AMP
5
3
10
12
24
CENTER OUT
IC8101
HP OUT
J8901
VARIABLE OUT
L
R
AM1
QSS1
AUDIO
RESET
TO A BOARD
CN1801
CN8101
(2/2)
HEADPHONE L OUT
HEADPHONE R OUT
J
(
)
INTERFACE,
AUDIO, CHROMA,
G COMB FILTER
MAIN L
MAIN R
RIGHT OUT (9)
LEFT OUT (11)
HP L
HP R
IC8700
AUTOWIDE
6
AD IN
16
SDA
15
SCL
SDA
SCL
B15
A15
A10
A14
AMP
Q8818
B14
B6
A6
27
(L4) AV3-L
SDA
SCL
AV3 LEFT IN
AV3 RIGHT IN
34
(R4) AV3-R
A7
AV3 C IN
51
(C2) AV3-C
A8
AV3 LUM IN
56
AV3-V(Y2)
A13
19
20
VIDEO OUT
VIDEO IN AV4 (3)
15
8
6
3
2
1
RIGHT OUT (9)
33
(R5) AV4-R
26
(L5) AV4-L
20
MODE 3
49
(C3) AV4-C
54
AV4-V(YB)
RIGHT IN (10)
LEFT OUT (11)
LEFT IN (12)
MODE 4 (3)
C IN AV4 (4)
CN8901
AV2
19
20
VIDEO OUT (6)
VIDEO IN (9)
15
10
6
3
2
1
RIGHT OUT (5)
RIGHT IN (6)
LEFT OUT (7)
LEFT IN (8)
AV LINK
C IN (5)
10
MODE (2)
CN8900
AV1
19
20
VIDEO OUT (2)
VIDEO IN (3)
8
6
2
1
16
15
RED IN
BLANKING
RIGHT OUT (1)
RIGHT IN (2)
LEFT IN (4)
MODE (1)
3
LEFT OUT (3)
11
7
BLUE IN
GREEN IN
58
AV2-V(Y1)
9
AV2 OUT(CV01)
52
AV2-C(C1)
19
MODE 2
28
(L3) AV2-L
35
(R3) AV2-R
41
(L02) AV2-L OUT
40
(R02) AV2-R OUT
60
AV1-V (CV IN 2)
18
MODE 1
29
(L2) AV1-L
25
LTV
36
(R2) AV1-R
32
RTV
IC8500
DIGITAL COMB FILTER
11
AV4 C
3
Y OUT
13
C OUT
6
CLOCK IN
16
LUMINANCE OUT
15
CHROMA OUT
16
PNR
15
NTPLI
AMP
Q8302
AMP
Q8300
47
(CO2)
SUB C OUT
45
(YO2)
SUB Y OUT
IC8301
MAIN COLOR DECODER
SDA
SCL
7
COMB C/
FORGED S
22
Cb OUT
21
Y OUT
39
MAIN L OUT
38
MAIN R OUT
24
HPR OUT 3
23
HPL OUT 3
AMP
Q8310
AMP
Q8309
AMP
Q8308
4
AV4 Y
15
AV3 C
2
AV3 Y
IC8802
SUB AUDIO/VIDEO SWITCH
MAIN L
MAIN R
HPR
HPL
A2
U-M (1)
HEADPHONE RIGHT OUT
SURROUND SPEAKER (4)
CENTRE SPEAKER (1)
LEFT SPEAKER (3)
RIGHT SPEAKER (2)
HEADPHONE RIGHT OUT
HEADPHONE LEFT OUT
HP MUTE
HEADPHONE LEFT OUT
Y-M (3)
A25
B25
B4
A4
A3
A2
A1
B1
A4
B4
A5
IC8801
MAIN AUDIO/VIDEO SWITCH
AV LINK
CVBS1 IN
AM 2
QSS 2
A11
B11
1
3
13
SW
AM IN
FM SIF
IC8150
FM DEMULATOR
3 2
SWODA 4
IC8151
I2C SWITCH
SDA
14
SCL
15
SDA
SCL
Y-S (7)
21
Y OUT
22
U OUT
23
V OUT
AMP
Q8403
AMP
Q8405
AMP
Q8406
A21
U-S (8)
V-S (9)
A20
B19
IC8401
SUB COLOR DECODER
48
CI
1
CVBS/YI
11
MAIN Y OUT
13
MAIN C OUT
46
SFC OUT
3
CVBS OUT
CN1801
B13
A15
B15
B18
QSS2 OUT
HEADPHONE RIGHT IN
HEADPHONE LEFT IN
AV3 CHROMA OUT
AV3 LUMINANCE OUT
AM 2 OUT
CVBS 2 OUT
AUDIO LEFT
AUDIO SURROUND
AUDIO CENTER
AUDIO RIGHT
HEADPHONE MUTE
AV3 RIGHT OUT
AV3 LEFT OUT
AV LINK I/O
MODE (PIN B)
CVBS IN (TEXT)
AUDIO RESET
H PULSE SUB IN
A19
B19
V PULSE SUB IN
V SUB IN
A20
U SUB IN
B22
H PULSE MAIN IN
A21
Y SUB IN
A23
A24
V PULSE MAIN IN
V MAIN IN
A25
U MAIN IN
B25
Y MAIN IN
B4
MODE (PIN 8)
B5
AV LINK I/O
B9
B8
CVBS IN (TEXT)
AUDIO RESET
B11
TEXT BLANKING IN
B12
BLUE TEXT IN
B14
RED TEXT IN
B13
GREEN TEXT IN
B17
V SYNC TEXT
B18
H SYNC TEXT
A12
STANDBY
A13
PROTECTION
A14
AC ON/OFF
B20
AUDIO MUTE
B3
AGC MONITOR
4
5
11
14
15
16
SCL
SDA
AGC MONITOR
SDA
SCL
AGC
MONITOR
AM1
QSS1
CVBS1
BUFFER
Q1328,
Q1329
BUFFER
Q1326,
Q1327
MUTE SW
Q1201
A3
A2
B1
A5
A4
B4
A6
B6
A7
A8
A13
A11
B11
A12
A1
9
10
1
1
A11
A12
A13
A14
A16
A17
A18
A19
A20
A2
A3
A4
A5
B19
A20
B20
A7
A8
B8
B7
B18
5
17
18
10
19
14
6
16
9
13
7
15
TO E BOARD
CN4101
TO B2 BOARD
CN2100
V SUB OUT
DPIC SW
V-100 IN
Y-100 IN
U-100 IN
V-100 OUT
Y-100 OUT
U-100 OUT
DPIC SW
B5
A4
A5
A2
B2
A3
B3
B1
A11
B11
A1
A6
A10
B10
9
11
1
3
5
7
TO H7 BOARD
CN7904
TO D BOARD
CN6102
TO J BOARD
CN8101
TO M1 BOARD
CN9101
5
9
11
13
TO D BOARD
CN6101
STANDBY
AC ON/OFF
OVER VOLTAGE
OVER CURRENT PROT
IC1400
I/O EXPANDER
AUDIO
PROTECTION
Q1226,1227,
1626
8
6
1
MUTE SW
Q1208
13
11
3
AUDIO CENTER
AUDIO SURROUND
AUDIO LEFT
AUDIO RIGHT
HEADPHONE RIGHT OUT
AV3 CHROMA IN
HEADPHONE LEFT OUT
AV3 LUMINANCE IN
AV3 LEFT OUT
AV3 RIGHT OUT
HORIZONTAL DEFL
RED TEXT OUT
VERTICAL DEFL
GREEN TEXT OUT
TEXT BLANKING OUT
BLUE TEXT OUT
EXTRA PARABOLA
FLYBACK PULSE
HORIZONTAL DRIVE
DYNAMIC FOCUS
EAST/WEST
VERTICAL SAW+
VERTICAL PROTECT
VERTICAL SAW-
RGB AFC
X-RAY
ABL
VM MODULATION
INST+
OUTS
INC+
MUTE
MUTE
OUTC
SURROUND
CENTER
IC1126
AUDIO AMPLIFIER
LEFT
IC1176
AUDIO AMPLIFIER
CENTER AND
SURROUND
IC1126
AUDIO AMPLIFIER
RIGHT
CN1200
CN1401
CN1703
CN1601
CN1602
CN1901
TU1326
INPUT
OUTPUT
STBY/MUTE
STBY/MUTE
OUTPUT
INPUT
10
9
STANDBY
4
1 2
IC1601
+5VREG
+6.5V
+5V
ANALOGUE
4
1 2
IC1602
+5VREG
+5V
DIGITAL
4
1 2
IC1605
+3.5VREG
+4.5V
+3.5V
4
1 2
IC1604
+9VREG
+10.5
+9V
A4
A5
5
4
TO H8 BOARD
CN7150
CN1700
LED
SIRCS
A10
B9
A9
CVBS 1 OUT
AM 1
QSS 1 OUT
16
CVBS2
15
QSS2
14
AM2
5
SDA
4
SCL
BUFFER
Q1328,
Q1329
TU1350
(SUB-TUNER)
RESPONSE LED
SIRCS
V PULSE SUB OUT
4
MID HP
PORT 2
TEXT HP
2
1
IC1401
4
MID VP
PORT 2
TEXT VP
2
1
1
10
OV PROT
AUDIO PROT
OC PROT
9
3
PORT 2
A (
)
SIGNAL AND AUDIO AMP
4
1
1
3
3
1
A3
A2
CN1702
TO H7 BOARD
CN7902
U SUB OUT
Y SUB OUT
Y MAIN OUT
U MAIN OUT
V MAIN OUT
V PULSE MAIN OUT
H PULSE MAIN OUT

Related product manuals