EasyManua.ls Logo

Sony PVM-1341 - Page 76

Sony PVM-1341
81 pages
Print Icon
To Next Page IconTo Next Page
To Next Page IconTo Next Page
To Previous Page IconTo Previous Page
To Previous Page IconTo Previous Page
Loading...
PVM-1341 /1342Q/1343MD
PVM-1341 /1342Q/1343MD
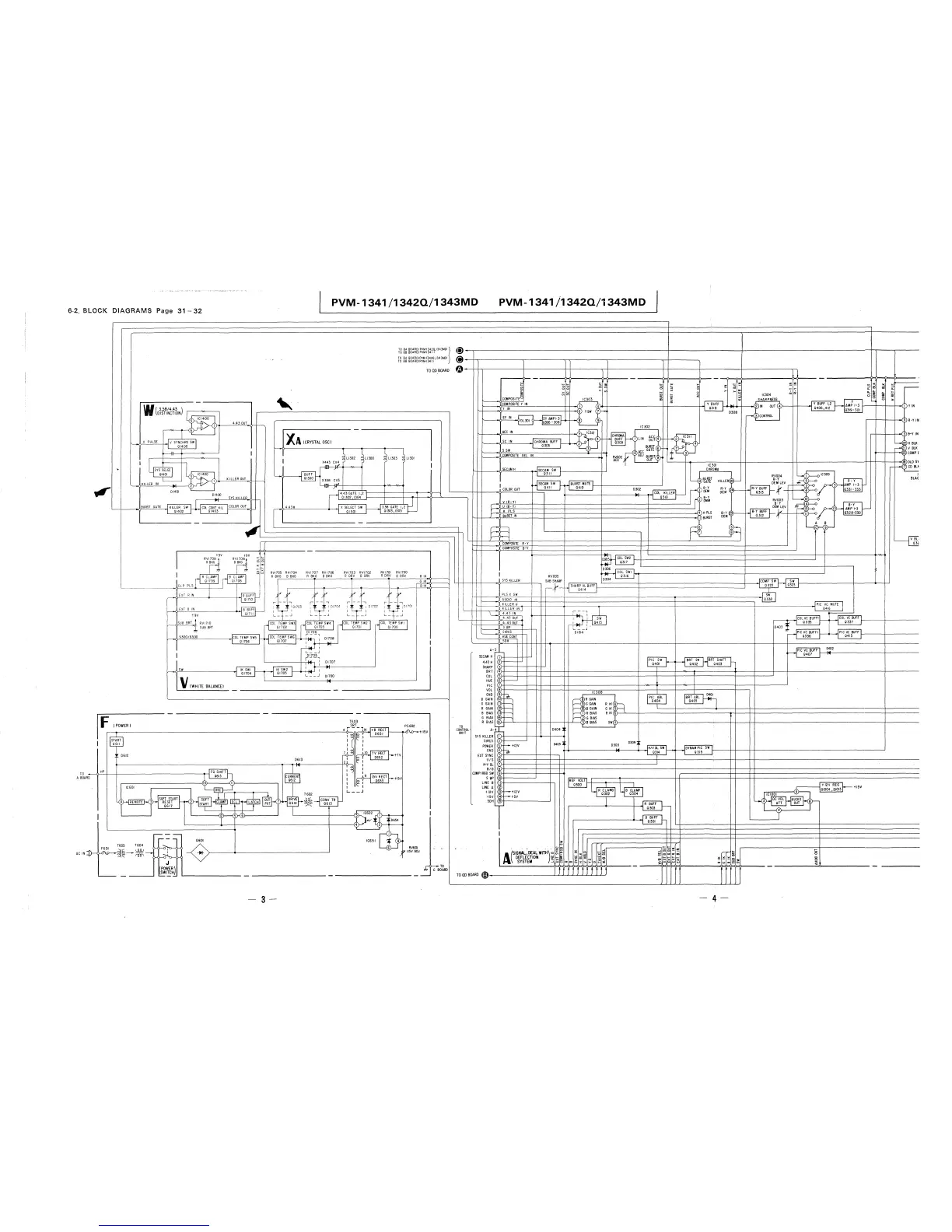
6-2. BLOCK DIAGRAMS Page 31 - 32
IF
TO
HP
A BOARD
AC IN
,--------- - --------
'II
(
3.58/4.43 )
5
IC!400
. DISTINCTION
~
+ ?''-"---"'·ce43,c0"°'U"'T_,..,_..,___
,--w.--.--16
'-----'
,~_.,._V_P_U~LS_E-;-; V SYNCHRO SW I
01400 I
I
~
.~
I
KILLER IN
0140/
KILLER OUT
Dl
4
00 SYS KILL~R
TO BA BOARO(PVM-1342Q,1343M01} @--,----------------------------------j-------------+---------------------+-s---,-----
TO BB BOAROIPVM-13411 -
TO BA BOARO!PVl,H3<l20,1343MOI} Q __
1
~-------~------~------------------l------
TO BB BOARO(PVM-1341) \!:J'
TOQDBOARD e--+-t-,-----------+-------++-------1-----------1-+------I--------+---------
~---c- - -----9-<>-------o-o---- - ----<>--<:-----./,--
-
-
~
=>::>
~
; ;~ ~1u
COMPOSITE
0
IC303
~-~~:~~~':~:_"~~"d
g
;a,
~z
zz
~
5-
r r
r
>-~
''
i
i
IC304
~"'
;a
SHARPNESS
y
Y BUFF
,llN OUTt
I Y BUFF 1,2
AMP 1-3
0318
I 0406,412
0319-321
0308
CONTROL
- -----------~
ACC lN
CHROMA BUFF f--~~~i;rc
1
,::
30
~5:fi ~,c,,,
4
e-- :~:,;
X A. I CRYSTAL osc I
1Ll302
X443 CV~
a ,,.
~
L/300
~
LJ303
~
ll301
I Q30S
~
~f-fJ 6 .t_ 7
~
l V BLK
12 ACC 3 3 COMP !
IN ----f--------+.J iv&02 ADJ iu:si 9 L-1--h~-------./-l--------l--+------------+-+-+--l--+-../181
... 18 OLD S'I
SC lN
SSW
COMPOSITE
SEL
SECAM H
I 03/1 I ,---- RV004 ~IC309 I I
X358 ~:; ~·J-rJBURST MUTE 11--1----------~ iuA~r KILLER( 9)---- lE-J LEV
~
re-y BLAC
D .I' I
~
.V ~~E-r' AMP 1-3
I
COLOR OUT
'---1---~BceU,.,RS,,T_,GccAc,TE'----I KILLER $W
1
1 ·,COL CONT KIL !COLOR OUT
01402
~
01403 I
,._.._.._ __ _,,,==----'lsECAM SW I
~
C~R~O~A ,-~
r-r
,;'; .. ;,,:cG:;;:AT;;,,..,~,2,l--r--i---i--...---b-J L_----f--l--+----b-'=::...::::.:__--1--..:::::.:::;--- o4rn I o302 1~,-0-,-K-IL_L_ER,?I
~E~
tE~ (~-~1 --~4 .)I o331-333
L
.'!.0!!13'.Q:02s.,,2;13~04'.',__}----j---j--r-t--~--'-----, I 0310 ,- r , y
1
-d_J
oMM Rvoo3 ---i12 ...r,.
~-6-'4,c.4:-.,3ceH _____ ..,._--i X SELECT SW 3,58 GATE l,2 o~MYLEV
~~~~
13 AJ;i-3
01301 01303,1305 f---0-c'c:'~c----t--t---+-------+--------+-------,-.(~
4
J~;~~ g£i~~~r-- II
0328
_
330
V lR-Y)
I
U(B-Yl
I H PLS
I BURST IN
__,~ '----------------------------------, fr'-------'~ I~ :
'-1-t-+--'--<l'"c=c'e=~~+-----t------+-------+--+--------'--------_.)
r= R V Bli
Q3f
I POWER I
~--------------<>-<>-------- ------------------~
~
!,ce,csJl
t9V
RV/708
88KG
B CLAMP
01708
E XT R IN j
1
I fiisiITT1
r--<>=------------
-~~
I EXT B IN IBBuFFl
e-..o-=~~+9_V ______ .._.L.21?.'.!..J
..-----..~0RVl710
-i SUB BRT
RVl705 RVl704 RVl707 RVl706 RVl703 RVl702 RVl701 RVi700
R 8KG 8 8KG R 8KG 8 8KG R ORV B ORV R ORV B ORV R IK
I J G 1K
J;-,~----:-1:--f_·-.~~~ JJ,·,:~~st, , ··
I 01102 I 01103 01101 ri 01100
D1706
lcoL TEMP sw3~coL TEMP SW41 COL TEMP sw21 fcoL TEMP sw1 [
"-""'-9'-'3~00~/~6~500cc._ ____ __,lcoL TEMP SW5 I __ ICOL TEMP SW6 r - - ., 0170B
·1 01106 r'i 01101
1
,....,'~_.,.___,
1
I I I
L __ J
D1705
'-------h;-.-...., .. -..c:_0•11-?o_, ______ __J
c--o~sw~--------~~ 011.00
V (WHITE BALANCE!
--------------- ____________ __J
-
- -------------
-----------,
T603
~
r-SB_T_ .. ~PS602
-.~--------------------------------------'''--O--,i~/i-il4'-.!+B RECT .
~
_ tllSV
I; I~ i 0651 .-v~
I I
I I
' D6J2
1l;
1
10 7V RECT
0613
2: I\;; i D652 +7V
------------------------------+--<....._,~._------+=<'>-o-1 I
~-----------{i~lll- ------
~
¥~,,
~~.
SOFT r=h_ r-b
~
-~
~
2 START CLAMP TIT~7f
;r: ;., A
t 5;,) l-l-{=66)------'
---
-- -
D601
1604
-
CURREN
06/2
DRIVE
Q614
T602
~:~
ICONvTRl
~:t~
* >----._ ____________ _;
I o I
:~+15V
:
~
I
L __ .J
-4------1..v
2
0654
I
IC651 '* 8
~6021
6 RV60I
;.t !ISVADJ
--
J
(
POWER)
SWITCH
J;Oci~RD
- ___ __.
~--
.._ _________ - ------------ - ------------- - -
-3-
I
I I
TO
CONTROL
UNIT
COMPOS!TE R·Y
COMPOSITE B-Y
I
SYS KILLER
~f--+-'.:==============t==========.,+-+------+w.-.
.0~~6 _fcolswil6 I ~-----------------+--------------'
RV005
~
SUB si:__~ SHARP VL BUFF .__~
0
-'~
0
_
4
--:_--:_--:_--:_--:_--:_--:_--:_~+----:_-_--:_--:_--:_--:_--:_--:_--:_--:_--:_--:_--:_--:_--:_--:_--:_--:_--:_--:_--:_-_--:_--:_--:_--:_--:_--:_--:_-:_--:_-::_-_--+--_-~co~;2~w a~:3 f----------+-----+-f--"
1-i I 1 0414
PLS X SW
AUDIO IN
H-+----0--_=:-c-'---'-----+--+-'1----f-l ------------------+------•---------------IQ~~e
"' co
_J_
KllllR "
1
4.43 IN
4.43 OUT
r·----
4 .43 OUT
SBP
SIRCS
+-+----.-~---_ ~- r-cL---<>------+------+-------------+-----------1 PIG o'.'/uTE I
~
~~
L __ j
3~~
01014 PIC VC BUFF f------1------
HUE CONT
0413
5DH
A-5
~~
SECAM H r,1 >+---+-+-+-'
'
~
D402
>--1 0407 1-----+---
4.43 H 2 1--------
SHARP 3
~~~
;:;:;::::::::==~==~::::::::::::::::::::::::::::::=========:t=====:::=====:t:::::1=============~=====t=====.,-+----+------------------+-------
HUE 6 ...,___
PIC : 7rH---+-H--+---++------------+~w.---+---+-w.--t--------+-----I------'
VOL · ~3H---+-H-+---++-----IC~
3
=
0
~
8
------+---+---+---t--------+----
B ;A~~
I~~
-BRGAIN
~
~
G GA!N I t-- 1,-- 9 G GAIN R IK 4
~
~
- . l
R GAIN 12 +-- 1--.J.9 B GAIN G !K 5 ~--+--------.----+--+-f-----------------------+------
: :1
1
!~ t
4
:=
~~
~
:::; B JK t
R BIAS (1!55H--'----+--H--+-D4_0_4-I-:+..,'----{,~3'._s_B_1•_s __ s_w_({/)111) ---+..,-----+---------+-+---+--+----------------------+-----
A-4
SYS K\LLER 'f
SIRCS I 2
POWER
3
.,_ +12v
GND
~
t.r
EXT SYNC
5
0405 D303 D309,
~
._..._ ______ __,,.__ __ _,.____, HOYNAM PIC SW lf----H--+-f-----------------------'
stt~----f---+-~ 0315
U/S
)!i
H·V DL 7
BIO
1 COMP/RGB SW
S BP
10
llNE B II
LINE A
12
tl2V
3 i--tl2V
+5V
14 l----t5V
50H I
~-
~--~+12V REG
~....,,=.,-I----{ S 01004,01013
t
tl5V
TO QD BOARD @-----------'--'-'-'c...L-'-.,_,_.,__,_.,_,
-4-

Related product manuals